Votre courriel a été envoyé.
Certaines informations ont été traduites automatiquement.
Tous les espaces disponibles(2)
Afficher les taux de location en
- Espace
- Taille
- Terme
- Taux de location
- Utilisation de l’espace
- Aménagement
- Disponible
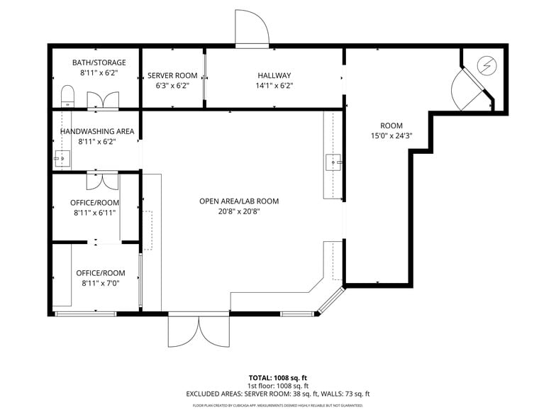
Suite 106 was previously utilized as a laboratory. The attached floorplan reflects the former layout, which is currently being opened up as the landlord removes walls to allow flexible reconfiguration for future tenant needs. Ideally situated between Loop 1604 and North Central Baptist Hospital, the property offers excellent visibility and accessibility for a variety of professional users. For those requiring additional space, Suite 108 is also available and may be combined. Reserved employee parking and ample customer parking are provided. Lease Breakdown: $20.00/SF+10.60NNN ($1,633.33/Month Base Rent + $865.67NNN = $2,499.00/Month)+$250/month for CPS Electric Bill.
- Le taux de location ne comprend pas les services publics, les services de bâtiment ou les dépenses immobilières.
- Laboratoire
- Espace nécessitant des rénovations
- Connectivité Wi-Fi
Suite 108 offers a functional layout with a reception area, multiple private offices, a conference room, kitchenette, and single restroom. Reserved employee parking and ample customer parking are available. For those requiring additional or specialized space, Suite 106 is also available in the building and was previously used as a lab. The suite can be combined or reconfigured to accommodate tenant needs, subject to terms and approvals. Lease Breakdown: $20.00/sf/yr+10.60NNN/yr= ($2,583.33/Monthly Base Rent + $1,369.17 NNN = $3,952.50/Month) +$250/month for CPS Electric Bill
- Le taux de location ne comprend pas les services publics, les services de bâtiment ou les dépenses immobilières.
- Air central et chauffage
- Connectivité Wi-Fi
- Lumière naturelle
- Accessible aux fauteuils roulants
- Salles de conférence
- Aire de réception
- Salle de bains privée
- Détecteur de fumée
| Espace | Taille | Terme | Taux de location | Utilisation de l’espace | Aménagement | Disponible |
| 1er étage, ste 106 | 980 pi² | 2-3 ans | 27,34 $ CAD/pi²/an 2,28 $ CAD/pi²/mois 26 792 $ CAD/an 2 233 $ CAD/mois | Bureau | - | Maintenant |
| 1er étage, ste 108 | 1 550 pi² | 2-3 ans | 27,34 $ CAD/pi²/an 2,28 $ CAD/pi²/mois 42 375 $ CAD/an 3 531 $ CAD/mois | Bureau | - | Maintenant |
1er étage, ste 106
| Taille |
| 980 pi² |
| Terme |
| 2-3 ans |
| Taux de location |
| 27,34 $ CAD/pi²/an 2,28 $ CAD/pi²/mois 26 792 $ CAD/an 2 233 $ CAD/mois |
| Utilisation de l’espace |
| Bureau |
| Aménagement |
| - |
| Disponible |
| Maintenant |
1er étage, ste 108
| Taille |
| 1 550 pi² |
| Terme |
| 2-3 ans |
| Taux de location |
| 27,34 $ CAD/pi²/an 2,28 $ CAD/pi²/mois 42 375 $ CAD/an 3 531 $ CAD/mois |
| Utilisation de l’espace |
| Bureau |
| Aménagement |
| - |
| Disponible |
| Maintenant |
1er étage, ste 106
| Taille | 980 pi² |
| Terme | 2-3 ans |
| Taux de location | 27,34 $ CAD/pi²/an |
| Utilisation de l’espace | Bureau |
| Aménagement | - |
| Disponible | Maintenant |
Suite 106 was previously utilized as a laboratory. The attached floorplan reflects the former layout, which is currently being opened up as the landlord removes walls to allow flexible reconfiguration for future tenant needs. Ideally situated between Loop 1604 and North Central Baptist Hospital, the property offers excellent visibility and accessibility for a variety of professional users. For those requiring additional space, Suite 108 is also available and may be combined. Reserved employee parking and ample customer parking are provided. Lease Breakdown: $20.00/SF+10.60NNN ($1,633.33/Month Base Rent + $865.67NNN = $2,499.00/Month)+$250/month for CPS Electric Bill.
- Le taux de location ne comprend pas les services publics, les services de bâtiment ou les dépenses immobilières.
- Espace nécessitant des rénovations
- Laboratoire
- Connectivité Wi-Fi
1er étage, ste 108
| Taille | 1 550 pi² |
| Terme | 2-3 ans |
| Taux de location | 27,34 $ CAD/pi²/an |
| Utilisation de l’espace | Bureau |
| Aménagement | - |
| Disponible | Maintenant |
Suite 108 offers a functional layout with a reception area, multiple private offices, a conference room, kitchenette, and single restroom. Reserved employee parking and ample customer parking are available. For those requiring additional or specialized space, Suite 106 is also available in the building and was previously used as a lab. The suite can be combined or reconfigured to accommodate tenant needs, subject to terms and approvals. Lease Breakdown: $20.00/sf/yr+10.60NNN/yr= ($2,583.33/Monthly Base Rent + $1,369.17 NNN = $3,952.50/Month) +$250/month for CPS Electric Bill
- Le taux de location ne comprend pas les services publics, les services de bâtiment ou les dépenses immobilières.
- Salles de conférence
- Air central et chauffage
- Aire de réception
- Connectivité Wi-Fi
- Salle de bains privée
- Lumière naturelle
- Détecteur de fumée
- Accessible aux fauteuils roulants
Aperçu de la propriété
Located in the heart of Stone Oak/Sonterra, this professional medical office space offers prominent monument signage and excellent visibility. The well-established building sits at the corner of Stone Oak Parkway and Gallery Circle. Multiple medical tenants, such as Alamo Specialty Pharmacy and Stone Oak Urgent Care Family Practice, create a strong healthcare presence in the building. Reserved employee parking and ample customer parking are available. Ideally situated between Loop 1604 and North Central Baptist Hospital, this property offers excellent visibility and accessibility for a variety of professional users.
- Ligne d'autobus
- Affichage
Faits sur la propriété
Sélectionner des locataires
- Étage
- Nom du locataire
- Secteur
- 1ᵉʳ
- Alamo Specialty Pharmacy
- Soins de santé et assistance sociale
- 1ᵉʳ
- Stone Oak Urgent Care & Family Practice
- Soins de santé et assistance sociale
Présenté par
104 Gallery Cir
Hmm, il semble y avoir eu une erreur lors de l’envoi de votre message. Veuillez réessayer.
Merci! Votre message a été envoyé.










