Se Connecter/S’inscrire
Votre courriel a été envoyé.
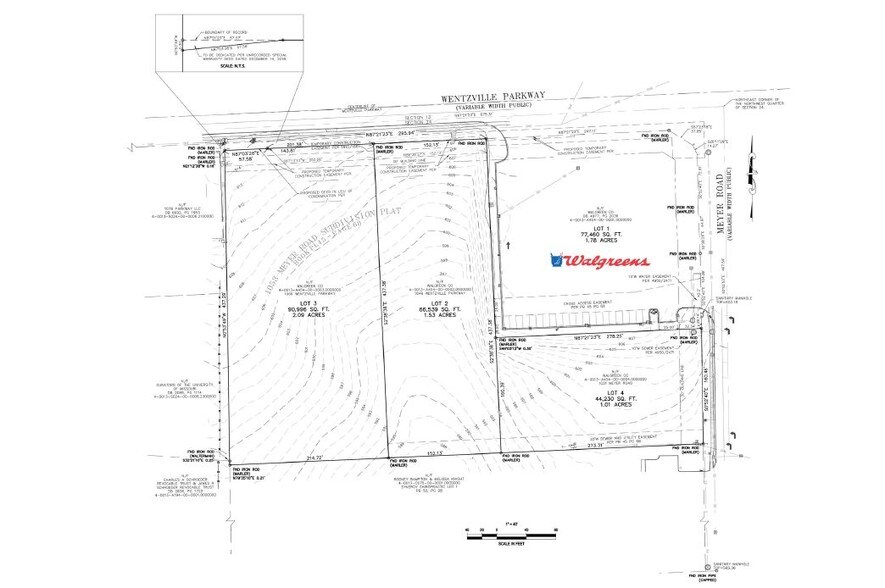
1046-1066 Wentzville Pky
Wentzville, MO 63385
Terrain À louer


Certaines informations ont été traduites automatiquement.
APERÇU DE LA PROPRIÉTÉ
Jusqu'à 3,62 acres disponibles • Adjacent à Walgreens avec accès croisé approuvé • ±296 pi de façade le long de la promenade Wentzville • Zonage : C-2, District commercial général • Excellent emplacement pour le commerce de détail, le bureau ou les services médicaux • Appeler pour la tarification
FAITS SUR LA PROPRIÉTÉ
1 de 5
VIDÉOS
VISITE EXTÉRIEURE 3D MATTERPORT
VISITE 3D MATTERPORT
PHOTOS
VUE DEPUIS LA RUE
RUE
CARTE
