Votre courriel a été envoyé.
1051-1099 Sneath Ln 3 940 pi² d'espace disponible • Flex • San Bruno, CA 94066



Certaines informations ont été traduites automatiquement.
Faits saillants
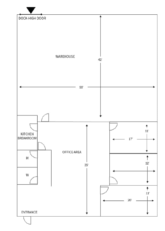
- ±3,940 SF of flexible office and warehouse space with ±1,750 SF of office fully HVAC-conditioned.
- 400 amps, 3-phase electrical service at 240V to support industrial or technical requirements.
- Easy access to Highways 280, 380, and 101; five minutes to SFO; and walking distance to BART and Caltrain.
- Equipped with one dock-high loading door for efficient shipping and receiving operations.
- Situated within a professionally managed industrial/flex park with fire sprinklers and 15–16’ clear heights.
- Surrounded by abundant local amenities, restaurants, and services for workforce convenience.
Caractéristiques
Tous les espaces disponibles(1)
Afficher les taux de location en
- Espace
- Taille
- Terme
- Taux de location
- Utilisation de l’espace
- Aménagement
- Disponible
1071 Sneath Lane offers a highly functional flex space within the Airport Trade Center, an established 125,000 SF multi-tenant industrial/flex park on 8.8 acres in San Bruno. This ±3,940 SF suite includes approximately 1,750 SF of office area with a 100% HVAC environment and a warehouse section featuring one dock-high loading door, making it ideal for a variety of business operations that require both office and light industrial capabilities.
- Le taux de location ne comprend pas les services publics, les services de bâtiment ou les dépenses immobilières.
- Espace en excellent état
- 1 quai de chargement
- Comprend 1 750 pi² d’espace de bureau dédié
- 1 accès plain-pied
| Espace | Taille | Terme | Taux de location | Utilisation de l’espace | Aménagement | Disponible |
| 1er étage - 1071 | 3 940 pi² | Négociable | 36,78 $ CAD/pi²/an 3,06 $ CAD/pi²/mois 144 907 $ CAD/an 12 076 $ CAD/mois | Flex | - | Maintenant |
1er étage - 1071
| Taille |
| 3 940 pi² |
| Terme |
| Négociable |
| Taux de location |
| 36,78 $ CAD/pi²/an 3,06 $ CAD/pi²/mois 144 907 $ CAD/an 12 076 $ CAD/mois |
| Utilisation de l’espace |
| Flex |
| Aménagement |
| - |
| Disponible |
| Maintenant |
1er étage - 1071
| Taille | 3 940 pi² |
| Terme | Négociable |
| Taux de location | 36,78 $ CAD/pi²/an |
| Utilisation de l’espace | Flex |
| Aménagement | - |
| Disponible | Maintenant |
1071 Sneath Lane offers a highly functional flex space within the Airport Trade Center, an established 125,000 SF multi-tenant industrial/flex park on 8.8 acres in San Bruno. This ±3,940 SF suite includes approximately 1,750 SF of office area with a 100% HVAC environment and a warehouse section featuring one dock-high loading door, making it ideal for a variety of business operations that require both office and light industrial capabilities.
- Le taux de location ne comprend pas les services publics, les services de bâtiment ou les dépenses immobilières.
- Comprend 1 750 pi² d’espace de bureau dédié
- Espace en excellent état
- 1 accès plain-pied
- 1 quai de chargement
Aperçu de la propriété
The property provides exceptional regional access via Highways 280, 380, and 101, as well as El Camino Real, ensuring seamless connectivity throughout the San Francisco Peninsula and beyond. Tenants benefit from close proximity to San Francisco International Airport, located just five minutes away, and walking distance to both BART and Caltrain stations, enhancing accessibility for employees and clientele alike. The building features 15–16’ clear heights, fire sprinklers, and a robust 400 amps, 3-phase power feed. On-site parking is available at a strong 2.0/1,000 SF ratio. Surrounding amenities and a highly skilled labor force within immediate reach further position this space as a practical solution for companies seeking versatile, transit-oriented premises in a well-established business corridor.
Faits sur la propriété
Sélectionner des locataires
- Étage
- Nom du locataire
- Secteur
- 1ᵉʳ
- Airway Express
- Transport et entreposage
- 1ᵉʳ
- Biocair
- Services professionnels, scientifiques et techniques
- 1ᵉʳ
- Clearfreight
- Transport et entreposage
- 1ᵉʳ
- Corporate Care
- Services
- 1ᵉʳ
- Gentle Giant Moving Company
- Transport et entreposage
- 1ᵉʳ
- Infinity Freight
- Transport et entreposage
- 1ᵉʳ
- Pencomp
- Services professionnels, scientifiques et techniques
Présenté par
1051-1099 Sneath Ln
Hmm, il semble y avoir eu une erreur lors de l’envoi de votre message. Veuillez réessayer.
Merci! Votre message a été envoyé.



