Votre courriel a été envoyé.
106-108 W Main St 29 636 pi² 100% Loué Commerce de détail Immeuble Woodland, CA 95695 6 519 280 $ CAD (219,98 $ CAD/pi²) 6,53% Taux de capitalisation



Certaines informations ont été traduites automatiquement.
Faits saillants de l'investissement
- Heavy daytime traffic
- Value-add component
- NNN Investment
- 100% Leased
Résumé de l'annonce
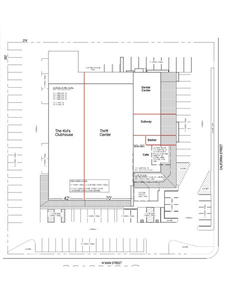
Positioned at the hard corner of California St & Main St in Woodland, the property totals 25,626± SF on 1.81± acres, with 82 striped parking spaces and visibility along two key arterials (approx. 15,000 VPD). Originally built in 1962 and renovated in 1995, the center has benefited from ongoing façade, paving, landscaping, and mechanical enhancements. The tenant mix delivers daily-needs convenience (e.g., Subway, Taco Joe’s Café, barbershop, dental clinic, children’s activity center, resale retail), supporting durable traffic and income. The asset is offered at $4,750,000, reflecting a 6.53% cap rate on 2026 NOI of $310,150, a compelling stabilized return with near-term upside via rent resets on rollover.
Faits sur la propriété
Principaux locataires
- Locataire
- Secteur
- pi² Occupé
- Loyer/pi²
- Type de bail
- Fin du bail
Des sandwichs personnalisables et distinctifs aux enveloppements et aux salades, Subway est tout simplement le meilleur choix lorsqu'il s'agit de plats fraîchement préparés, pratiques et abordables. Subway est l'une des plus grandes marques de restaurants au monde pour une raison, offrant chaque jour un menu agréable avec des options meilleures pour vous à des millions de fans.
The Kids Clubhouse offers a dynamic environment designed to engage children’s creativity and provide a wide range of entertainment for kids ages 10 and under, as well as their parents.
- Thrift Center
- Détaillant
- -
- -
- Loyer hypernet
- -
| Locataire | Secteur | pi² Occupé | Loyer/pi² | Type de bail | Fin du bail | |
|
Hébergement et services alimentaires | - | - | - | - | |
|
Soins de santé et assistance sociale | - | 14,82 $ CAD | Loyer hypernet | Mars 2030 | |
| Thrift Center | Détaillant | - | - | Loyer hypernet | - |
Principaux détaillants à proximité
Impôts fonciers
| Numéro de lot | 064-140-015-000 | Évaluation des bâtiments | 4 588 778 $ CAD |
| Évaluation du terrain | 1 961 826 $ CAD | Évaluation totale | 6 550 604 $ CAD |
Impôts fonciers
Présenté par
106-108 W Main St
Hmm, il semble y avoir eu une erreur lors de l’envoi de votre message. Veuillez réessayer.
Merci! Votre message a été envoyé.
