Votre courriel a été envoyé.
1071 Eburne Pl 10 688 pi² d'espace disponible • Industriel • Richmond, BC V6V 2Y7



Certaines informations ont été traduites automatiquement.
Faits saillants
- Entrepôt industriel autonome
- Entrepôt à grande hauteur avec pont(s) roulant(s)
- Convient pour une large gamme d'usages industriels
- Environ 10 688 pieds carrés de superficie totale du bâtiment
- Portes de chargement de plusieurs niveaux
- Stationnement et chargement sur place
Caractéristiques
Tous les espaces disponibles(1)
Afficher les taux de location en
- Espace
- Taille
- Terme
- Taux de location
- Utilisation de l’espace
- État
- Disponible
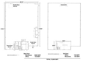
Bâtiment d'entrepôt industriel autonome Environ 10 688 pieds carrés de superficie totale du bâtiment Disposition d'entrepôt principalement à portée libre Hauteur de plafond élevée adaptée aux opérations industrielles Grue(s) aérienne(s) dans la zone d'entrepôt Plusieurs portes de chargement au niveau du sol Espace de bureau fonctionnel au rez-de-chaussée Niveau mezzanine inclus Plan d'étage rectangulaire efficace Stationnement et chargement exclusifs sur place Convient pour la fabrication, la fabrication, l'entreposage, la distribution ou les services Accès facile pour les camions Emplacement industriel central à Richmond avec accès rapide aux routes principales et à YVR
- Le taux de location ne comprend pas les services publics, les services de bâtiment ou les dépenses immobilières.
- Cour
- Comprend 1 460 pi² d’espace de bureau dédié
| Espace | Taille | Terme | Taux de location | Utilisation de l’espace | État | Disponible |
| 1er étage | 10 688 pi² | Négociable | Sur demande Sur demande Sur demande Sur demande | Industriel | construction complète | Maintenant |
1er étage
| Taille |
| 10 688 pi² |
| Terme |
| Négociable |
| Taux de location |
| Sur demande Sur demande Sur demande Sur demande |
| Utilisation de l’espace |
| Industriel |
| État |
| construction complète |
| Disponible |
| Maintenant |
1er étage
| Taille | 10 688 pi² |
| Terme | Négociable |
| Taux de location | Sur demande |
| Utilisation de l’espace | Industriel |
| État | construction complète |
| Disponible | Maintenant |
Bâtiment d'entrepôt industriel autonome Environ 10 688 pieds carrés de superficie totale du bâtiment Disposition d'entrepôt principalement à portée libre Hauteur de plafond élevée adaptée aux opérations industrielles Grue(s) aérienne(s) dans la zone d'entrepôt Plusieurs portes de chargement au niveau du sol Espace de bureau fonctionnel au rez-de-chaussée Niveau mezzanine inclus Plan d'étage rectangulaire efficace Stationnement et chargement exclusifs sur place Convient pour la fabrication, la fabrication, l'entreposage, la distribution ou les services Accès facile pour les camions Emplacement industriel central à Richmond avec accès rapide aux routes principales et à YVR
- Le taux de location ne comprend pas les services publics, les services de bâtiment ou les dépenses immobilières.
- Comprend 1 460 pi² d’espace de bureau dédié
- Cour
Aperçu de la propriété
Rare opportunité de louer un entrepôt industriel indépendant dans la très prisée zone industrielle d'Eburne Place à Richmond, offrant une excellente fonctionnalité, visibilité et flexibilité pour une large gamme d'utilisateurs industriels. La propriété dispose d'environ 10 688 pieds carrés de surface totale, comprenant un grand entrepôt à portée libre, un espace de bureau fonctionnel et un niveau mezzanine. L'entrepôt bénéficie de hauts plafonds, de ponts roulants, de plusieurs portes de chargement de plain-pied et d'une disposition rectangulaire efficace, adaptée à la fabrication, la transformation, l'entreposage, la distribution ou les opérations de services. Le bâtiment est situé sur son propre terrain sécurisé, offrant un stationnement et un chargement exclusifs sur place, avec un accès pratique pour les camions. La configuration indépendante permet une plus grande liberté opérationnelle, une meilleure visibilité de la signalisation et un accès facilité par rapport aux unités en copropriété. Idéalement situé avec un accès rapide à Vancouver, au centre-ville de Richmond, à l'aéroport YVR et aux principales routes artérielles, cet emplacement est idéal pour les entreprises nécessitant une connectivité centrale dans le Lower Mainland.
Faits sur l’installation fabrication
Sélectionner des locataires
- Étage
- Nom du locataire
- Secteur
- 1ᵉʳ
- Superior Alloy Technology inc
- -
- 1ᵉʳ
- Viking Profiles Inc
- Services professionnels, scientifiques et techniques
Présenté par
1071 Eburne Pl
Hmm, il semble y avoir eu une erreur lors de l’envoi de votre message. Veuillez réessayer.
Merci! Votre message a été envoyé.




