Se Connecter/S’inscrire
Votre courriel a été envoyé.
Certaines informations ont été traduites automatiquement.
Faits saillants de l'investissement
- Owner-User office in the heart of Midtown
- Patio Space
- Major Remodeling
Résumé de l'annonce
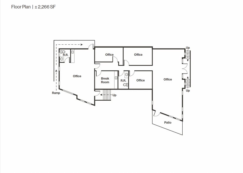
- Upscale owner-user office in the heart of Midtown
- Major remodel with over 60% of the building having new construction
- Reception & multiple bullpen areas
- Patio Space
- Ramp access available
- Three (3) private offices
- Two (2) open area office spaces
- Break room & kitchenette
- Two (2) bathrooms
- Seven (7) parking spots
- Major remodel with over 60% of the building having new construction
- Reception & multiple bullpen areas
- Patio Space
- Ramp access available
- Three (3) private offices
- Two (2) open area office spaces
- Break room & kitchenette
- Two (2) bathrooms
- Seven (7) parking spots
Faits sur la propriété
Type de vente
Propriétaire utilisateur
Type de propriété
Bureau
Taille du bâtiment
2 266 pi²
Classe d’immeuble
C
Année de construction/rénovation
1929/2025
Prix
1 464 328 $ CAD
Prix par pi²
646,22 $ CAD
Location
Unique
Hauteur du bâtiment
1 étage
Superficie de plancher typique
2 266 pi²
Coefficient d’occupation des sols de l’immeuble
0,43
Taille du lot
0,12 AC
Zonage
MU-MC
Stationnement
4 places (1,77 places par 1 000 pi² loué)
Très praticable à pied
80/100
Moyennement facile d'accès en voiture
60/100
Transports en commun relativement accessibles
40/100
Moyennement praticable en vélo
60/100
Impôts fonciers
| Numéro de lot | 014-062-12 | Évaluation des bâtiments | 102 376 $ CAD |
| Évaluation du terrain | 64 592 $ CAD | Évaluation totale | 166 968 $ CAD |
Impôts fonciers
Numéro de lot
014-062-12
Évaluation du terrain
64 592 $ CAD
Évaluation des bâtiments
102 376 $ CAD
Évaluation totale
166 968 $ CAD
1 de 9
Vidéos
Visite extérieure 3D Matterport
Visite 3D Matterport
Photos
Vue depuis la rue
Rue
Carte
Présenté par
1071 Haskell St
Vous êtes déjà membre? Connectez-vous
Hmm, il semble y avoir eu une erreur lors de l’envoi de votre message. Veuillez réessayer.
Merci! Votre message a été envoyé.




