Votre courriel a été envoyé.
Tico Industrial Park Waltham, MA 02453 1 410–55 845 pi² d'espace disponible


Certaines informations ont été traduites automatiquement.
Faits saillants du parc
- Le parc industriel Tico offre un espace industriel de premier ordre pour la fabrication et l'entreposage légers dans l'une des propriétés exclusivement zonées industrielles de Waltham.
- Situé à 10 milles au nord-ouest de Boston avec un accès pratique à la route 128, à la route 2, au Massachusetts Turnpike, aux restaurants avoisinants, et plus encore.
- Receive business support from a highly skilled employee base, with over 7% of the surrounding labor force specializing in warehousing.
- Répondez aux besoins de votre entreprise grâce à des unités industrielles de différentes tailles avec chargement à l'arrière et au volant, hauteur libre pouvant atteindre 24 pieds et puissance lourde.
- Recevez du soutien aux entreprises d'une base d'employés hautement qualifiés, plus de 7 % de la main-d'œuvre environnante se spécialisant dans l'entreposage.
- 10,800 ft.² specializing in basketball
Faits sur le parc
| Superficie totale disponible | 55 845 pi² | Type de parc | Parc industriel |
| Max. contigu | 7 555 pi² |
| Superficie totale disponible | 55 845 pi² |
| Max. contigu | 7 555 pi² |
| Type de parc | Parc industriel |
Tous les espaces disponibles(12)
Afficher les taux de location en
- Espace
- Taille
- Terme
- Taux de location
- Utilisation de l’espace
- État
- Disponible
1,377 SF of shared common area space, including a lunchroom and reception area.
- Comprend 560 pi² d’espace de bureau dédié
- 1 accès plain-pied
- Peut être associé à un ou plusieurs espaces supplémentaires pour obtenir jusqu’à 7 395 pi² d’espace adjacent.
- 2 accès plain-pied
- OH Door Height: 12' x 11'17"
- Ceiling Height: 16'11"
- Parking Spots: 2
- Le taux de location ne comprend pas les services publics, les services de bâtiment ou les dépenses immobilières.
- Parking Spots: 2
- 2 accès plain-pied
1,377 SF of shared common area space, including a lunchroom and reception area.
- 1 accès plain-pied
- Peut être associé à un ou plusieurs espaces supplémentaires pour obtenir jusqu’à 7 395 pi² d’espace adjacent.
101 Bay 3: Lav 72 square feet, 480 Electrical, UTR 122 square feet, Warehouse 4,206 square feet, Total 4,400 square feet, Ceiling height 16 ft., OH Door Height: 14 feet high x 11’ 11” wide, 1 drive in bay, OW Sep yes, Floor drain: yes/ oil separator, Parking Spots: 5 (3 in front, 2 in back).
- Le taux de location ne comprend pas les services publics, les services de bâtiment ou les dépenses immobilières.
- 1 accès plain-pied
- Comprend 194 pi² d’espace de bureau dédié
- 1 accès plain-pied
- OH Door Height: 14' x 11'11" wide
- Ceiling Height: 24"
- Parking Spots: 5
| Espace | Taille | Terme | Taux de location | Utilisation de l’espace | État | Disponible |
| 1er étage - Bay 1 | 3 995 pi² | Négociable | Sur demande Sur demande Sur demande Sur demande | Flex | - | 2026-06-01 |
| 1er étage - Bay 16 | 2 650 pi² | Négociable | Sur demande Sur demande Sur demande Sur demande | Industriel | - | 2026-04-15 |
| 1er étage - Bay 19A | 1 697 pi² | Négociable | Sur demande Sur demande Sur demande Sur demande | Industriel | - | Maintenant |
| 1er étage - Bay 1A | 3 400 pi² | Négociable | Sur demande Sur demande Sur demande Sur demande | Industriel | - | 2026-06-01 |
| 1er étage - Bay 3 | 4 400 pi² | Négociable | Sur demande Sur demande Sur demande Sur demande | Industriel | construction complète | Maintenant |
| 1er étage - Bay 9 | 3 481 pi² | Négociable | Sur demande Sur demande Sur demande Sur demande | Industriel | - | Maintenant |
101 Clematis Ave - 1er étage - Bay 1
101 Clematis Ave - 1er étage - Bay 16
101 Clematis Ave - 1er étage - Bay 19A
101 Clematis Ave - 1er étage - Bay 1A
101 Clematis Ave - 1er étage - Bay 3
101 Clematis Ave - 1er étage - Bay 9
- Espace
- Taille
- Terme
- Taux de location
- Utilisation de l’espace
- État
- Disponible
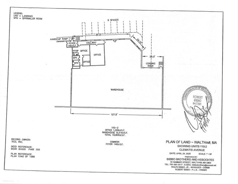
Office 1,556 square feet, Warehouse 9,214 square feet, Total 10,800 square feet. Ceiling height 25 ft., 2 Loading Docks - Door Height 7”11 x 7”11, HVAC-Offices only, No OW Sep, No Floor Drain, 10 Parking Spots, 200A Panels, 120-208V - 480V is available
- Le taux de location ne comprend pas les services publics, les services de bâtiment ou les dépenses immobilières.
- 2 accès plain-pied
- 10 Parking Spaces
- Comprend 1 556 pi² d’espace de bureau dédié
- 2 quais de chargement
| Espace | Taille | Terme | Taux de location | Utilisation de l’espace | État | Disponible |
| 1er étage - Bay 2 | 10 800 pi² | Négociable | Sur demande Sur demande Sur demande Sur demande | Industriel | - | Maintenant |
110 Clematis Ave - 1er étage - Bay 2
- Espace
- Taille
- Terme
- Taux de location
- Utilisation de l’espace
- État
- Disponible
108 Bay 7B: Ceiling height: 13’ 11”, OH Door Height: 7’ 11” x 7’ 11”, 600A 480V.
- Le taux de location ne comprend pas les services publics, les services de bâtiment ou les dépenses immobilières.
- 1 quai de chargement
- Plafond suspendu
- Parking Spots: 10
- Comprend 1 634 pi² d’espace de bureau dédié
- Air central et chauffage
- Éclairage d’urgence
108 Bay 7A: Ceiling height: 13’ 11”, 600A 480V
- Le taux de location ne comprend pas les services publics, les services de bâtiment ou les dépenses immobilières.
- Peut être associé à un ou plusieurs espaces supplémentaires pour obtenir jusqu’à 7 555 pi² d’espace adjacent.
- Plafond suspendu
- *Shared loading dock*
- Espace en excellent état
- Air central et chauffage
- Éclairage d’urgence
108 Bay 7B: Ceiling height: 13’ 11”, OH Door Height: 7’ 11” x 7’ 11”, 600A 480V
- Le taux de location ne comprend pas les services publics, les services de bâtiment ou les dépenses immobilières.
- Peut être associé à un ou plusieurs espaces supplémentaires pour obtenir jusqu’à 7 555 pi² d’espace adjacent.
- Air central et chauffage
- Éclairage d’urgence
- Espace en excellent état
- 1 quai de chargement
- Plafond suspendu
- *Shared loading dock*
| Espace | Taille | Terme | Taux de location | Utilisation de l’espace | État | Disponible |
| 1er étage - Bay 7 | 9 153 pi² | Négociable | Sur demande Sur demande Sur demande Sur demande | Flex | - | Maintenant |
| 1er étage - Bay 7A | 3 296 pi² | Négociable | Sur demande Sur demande Sur demande Sur demande | Flex | - | Maintenant |
| 1er étage - Bay 7B | 4 259 pi² | Négociable | Sur demande Sur demande Sur demande Sur demande | Flex | - | Maintenant |
108 Clematis Ave - 1er étage - Bay 7
108 Clematis Ave - 1er étage - Bay 7A
108 Clematis Ave - 1er étage - Bay 7B
- Espace
- Taille
- Terme
- Taux de location
- Utilisation de l’espace
- État
- Disponible
102 Bay A: This bay can either rent as a whole or split into two. Ceiling height: 25’ 10” to bottom rafter. OH Door Height: Left Bay Door - 10 ft high x 9’ 11” wide. Right Garage Door: 10 ft high x 9’ 11” wide, 120-208V.
- Le taux de location ne comprend pas les services publics, les services de bâtiment ou les dépenses immobilières.
- 1 accès plain-pied
- Convient pour 19 à 59 personnes
- Comprend 1 930 pi² d’espace de bureau dédié
- 1 quai de chargement
- Parking Spots: 15
- Ceiling height: 15'11'
- OW Sep: No
- Parking Spots: 2
- HVAC: completely air conditioned
- Floor Drain: Yes
| Espace | Taille | Terme | Taux de location | Utilisation de l’espace | État | Disponible |
| 1er étage - Bay A | 7 304 pi² | Négociable | Sur demande Sur demande Sur demande Sur demande | Flex | construction complète | Maintenant |
| 2e étage - Bay 7 | 1 410 pi² | Négociable | Sur demande Sur demande Sur demande Sur demande | Flex | - | Maintenant |
102 Clematis Ave - 1er étage - Bay A
102 Clematis Ave - 2e étage - Bay 7
101 Clematis Ave - 1er étage - Bay 1
| Taille | 3 995 pi² |
| Terme | Négociable |
| Taux de location | Sur demande |
| Utilisation de l’espace | Flex |
| État | - |
| Disponible | 2026-06-01 |
1,377 SF of shared common area space, including a lunchroom and reception area.
- Comprend 560 pi² d’espace de bureau dédié
- Peut être associé à un ou plusieurs espaces supplémentaires pour obtenir jusqu’à 7 395 pi² d’espace adjacent.
- 1 accès plain-pied
101 Clematis Ave - 1er étage - Bay 16
| Taille | 2 650 pi² |
| Terme | Négociable |
| Taux de location | Sur demande |
| Utilisation de l’espace | Industriel |
| État | - |
| Disponible | 2026-04-15 |
- 2 accès plain-pied
- Ceiling Height: 16'11"
- OH Door Height: 12' x 11'17"
- Parking Spots: 2
101 Clematis Ave - 1er étage - Bay 19A
| Taille | 1 697 pi² |
| Terme | Négociable |
| Taux de location | Sur demande |
| Utilisation de l’espace | Industriel |
| État | - |
| Disponible | Maintenant |
- Le taux de location ne comprend pas les services publics, les services de bâtiment ou les dépenses immobilières.
- 2 accès plain-pied
- Parking Spots: 2
101 Clematis Ave - 1er étage - Bay 1A
| Taille | 3 400 pi² |
| Terme | Négociable |
| Taux de location | Sur demande |
| Utilisation de l’espace | Industriel |
| État | - |
| Disponible | 2026-06-01 |
1,377 SF of shared common area space, including a lunchroom and reception area.
- 1 accès plain-pied
- Peut être associé à un ou plusieurs espaces supplémentaires pour obtenir jusqu’à 7 395 pi² d’espace adjacent.
101 Clematis Ave - 1er étage - Bay 3
| Taille | 4 400 pi² |
| Terme | Négociable |
| Taux de location | Sur demande |
| Utilisation de l’espace | Industriel |
| État | construction complète |
| Disponible | Maintenant |
101 Bay 3: Lav 72 square feet, 480 Electrical, UTR 122 square feet, Warehouse 4,206 square feet, Total 4,400 square feet, Ceiling height 16 ft., OH Door Height: 14 feet high x 11’ 11” wide, 1 drive in bay, OW Sep yes, Floor drain: yes/ oil separator, Parking Spots: 5 (3 in front, 2 in back).
- Le taux de location ne comprend pas les services publics, les services de bâtiment ou les dépenses immobilières.
- Comprend 194 pi² d’espace de bureau dédié
- 1 accès plain-pied
101 Clematis Ave - 1er étage - Bay 9
| Taille | 3 481 pi² |
| Terme | Négociable |
| Taux de location | Sur demande |
| Utilisation de l’espace | Industriel |
| État | - |
| Disponible | Maintenant |
- 1 accès plain-pied
- Ceiling Height: 24"
- OH Door Height: 14' x 11'11" wide
- Parking Spots: 5
110 Clematis Ave - 1er étage - Bay 2
| Taille | 10 800 pi² |
| Terme | Négociable |
| Taux de location | Sur demande |
| Utilisation de l’espace | Industriel |
| État | - |
| Disponible | Maintenant |
Office 1,556 square feet, Warehouse 9,214 square feet, Total 10,800 square feet. Ceiling height 25 ft., 2 Loading Docks - Door Height 7”11 x 7”11, HVAC-Offices only, No OW Sep, No Floor Drain, 10 Parking Spots, 200A Panels, 120-208V - 480V is available
- Le taux de location ne comprend pas les services publics, les services de bâtiment ou les dépenses immobilières.
- Comprend 1 556 pi² d’espace de bureau dédié
- 2 accès plain-pied
- 2 quais de chargement
- 10 Parking Spaces
108 Clematis Ave - 1er étage - Bay 7
| Taille | 9 153 pi² |
| Terme | Négociable |
| Taux de location | Sur demande |
| Utilisation de l’espace | Flex |
| État | - |
| Disponible | Maintenant |
108 Bay 7B: Ceiling height: 13’ 11”, OH Door Height: 7’ 11” x 7’ 11”, 600A 480V.
- Le taux de location ne comprend pas les services publics, les services de bâtiment ou les dépenses immobilières.
- Comprend 1 634 pi² d’espace de bureau dédié
- 1 quai de chargement
- Air central et chauffage
- Plafond suspendu
- Éclairage d’urgence
- Parking Spots: 10
108 Clematis Ave - 1er étage - Bay 7A
| Taille | 3 296 pi² |
| Terme | Négociable |
| Taux de location | Sur demande |
| Utilisation de l’espace | Flex |
| État | - |
| Disponible | Maintenant |
108 Bay 7A: Ceiling height: 13’ 11”, 600A 480V
- Le taux de location ne comprend pas les services publics, les services de bâtiment ou les dépenses immobilières.
- Espace en excellent état
- Peut être associé à un ou plusieurs espaces supplémentaires pour obtenir jusqu’à 7 555 pi² d’espace adjacent.
- Air central et chauffage
- Plafond suspendu
- Éclairage d’urgence
- *Shared loading dock*
108 Clematis Ave - 1er étage - Bay 7B
| Taille | 4 259 pi² |
| Terme | Négociable |
| Taux de location | Sur demande |
| Utilisation de l’espace | Flex |
| État | - |
| Disponible | Maintenant |
108 Bay 7B: Ceiling height: 13’ 11”, OH Door Height: 7’ 11” x 7’ 11”, 600A 480V
- Le taux de location ne comprend pas les services publics, les services de bâtiment ou les dépenses immobilières.
- Espace en excellent état
- Peut être associé à un ou plusieurs espaces supplémentaires pour obtenir jusqu’à 7 555 pi² d’espace adjacent.
- 1 quai de chargement
- Air central et chauffage
- Plafond suspendu
- Éclairage d’urgence
- *Shared loading dock*
102 Clematis Ave - 1er étage - Bay A
| Taille | 7 304 pi² |
| Terme | Négociable |
| Taux de location | Sur demande |
| Utilisation de l’espace | Flex |
| État | construction complète |
| Disponible | Maintenant |
102 Bay A: This bay can either rent as a whole or split into two. Ceiling height: 25’ 10” to bottom rafter. OH Door Height: Left Bay Door - 10 ft high x 9’ 11” wide. Right Garage Door: 10 ft high x 9’ 11” wide, 120-208V.
- Le taux de location ne comprend pas les services publics, les services de bâtiment ou les dépenses immobilières.
- Comprend 1 930 pi² d’espace de bureau dédié
- 1 accès plain-pied
- 1 quai de chargement
- Convient pour 19 à 59 personnes
- Parking Spots: 15
102 Clematis Ave - 2e étage - Bay 7
| Taille | 1 410 pi² |
| Terme | Négociable |
| Taux de location | Sur demande |
| Utilisation de l’espace | Flex |
| État | - |
| Disponible | Maintenant |
- Ceiling height: 15'11'
- HVAC: completely air conditioned
- OW Sep: No
- Floor Drain: Yes
- Parking Spots: 2
Aperçu du parc
Le parc industriel Tico est un parc industriel de premier plan et l'un des rares espaces exclusivement zonés industriels de la banlieue de Boston, à Waltham, au Massachusetts. La propriété est située près de l'avenue Clematis et comprend plusieurs édifices de blocs, offrant plus de 250 000 pieds carrés d'espace locatif. Les unités sont disponibles en différentes tailles pour répondre à tous les besoins des locataires et à tous les besoins en espace pour la fabrication légère, l'entreposage et d'autres utilisations industrielles. Tirez parti du chargement à l'arrière et au volant, d'une grande puissance et d'une hauteur libre pouvant atteindre 24 pieds. De plus, obtenez la tranquillité d'esprit grâce à une gestion immobilière réactive sur place. Le parc industriel Tico est idéalement situé à 5 milles de la route 128, à 6 milles de la route 2 et du Massachusetts Turnpike, et à 10 milles au nord-ouest de Boston. Des parcs publics, plusieurs hôtels, des commerces de détail de services, des restaurants, une ligne d'autobus MBTA, un arrêt de train de banlieue, un centre de conditionnement physique et d'autres sont à proximité. Les entreprises du parc industriel Tico reçoivent le soutien d'une main-d'œuvre bien formée et hautement qualifiée comptant plus de 89 000 résidents dans un rayon de 10 milles employés du secteur de l'entreposage.
Brochure du parc
Données démographiques
Accessibilité régionale
Commodités à proximité
Restaurants |
|||
|---|---|---|---|
| Dunkin' | Café | - | 13 Min. de marche |
| Starbucks | Café | $ | 15 Min. de marche |
| Pizza-Roma | Pizza | $ | 16 Min. de marche |
Commerce de détail |
||
|---|---|---|
| Planet Fitness | Entraînement physique | 0 Min. de marche |
| United States Postal Service | Services d'affaires / Photocopie / Poste | 15 Min. de marche |
| Star Market | Supermarché | 15 Min. de marche |
| Star Market Osco Pharmacy | Supermarché | 15 Min. de marche |
Hôtels |
|
|---|---|
| Four Points by Sheraton |
270 Pièces
9 route min.
|
| Hampton by Hilton |
146 Pièces
10 route min.
|
Agent de location
Agent de location
Rosette Jacobson Antico, Agent/ Property Manager
Présenté par
Tico Industrial Park | Waltham, MA 02453
Hmm, il semble y avoir eu une erreur lors de l’envoi de votre message. Veuillez réessayer.
Merci! Votre message a été envoyé.





























