Votre courriel a été envoyé.
108 W 2nd St - Higgins Building Unité de condo • Flex • 1 700 pi² • À vendre 1 220 842 $ CAD • Los Angeles, CA 90012



Certaines informations ont été traduites automatiquement.
1 Unité disponible
Unité PH1007
| Taille de l’unité | 1 700 pi² | Utilisation du condo | Flex |
| Prix | 1 220 842 $ CAD | Type de vente | Investissement ou propriétaire utilisateur |
| Prix par pi² | 718,14 $ CAD | Nbre d’espaces de stationnement | 1 |
| Taille de l’unité | 1 700 pi² |
| Prix | 1 220 842 $ CAD |
| Prix par pi² | 718,14 $ CAD |
| Utilisation du condo | Flex |
| Type de vente | Investissement ou propriétaire utilisateur |
| Nbre d’espaces de stationnement | 1 |
Description
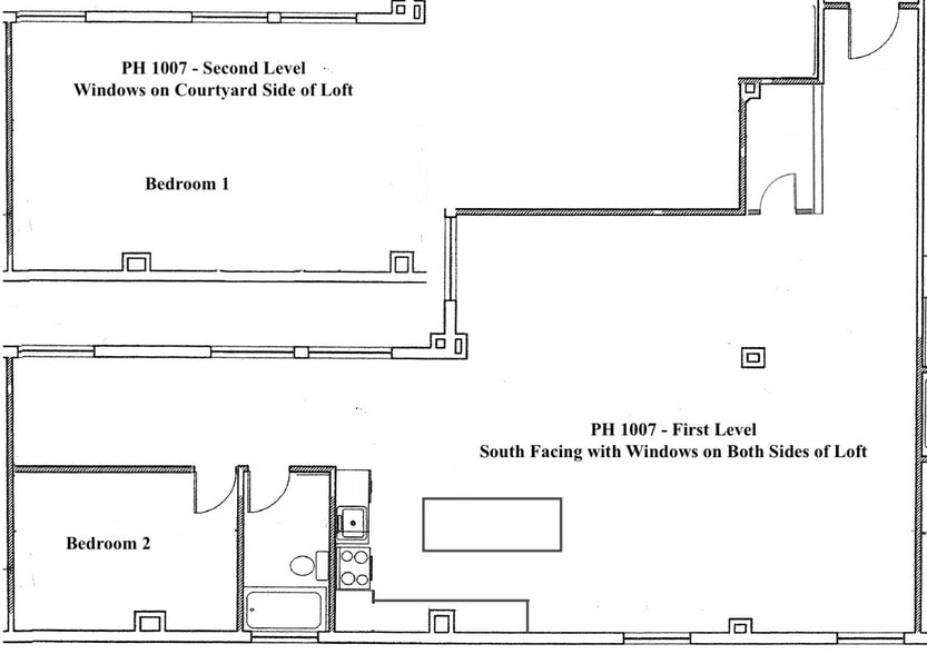
**DTLA Penthouse with 900 Sq. Ft. Private Rooftop + MILLS ACT Tax Savings** Experience one of Downtown Los Angeles' most remarkable penthouses, set within the Mills Act designated Higgins Building, offering significant property tax savings year after year. This dramatic two-story, three-level live/work loft is among the building's largest floor plans, featuring expansive windows on both sides that flood the space with natural light. A spiral staircase connects beautifully designed interiors to the show stopping highlight, your own 900 sq. ft. private rooftop deck, professionally landscaped for entertaining or soaking in panoramic skyline views. The chef's kitchen is equipped with Thermador stainless appliances, marble countertops, custom cabinetry, and a stylish island, an ideal balance of form and function. The bathroom features marble and artisan tile and offers sweeping skyline views even from the shower. Additional highlights include designer lighting, generous closets, and in-unit washer/dryer. The private back bedroom or office provides tranquility, while the second-level primary or office includes custom closet build-outs and direct rooftop access. The Higgins Building stands amid Downtown's architectural icons including City Hall, the LA Times Building, and Vibiana/Redbird to name a few. Across the street, enjoy Plaza de California dog park and the new Historic Broadway Metro station for effortless commuting. Step into the grand lobby and be transported to another era, with restored mosaic tile floors, wrought-iron caged elevators, imported marble wainscoting, zinc-framed doorways, and period detailing that celebrate the building's storied past. More than a penthouse, this is a statement of style, history, and downtown culture at its finest. Access to parking in the building is available for a monthly fee.
Lobby
Lobby
Lobby
Interior Photo
Interior Photo
Interior Photo
Interior Photo
Interior Photo
Interior Photo
Interior Photo
Interior Photo
Interior Photo
Interior Photo
Interior Photo
Interior Photo
Interior Photo
Interior Photo
Interior Photo
Interior Photo
Interior Photo
Interior Photo
Interior Photo
Floor Plan
Other
Other
Other
Other
Other
Other
Other
Faits sur la propriété
| Taille totale du bâtiment | 196 105 pi² | Planchers | 10 |
| Type de propriété | Immeuble residentiel (Condo) | Superficie de plancher typique | 19 601 pi² |
| Sous-type de propriété | Appartement | Année de construction | 1910 |
| Classe d’immeuble | B | Taille du lot | 0,45 AC |
| Zonage | C4 - Commercial de quartier (Commerce de détail / Condo commercial) | ||
| Taille totale du bâtiment | 196 105 pi² |
| Type de propriété | Immeuble residentiel (Condo) |
| Sous-type de propriété | Appartement |
| Classe d’immeuble | B |
| Planchers | 10 |
| Superficie de plancher typique | 19 601 pi² |
| Année de construction | 1910 |
| Taille du lot | 0,45 AC |
| Zonage | C4 - Commercial de quartier (Commerce de détail / Condo commercial) |
Commodités
- Détecteur de fumée
Commodités du site
- Accès contrôlé
- Concierge
- Installations de lessive
- Système de sécurité
- Ascenseur
- Salle de bain privée
Présenté par
108 W 2nd St - Higgins Building
Hmm, il semble y avoir eu une erreur lors de l’envoi de votre message. Veuillez réessayer.
Merci! Votre message a été envoyé.


