Se Connecter/S’inscrire
Votre courriel a été envoyé.
Certaines informations ont été traduites automatiquement.
FAITS SAILLANTS
- Disponibilité sur le marché d'Inland Empire West
- Deux portes à hauteur de quai
- Puits de lumière d'entrepôt
- 24' Hauteur dégagée du bâtiment
- Système de gicleurs (0,45 GPM/3 000 pi2)
- Accès immédiat aux autoroutes I-15 et I-10
CARACTÉRISTIQUES
Hauteur libre
24’
Baies d’entrée
8
Portes de quai de chargement intérieures
16
Portes de quai de chargement extérieures
8
Niveleurs
16
Places de stationnement standard
260
TOUS LES ESPACES DISPONIBLES(1)
Afficher les taux de location en
- ESPACE
- TAILLE
- TERME
- TAUX DE LOCATION
- UTILISATION DE L’ESPACE
- ÉTAT
- DISPONIBLE
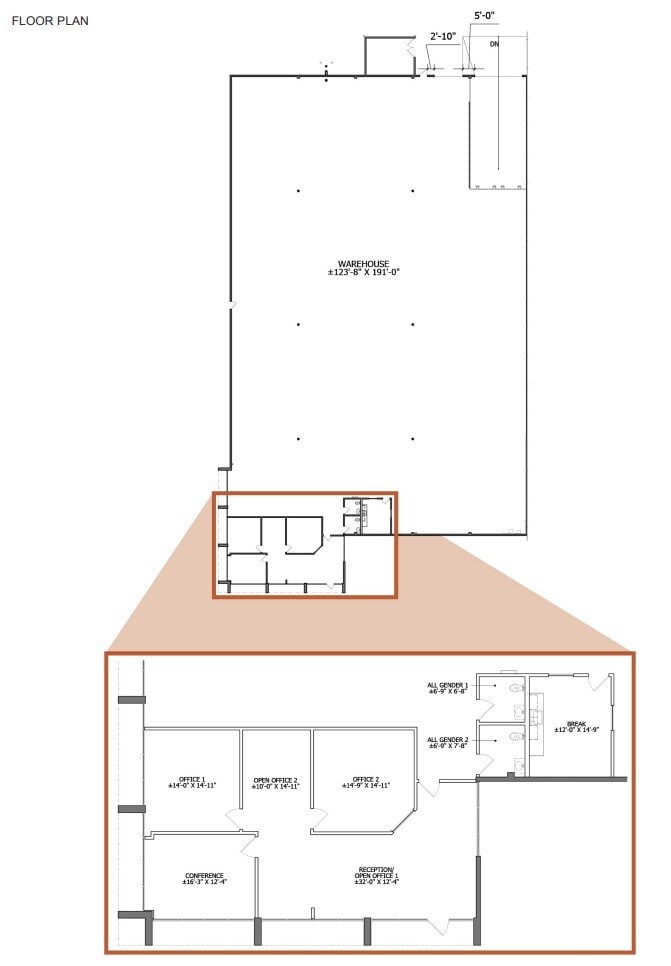
24' Clear Height
- Comprend 1 985 pi² d’espace de bureau dédié
- 2 quais de chargement
- 1 accès plain-pied
| Espace | Taille | Terme | Taux de location | Utilisation de l’espace | État | Disponible |
| 1er étage - H | 25 406 pi² | Négociable | Sur demande Sur demande Sur demande Sur demande | Industriel | construction complète | Maintenant |
1er étage - H
| Taille |
| 25 406 pi² |
| Terme |
| Négociable |
| Taux de location |
| Sur demande Sur demande Sur demande Sur demande |
| Utilisation de l’espace |
| Industriel |
| État |
| construction complète |
| Disponible |
| Maintenant |
1 de 1
VIDÉOS
VISITE EXTÉRIEURE 3D MATTERPORT
VISITE 3D MATTERPORT
PHOTOS
VUE DEPUIS LA RUE
RUE
CARTE
1er étage - H
| Taille | 25 406 pi² |
| Terme | Négociable |
| Taux de location | Sur demande |
| Utilisation de l’espace | Industriel |
| État | construction complète |
| Disponible | Maintenant |
24' Clear Height
- Comprend 1 985 pi² d’espace de bureau dédié
- 1 accès plain-pied
- 2 quais de chargement
FAITS SUR L’INSTALLATION ENTREPÔT
Taille du bâtiment
122 320 pi²
Taille du lot
6,06 AC
Année de construction
1986
Energy Star
77
Construction
Maçonnerie
Système de gicleur
Humide
Alimentation électrique
Ampères: 200 Volts: 277-480 Phase: 3 Fil: 3
Zonage
IP - Entrepôt de distribution
1 de 9
VIDÉOS
VISITE EXTÉRIEURE 3D MATTERPORT
VISITE 3D MATTERPORT
PHOTOS
VUE DEPUIS LA RUE
RUE
CARTE
Présenté par
10825 7th St
Vous êtes déjà membre? Connectez-vous
Hmm, il semble y avoir eu une erreur lors de l’envoi de votre message. Veuillez réessayer.
Merci! Votre message a été envoyé.






