Votre courriel a été envoyé.
Certaines informations ont été traduites automatiquement.
Faits saillants
- Prime Wauwatosa location with immediate Hwy 100 access
- Prominent building signage for maximum visibility
- Surrounded by retail, dining, and medical amenities
- Flexible suite sizes ideal for small businesses
Tous les espaces disponibles(5)
Afficher les taux de location en
- Espace
- Taille
- Terme
- Taux de location
- Utilisation de l’espace
- Aménagement
- Disponible
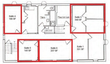
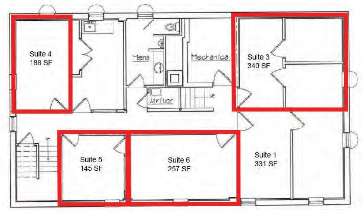
Monthly rent is $535 a month. Suite has one open area and two private offices.
- Disposition du plan d’étage ouverte
- TI negotiable to qualified tenants
- 2 bureaux privés
Monthly rent is $285 a month.
- TI negotiable to qualified tenants
- TI negotiable to qualified tenants
Rent is $265 a month
- Peut être associé à un ou plusieurs espaces supplémentaires pour obtenir jusqu’à 402 pi² d’espace adjacent.
- Can be combined with suite 6
Monthly rent is $425
- Peut être associé à un ou plusieurs espaces supplémentaires pour obtenir jusqu’à 402 pi² d’espace adjacent.
- Can be combined with suite 5
Monthly rent is $275
- Disposition du plan d’étage ouverte
- TI negotiable to qualified tenants
| Espace | Taille | Terme | Taux de location | Utilisation de l’espace | Aménagement | Disponible |
| Niveau inférieur, ste 3 | 340 pi² | Négociable | Sur demande Sur demande Sur demande Sur demande | Bureau | construction complète | Maintenant |
| Niveau inférieur, ste 4 | 188 pi² | Négociable | Sur demande Sur demande Sur demande Sur demande | Bureau | - | Maintenant |
| Niveau inférieur, ste 5 | 145 pi² | Négociable | Sur demande Sur demande Sur demande Sur demande | Bureau | - | Maintenant |
| Niveau inférieur, ste 6 | 257 pi² | Négociable | Sur demande Sur demande Sur demande Sur demande | Bureau | - | Maintenant |
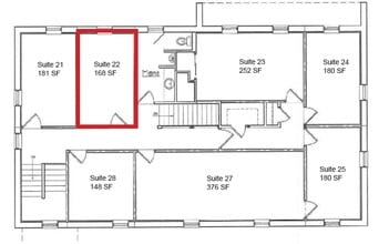
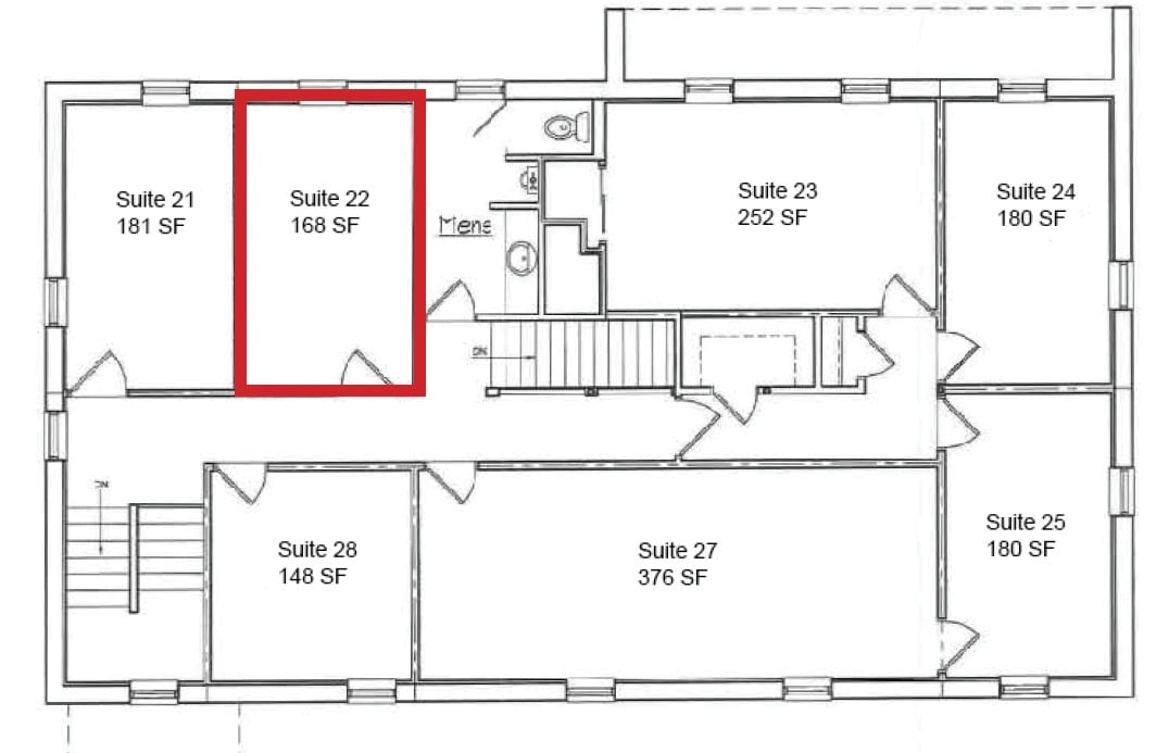
| 2e étage, ste 22 | 168 pi² | Négociable | Sur demande Sur demande Sur demande Sur demande | Bureau | espace cloisonné | Maintenant |
Niveau inférieur, ste 3
| Taille |
| 340 pi² |
| Terme |
| Négociable |
| Taux de location |
| Sur demande Sur demande Sur demande Sur demande |
| Utilisation de l’espace |
| Bureau |
| Aménagement |
| construction complète |
| Disponible |
| Maintenant |
Niveau inférieur, ste 4
| Taille |
| 188 pi² |
| Terme |
| Négociable |
| Taux de location |
| Sur demande Sur demande Sur demande Sur demande |
| Utilisation de l’espace |
| Bureau |
| Aménagement |
| - |
| Disponible |
| Maintenant |
Niveau inférieur, ste 5
| Taille |
| 145 pi² |
| Terme |
| Négociable |
| Taux de location |
| Sur demande Sur demande Sur demande Sur demande |
| Utilisation de l’espace |
| Bureau |
| Aménagement |
| - |
| Disponible |
| Maintenant |
Niveau inférieur, ste 6
| Taille |
| 257 pi² |
| Terme |
| Négociable |
| Taux de location |
| Sur demande Sur demande Sur demande Sur demande |
| Utilisation de l’espace |
| Bureau |
| Aménagement |
| - |
| Disponible |
| Maintenant |
2e étage, ste 22
| Taille |
| 168 pi² |
| Terme |
| Négociable |
| Taux de location |
| Sur demande Sur demande Sur demande Sur demande |
| Utilisation de l’espace |
| Bureau |
| Aménagement |
| espace cloisonné |
| Disponible |
| Maintenant |
Niveau inférieur, ste 3
| Taille | 340 pi² |
| Terme | Négociable |
| Taux de location | Sur demande |
| Utilisation de l’espace | Bureau |
| Aménagement | construction complète |
| Disponible | Maintenant |
Monthly rent is $535 a month. Suite has one open area and two private offices.
- Disposition du plan d’étage ouverte
- 2 bureaux privés
- TI negotiable to qualified tenants
Niveau inférieur, ste 4
| Taille | 188 pi² |
| Terme | Négociable |
| Taux de location | Sur demande |
| Utilisation de l’espace | Bureau |
| Aménagement | - |
| Disponible | Maintenant |
Monthly rent is $285 a month.
- TI negotiable to qualified tenants
- TI negotiable to qualified tenants
Niveau inférieur, ste 5
| Taille | 145 pi² |
| Terme | Négociable |
| Taux de location | Sur demande |
| Utilisation de l’espace | Bureau |
| Aménagement | - |
| Disponible | Maintenant |
Rent is $265 a month
- Peut être associé à un ou plusieurs espaces supplémentaires pour obtenir jusqu’à 402 pi² d’espace adjacent.
- Can be combined with suite 6
Niveau inférieur, ste 6
| Taille | 257 pi² |
| Terme | Négociable |
| Taux de location | Sur demande |
| Utilisation de l’espace | Bureau |
| Aménagement | - |
| Disponible | Maintenant |
Monthly rent is $425
- Peut être associé à un ou plusieurs espaces supplémentaires pour obtenir jusqu’à 402 pi² d’espace adjacent.
- Can be combined with suite 5
2e étage, ste 22
| Taille | 168 pi² |
| Terme | Négociable |
| Taux de location | Sur demande |
| Utilisation de l’espace | Bureau |
| Aménagement | espace cloisonné |
| Disponible | Maintenant |
Monthly rent is $275
- Disposition du plan d’étage ouverte
- TI negotiable to qualified tenants
Aperçu de la propriété
This two story, 4,034 square-feet, mixed use office building is conveniently located within Wauwatosa’s desirable residential and commercial district. The out-the-door lifestyle amenities are exceptional for dining, entertainment, shopping, medical, wellness and fitness. Add in strong area retailers and demographics and it’s perfect for your business.
- Affichage
Faits sur la propriété
Présenté par
10855 W Potter Rd
Hmm, il semble y avoir eu une erreur lors de l’envoi de votre message. Veuillez réessayer.
Merci! Votre message a été envoyé.








