Votre courriel a été envoyé.
109-125 W 14th St
Riviera Beach, FL 33404
Terrain À vendre
·
0,41 AC


Certaines informations ont été traduites automatiquement.
Faits saillants de l'investissement
- (4) Three-Bedroom / Two-Bath Units (~$3,260 Market | $2,860 HCV)
- Parking: 11 Off-Street Spaces
- (4) Two-Bedroom / Two-Bath Units (~$2,420 Market | $2,190 HCV)
- Total Rentable SF (Estimated): ~9,600 SF
Faits sur la propriété
| Type de vente | Investissement | Sous-type de propriété | Résidentiel |
| Condition de vente | Projet de redéveloppement | Utilisation proposée | Multi-résidentiel |
| Nombre de lots | 1 | Taille totale du lot | 0,41 AC |
| Type de propriété | Terrain | ||
| Zonage | DR - Résidentiel multifamilial | ||
| Type de vente | Investissement |
| Condition de vente | Projet de redéveloppement |
| Nombre de lots | 1 |
| Type de propriété | Terrain |
| Sous-type de propriété | Résidentiel |
| Utilisation proposée | Multi-résidentiel |
| Taille totale du lot | 0,41 AC |
| Zonage | DR - Résidentiel multifamilial |
1 Lot disponible
Lot
| Prix | 1 496 059 $ CAD | Taille du lot | 0,41 AC |
| Prix par AC | 3 648 924,77 $ CAD |
| Prix | 1 496 059 $ CAD |
| Prix par AC | 3 648 924,77 $ CAD |
| Taille du lot | 0,41 AC |
Description
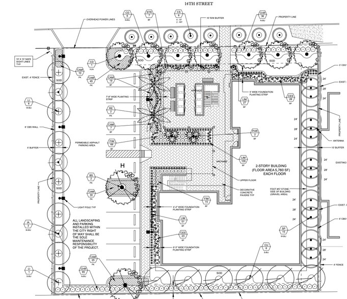
A rare, shovel-ready multifamily opportunity in the thriving redevelopment zone of Riviera Beach. This three-parcel assemblage is fully entitled and comes with a permit Submittal ready construction package, ideal for investors or developers seeking a ready to go development. The project consists of a two-story, 8-unit building featuring modern layouts and a strategic mix of unit types perfectly aligned with rental market demand. Property Highlights: Status: Site Plan Approved | Permits Ready to Submit Address: 109, 117, 125 W 14th St, Riviera Beach, FL 33404 Building Type: 2-Story Multifamily Total Units: 8 (4) Three-Bedroom / Two-Bath Units (~$3,260 Market | $2,860 HCV) (4) Two-Bedroom / Two-Bath Units (~$2,420 Market | $2,190 HCV) Parking: 11 Off-Street Spaces Total Rentable SF (Estimated): ~9,600 SF Land Size: Approx. 0.41 Acres Key Location Drivers: Marina Village Expansion: $375M+ revitalization of Riviera Beach Marina District including mixed-use, retail, hotel, and residential. Oculina Bank Headquarters Project: Major commercial redevelopment just blocks away, creating employment and foot traffic. Strategic Proximity: Port of Palm Beach, US-1, Blue Heron Blvd, I-95, and major employment nodes. Exit Strategies: Build-to-Rent with strong cash flow via market or voucher leasing Build-and-sell to institutional buyer at stabilization (6-7.5% cap rate) Condo exit potential with individual unit sales post-CO
Impôts fonciers
| Numéros de lot | Évaluation des bâtiments | 0 $ CAD | |
| Évaluation du terrain | 0 $ CAD | Évaluation totale | 260 151 $ CAD |
