Votre courriel a été envoyé.
Certaines informations ont été traduites automatiquement.
Tous les espaces disponibles(1)
Afficher les taux de location en
- Espace
- Taille
- Terme
- Taux de location
- Utilisation de l’espace
- État
- Disponible
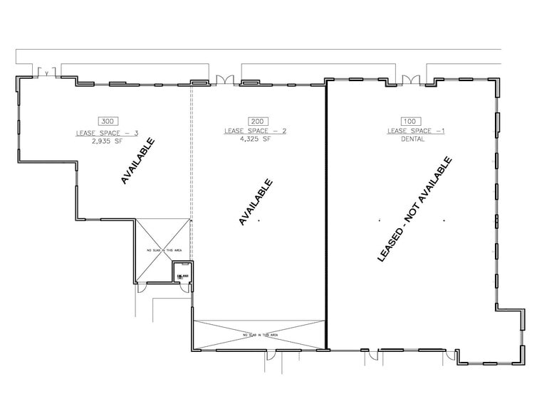
NEW CONSTRUCTION! The dark gray shell is estimated to be ready for delivery to prospective tenants in Fall of 2025. Bring your medical, office, or retail business to this amazing location. This property is adjacent to the new Wal-mart to be constructed. This new Commercial strip center is direct frontage on CR466, a well traveled thoroughfare with over 25,000 vehicles per day, which is sure to increase with the new Wal-mart to the east and Costco to the west. Available spaces are unit #200 which is 4,325 sq ft and unit #300 which is 2,935 sq ft, or combine for 7,260 sq ft. The adjacent space, unit #100, is a Dentist, under contract. The adjacent building, which is also under construction, will be a thriving Dermatology practice that will bring continuous traffic to the site. In addition to the base rent, there will also be $4 CAM and $4 additional rent to cover real estate taxes and insurance. 5-year lease term minimum.
- Le taux de location ne comprend pas les services publics, les services de bâtiment ou les dépenses immobilières.
- Direct frontage on 466.
- Disposition du plan d’étage ouverte en général
| Espace | Taille | Terme | Taux de location | Utilisation de l’espace | État | Disponible |
| 1er étage, ste 200 & 300 | 2 935 à 7 260 pi² | 5-10 ans | 47,70 $ CAD/pi²/an 3,98 $ CAD/pi²/mois 346 323 $ CAD/an 28 860 $ CAD/mois | Bureau | espace cloisonné | 2026-05-01 |
1er étage, ste 200 & 300
| Taille |
| 2 935 à 7 260 pi² |
| Terme |
| 5-10 ans |
| Taux de location |
| 47,70 $ CAD/pi²/an 3,98 $ CAD/pi²/mois 346 323 $ CAD/an 28 860 $ CAD/mois |
| Utilisation de l’espace |
| Bureau |
| État |
| espace cloisonné |
| Disponible |
| 2026-05-01 |
1er étage, ste 200 & 300
| Taille | 2 935 à 7 260 pi² |
| Terme | 5-10 ans |
| Taux de location | 47,70 $ CAD/pi²/an |
| Utilisation de l’espace | Bureau |
| État | espace cloisonné |
| Disponible | 2026-05-01 |
NEW CONSTRUCTION! The dark gray shell is estimated to be ready for delivery to prospective tenants in Fall of 2025. Bring your medical, office, or retail business to this amazing location. This property is adjacent to the new Wal-mart to be constructed. This new Commercial strip center is direct frontage on CR466, a well traveled thoroughfare with over 25,000 vehicles per day, which is sure to increase with the new Wal-mart to the east and Costco to the west. Available spaces are unit #200 which is 4,325 sq ft and unit #300 which is 2,935 sq ft, or combine for 7,260 sq ft. The adjacent space, unit #100, is a Dentist, under contract. The adjacent building, which is also under construction, will be a thriving Dermatology practice that will bring continuous traffic to the site. In addition to the base rent, there will also be $4 CAM and $4 additional rent to cover real estate taxes and insurance. 5-year lease term minimum.
- Le taux de location ne comprend pas les services publics, les services de bâtiment ou les dépenses immobilières.
- Disposition du plan d’étage ouverte en général
- Direct frontage on 466.
Aperçu de la propriété
NEW CONSTRUCTION! The dark gray shell is estimated to be ready for delivery to prospective tenants in April 2026. Bring your medical, office, or retail business to this amazing location. This property is adjacent to the new Walmart to be constructed. This new Commercial strip center is direct frontage on CR466, a well traveled thoroughfare with over 25,000 vehicles per day, which is sure to increase with the new Walmart to the east and Costco to the west. Available spaces are unit #200 which is4,325 sq ft and unit #300 which is 2,935 sq ft, or combine for 7,260 sq ft. The adjacent space, unit #100, is a Dentist, under contract. In addition to the base rent, there will also be $4 CAM and $4 additional rent to cover real estate taxes and insurance. 5-year lease term minimum.
Faits sur la propriété
Présenté par
10941 NE 89th Dr
Hmm, il semble y avoir eu une erreur lors de l’envoi de votre message. Veuillez réessayer.
Merci! Votre message a été envoyé.





