Votre courriel a été envoyé.
11 Rue De La Desserte Industrielle 5 490–21 227 pi² d'espace disponible • Flex • 91220 Brétigny-sur-Orge



Certaines informations ont été traduites automatiquement.
FAITS SAILLANTS
- Implantation au sein d’une zone d’activité établie
- Proximité immédiate du RER C Brétigny-sur-Orge
- Accès rapide aux axes N104 et N19
CARACTÉRISTIQUES
TOUS LES ESPACES DISPONIBLES(3)
Afficher les taux de location en
- ESPACE
- TAILLE
- TERME
-
TAUX DE LOCATION
- UTILISATION DE L’ESPACE
- ÉTAT
- DISPONIBLE
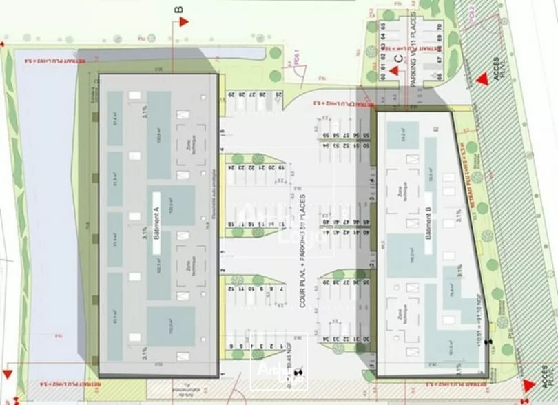
À Brétigny-sur-Orge (91220), au sein de la zone d’activité, un programme mixte neuf à louer développe une surface totale de 1 972 m², divisible à partir de 510 m². L’ensemble est composé de plusieurs cellules d’activité associant des surfaces en rez-de-chaussée à usage d’activité ou de stockage et des bureaux en 1er étage. Les lots proposés comprennent des surfaces de 434 à 725 m² d’activité complétées par des bureaux allant de 104 à 197 m², permettant une organisation fonctionnelle adaptée aux besoins des entreprises artisanales, industrielles légères ou de distribution. Le bâtiment offre une hauteur de 7,50 mètres sous poutre et de 4,50 mètres sous bureaux, un accès plain-pied facilitant les flux logistiques ainsi que des prestations techniques comprenant un faux plafond dans les espaces bureaux. Le site est clos et dispose de 20 places de stationnement extérieures communes, complétées par des parkings privatifs rattachés à chaque lot. La disponibilité est annoncée 12 mois après accord. Le loyer annuel global s’établit à 216 920 € HT HC, soit un loyer à partir de 110 €/m²/an HT HC, avec des charges annuelles de 18 536,80 € HT. Le bail est de type commercial, avec un dépôt de garantie équivalent à 3 mois de loyer. Les honoraires de commercialisation, à la charge du preneur, représentent 15 % HT du loyer annuel HT hors charges.
- Honoraires preneur: 15,00% du taux de location annuel
- Dépôt de garantie: 3% du taux de location annuel
- Espace en excellent état
- Système de sécurité
- Surfaces divisibles à partir de 510 m²
- Stationnements extérieurs et site clos
-
Charges locatives: 0,87 $ /pi²/an 0,07 $ /pi²/mois 5 076 $ /an 423,01 $ /mois
- Comprend 1 141 pi² d’espace de bureau dédié
- Bureaux partitionnés
- Entreposage sécurisé
- Accès plain-pied et hauteur adaptée à l’activité
À Brétigny-sur-Orge (91220), au sein de la zone d’activité, un programme mixte neuf à louer développe une surface totale de 1 972 m², divisible à partir de 510 m². L’ensemble est composé de plusieurs cellules d’activité associant des surfaces en rez-de-chaussée à usage d’activité ou de stockage et des bureaux en 1er étage. Les lots proposés comprennent des surfaces de 434 à 725 m² d’activité complétées par des bureaux allant de 104 à 197 m², permettant une organisation fonctionnelle adaptée aux besoins des entreprises artisanales, industrielles légères ou de distribution. Le bâtiment offre une hauteur de 7,50 mètres sous poutre et de 4,50 mètres sous bureaux, un accès plain-pied facilitant les flux logistiques ainsi que des prestations techniques comprenant un faux plafond dans les espaces bureaux. Le site est clos et dispose de 20 places de stationnement extérieures communes, complétées par des parkings privatifs rattachés à chaque lot. La disponibilité est annoncée 12 mois après accord. Le loyer annuel global s’établit à 216 920 € HT HC, soit un loyer à partir de 110 €/m²/an HT HC, avec des charges annuelles de 18 536,80 € HT. Le bail est de type commercial, avec un dépôt de garantie équivalent à 3 mois de loyer. Les honoraires de commercialisation, à la charge du preneur, représentent 15 % HT du loyer annuel HT hors charges.
- Honoraires preneur: 15,00% du taux de location annuel
- Dépôt de garantie: 3% du taux de location annuel
- Espace en excellent état
- Système de sécurité
- Surfaces divisibles à partir de 510 m²
- Stationnements extérieurs et site clos
-
Charges locatives: 0,87 $ /pi²/an 0,07 $ /pi²/mois 4 794 $ /an 399,51 $ /mois
- Comprend 1 119 pi² d’espace de bureau dédié
- Bureaux partitionnés
- Entreposage sécurisé
- Accès plain-pied et hauteur adaptée à l’activité
À Brétigny-sur-Orge (91220), au sein de la zone d’activité, un programme mixte neuf à louer développe une surface totale de 1 972 m², divisible à partir de 510 m². L’ensemble est composé de plusieurs cellules d’activité associant des surfaces en rez-de-chaussée à usage d’activité ou de stockage et des bureaux en 1er étage. Les lots proposés comprennent des surfaces de 434 à 725 m² d’activité complétées par des bureaux allant de 104 à 197 m², permettant une organisation fonctionnelle adaptée aux besoins des entreprises artisanales, industrielles légères ou de distribution. Le bâtiment offre une hauteur de 7,50 mètres sous poutre et de 4,50 mètres sous bureaux, un accès plain-pied facilitant les flux logistiques ainsi que des prestations techniques comprenant un faux plafond dans les espaces bureaux. Le site est clos et dispose de 20 places de stationnement extérieures communes, complétées par des parkings privatifs rattachés à chaque lot. La disponibilité est annoncée 12 mois après accord. Le loyer annuel global s’établit à 216 920 € HT HC, soit un loyer à partir de 110 €/m²/an HT HC, avec des charges annuelles de 18 536,80 € HT. Le bail est de type commercial, avec un dépôt de garantie équivalent à 3 mois de loyer. Les honoraires de commercialisation, à la charge du preneur, représentent 15 % HT du loyer annuel HT hors charges.
- Honoraires preneur: 15,00% du taux de location annuel
- Dépôt de garantie: 3% du taux de location annuel
- Espace en excellent état
- Système de sécurité
- Surfaces divisibles à partir de 510 m²
- Stationnements extérieurs et site clos
-
Charges locatives: 0,87 $ /pi²/an 0,07 $ /pi²/mois 8 667 $ /an 722,24 $ /mois
- Comprend 2 120 pi² d’espace de bureau dédié
- Bureaux partitionnés
- Entreposage sécurisé
- Accès plain-pied et hauteur adaptée à l’activité
| Espace | Taille | Terme | Taux de location | Utilisation de l’espace | État | Disponible |
| RDC - Lot b.1 | 5 813 pi² | 3/6/9 | 10,22 $ /HT-HC/pi²/an 0,85 $ /HT-HC/pi²/mois 59 400 $ /HT-HC/an 4 950 $ /HT-HC/mois | Flex | - | 2026-12-01 |
| RDC - Lot b.2 | 5 490 pi² | 3/6/9 | 10,22 $ /HT-HC/pi²/an 0,85 $ /HT-HC/pi²/mois 56 100 $ /HT-HC/an 4 675 $ /HT-HC/mois | Flex | construction complète | 2026-12-01 |
| RDC - Lot b.3 | 9 924 pi² | 3/6/9 | 10,22 $ /HT-HC/pi²/an 0,85 $ /HT-HC/pi²/mois 101 420 $ /HT-HC/an 8 452 $ /HT-HC/mois | Flex | construction complète | 2026-12-01 |
RDC - Lot b.1
| Taille |
| 5 813 pi² |
| Terme |
| 3/6/9 |
|
Taux de location
|
| 10,22 $ /HT-HC/pi²/an 0,85 $ /HT-HC/pi²/mois 59 400 $ /HT-HC/an 4 950 $ /HT-HC/mois |
| Utilisation de l’espace |
| Flex |
| État |
| - |
| Disponible |
| 2026-12-01 |
RDC - Lot b.2
| Taille |
| 5 490 pi² |
| Terme |
| 3/6/9 |
|
Taux de location
|
| 10,22 $ /HT-HC/pi²/an 0,85 $ /HT-HC/pi²/mois 56 100 $ /HT-HC/an 4 675 $ /HT-HC/mois |
| Utilisation de l’espace |
| Flex |
| État |
| construction complète |
| Disponible |
| 2026-12-01 |
RDC - Lot b.3
| Taille |
| 9 924 pi² |
| Terme |
| 3/6/9 |
|
Taux de location
|
| 10,22 $ /HT-HC/pi²/an 0,85 $ /HT-HC/pi²/mois 101 420 $ /HT-HC/an 8 452 $ /HT-HC/mois |
| Utilisation de l’espace |
| Flex |
| État |
| construction complète |
| Disponible |
| 2026-12-01 |
RDC - Lot b.1
| Taille | 5 813 pi² |
| Terme | 3/6/9 |
|
Taux de location
|
10,22 $ /HT-HC/pi²/an |
| Utilisation de l’espace | Flex |
| État | - |
| Disponible | 2026-12-01 |
À Brétigny-sur-Orge (91220), au sein de la zone d’activité, un programme mixte neuf à louer développe une surface totale de 1 972 m², divisible à partir de 510 m². L’ensemble est composé de plusieurs cellules d’activité associant des surfaces en rez-de-chaussée à usage d’activité ou de stockage et des bureaux en 1er étage. Les lots proposés comprennent des surfaces de 434 à 725 m² d’activité complétées par des bureaux allant de 104 à 197 m², permettant une organisation fonctionnelle adaptée aux besoins des entreprises artisanales, industrielles légères ou de distribution. Le bâtiment offre une hauteur de 7,50 mètres sous poutre et de 4,50 mètres sous bureaux, un accès plain-pied facilitant les flux logistiques ainsi que des prestations techniques comprenant un faux plafond dans les espaces bureaux. Le site est clos et dispose de 20 places de stationnement extérieures communes, complétées par des parkings privatifs rattachés à chaque lot. La disponibilité est annoncée 12 mois après accord. Le loyer annuel global s’établit à 216 920 € HT HC, soit un loyer à partir de 110 €/m²/an HT HC, avec des charges annuelles de 18 536,80 € HT. Le bail est de type commercial, avec un dépôt de garantie équivalent à 3 mois de loyer. Les honoraires de commercialisation, à la charge du preneur, représentent 15 % HT du loyer annuel HT hors charges.
- Honoraires preneur: 15,00% du taux de location annuel
-
Charges locatives: 0,87 $ /pi²/an 0,07 $ /pi²/mois 5 076 $ /an 423,01 $ /mois
- Dépôt de garantie: 3% du taux de location annuel
- Comprend 1 141 pi² d’espace de bureau dédié
- Espace en excellent état
- Bureaux partitionnés
- Système de sécurité
- Entreposage sécurisé
- Surfaces divisibles à partir de 510 m²
- Accès plain-pied et hauteur adaptée à l’activité
- Stationnements extérieurs et site clos
RDC - Lot b.2
| Taille | 5 490 pi² |
| Terme | 3/6/9 |
|
Taux de location
|
10,22 $ /HT-HC/pi²/an |
| Utilisation de l’espace | Flex |
| État | construction complète |
| Disponible | 2026-12-01 |
À Brétigny-sur-Orge (91220), au sein de la zone d’activité, un programme mixte neuf à louer développe une surface totale de 1 972 m², divisible à partir de 510 m². L’ensemble est composé de plusieurs cellules d’activité associant des surfaces en rez-de-chaussée à usage d’activité ou de stockage et des bureaux en 1er étage. Les lots proposés comprennent des surfaces de 434 à 725 m² d’activité complétées par des bureaux allant de 104 à 197 m², permettant une organisation fonctionnelle adaptée aux besoins des entreprises artisanales, industrielles légères ou de distribution. Le bâtiment offre une hauteur de 7,50 mètres sous poutre et de 4,50 mètres sous bureaux, un accès plain-pied facilitant les flux logistiques ainsi que des prestations techniques comprenant un faux plafond dans les espaces bureaux. Le site est clos et dispose de 20 places de stationnement extérieures communes, complétées par des parkings privatifs rattachés à chaque lot. La disponibilité est annoncée 12 mois après accord. Le loyer annuel global s’établit à 216 920 € HT HC, soit un loyer à partir de 110 €/m²/an HT HC, avec des charges annuelles de 18 536,80 € HT. Le bail est de type commercial, avec un dépôt de garantie équivalent à 3 mois de loyer. Les honoraires de commercialisation, à la charge du preneur, représentent 15 % HT du loyer annuel HT hors charges.
- Honoraires preneur: 15,00% du taux de location annuel
-
Charges locatives: 0,87 $ /pi²/an 0,07 $ /pi²/mois 4 794 $ /an 399,51 $ /mois
- Dépôt de garantie: 3% du taux de location annuel
- Comprend 1 119 pi² d’espace de bureau dédié
- Espace en excellent état
- Bureaux partitionnés
- Système de sécurité
- Entreposage sécurisé
- Surfaces divisibles à partir de 510 m²
- Accès plain-pied et hauteur adaptée à l’activité
- Stationnements extérieurs et site clos
RDC - Lot b.3
| Taille | 9 924 pi² |
| Terme | 3/6/9 |
|
Taux de location
|
10,22 $ /HT-HC/pi²/an |
| Utilisation de l’espace | Flex |
| État | construction complète |
| Disponible | 2026-12-01 |
À Brétigny-sur-Orge (91220), au sein de la zone d’activité, un programme mixte neuf à louer développe une surface totale de 1 972 m², divisible à partir de 510 m². L’ensemble est composé de plusieurs cellules d’activité associant des surfaces en rez-de-chaussée à usage d’activité ou de stockage et des bureaux en 1er étage. Les lots proposés comprennent des surfaces de 434 à 725 m² d’activité complétées par des bureaux allant de 104 à 197 m², permettant une organisation fonctionnelle adaptée aux besoins des entreprises artisanales, industrielles légères ou de distribution. Le bâtiment offre une hauteur de 7,50 mètres sous poutre et de 4,50 mètres sous bureaux, un accès plain-pied facilitant les flux logistiques ainsi que des prestations techniques comprenant un faux plafond dans les espaces bureaux. Le site est clos et dispose de 20 places de stationnement extérieures communes, complétées par des parkings privatifs rattachés à chaque lot. La disponibilité est annoncée 12 mois après accord. Le loyer annuel global s’établit à 216 920 € HT HC, soit un loyer à partir de 110 €/m²/an HT HC, avec des charges annuelles de 18 536,80 € HT. Le bail est de type commercial, avec un dépôt de garantie équivalent à 3 mois de loyer. Les honoraires de commercialisation, à la charge du preneur, représentent 15 % HT du loyer annuel HT hors charges.
- Honoraires preneur: 15,00% du taux de location annuel
-
Charges locatives: 0,87 $ /pi²/an 0,07 $ /pi²/mois 8 667 $ /an 722,24 $ /mois
- Dépôt de garantie: 3% du taux de location annuel
- Comprend 2 120 pi² d’espace de bureau dédié
- Espace en excellent état
- Bureaux partitionnés
- Système de sécurité
- Entreposage sécurisé
- Surfaces divisibles à partir de 510 m²
- Accès plain-pied et hauteur adaptée à l’activité
- Stationnements extérieurs et site clos
APERÇU DE LA PROPRIÉTÉ
Le programme est implanté au cœur de la zone d’activité de Brétigny-sur-Orge, un secteur reconnu pour son accessibilité et son attractivité économique au sud de l’Île-de-France. Le site bénéficie d’une connexion rapide aux axes routiers majeurs N104 et N19, facilitant les liaisons logistiques régionales et métropolitaines. L’environnement combine un tissu d’entreprises diversifiées et un cadre fonctionnel propice au développement des activités professionnelles. La conception du programme, associée à la qualité des dessertes routières et ferroviaires, en fait une implantation adaptée aux entreprises recherchant des locaux neufs, bien connectés et évolutifs au sein d’un pôle économique structuré.
FAITS SUR LA PROPRIÉTÉ
Présenté par
11 Rue De La Desserte Industrielle
Hmm, il semble y avoir eu une erreur lors de l’envoi de votre message. Veuillez réessayer.
Merci! Votre message a été envoyé.
