Votre courriel a été envoyé.
Euclid Corridor Industrial Mall 1100 E 222nd St 14 595–83 389 pi² d'espace disponible • Euclid, OH 44117



Certaines informations ont été traduites automatiquement.
CARACTÉRISTIQUES
Afficher les taux de location en
- ESPACE
- TAILLE
- TERME
- TAUX DE LOCATION
- UTILISATION DE L’ESPACE
- ÉTAT
- DISPONIBLE
Warehouse 14,987 SF; Office 507 SF; Two docks, 1 drive in bay; 10'-3'' to 13'-8" clear height.
- Le taux de location ne comprend pas les services publics, les services de bâtiment ou les dépenses immobilières.
- Convient pour 39 à 124 personnes
- Comprend 507 pi² d’espace de bureau dédié
| Espace | Taille | Terme | Taux de location | Utilisation de l’espace | État | Disponible |
| 1er étage - 10,12 | 15 495 pi² | Négociable | 4,06 $ CAD/pi²/an 0,34 $ CAD/pi²/mois 62 957 $ CAD/an 5 246 $ CAD/mois | Flex | construction partielle | 30 jours |
1er étage - 10,12
| Taille |
| 15 495 pi² |
| Terme |
| Négociable |
| Taux de location |
| 4,06 $ CAD/pi²/an 0,34 $ CAD/pi²/mois 62 957 $ CAD/an 5 246 $ CAD/mois |
| Utilisation de l’espace |
| Flex |
| État |
| construction partielle |
| Disponible |
| 30 jours |
- ESPACE
- TAILLE
- TERME
- TAUX DE LOCATION
- UTILISATION DE L’ESPACE
- ÉTAT
- DISPONIBLE
- Le taux de location ne comprend pas les services publics, les services de bâtiment ou les dépenses immobilières.
- 2 quais de chargement
- 1 accès plain-pied
Warehouse 14,987 SF; Office 507 SF; Two docks, 1 drive in bay; 10'-3'' to 13'-8" clear height.
- Le taux de location ne comprend pas les services publics, les services de bâtiment ou les dépenses immobilières.
- Convient pour 39 à 124 personnes
- Comprend 507 pi² d’espace de bureau dédié
12' clear height.
- Comprend 800 pi² d’espace de bureau dédié
- 3 quais de chargement
- 1 accès plain-pied
- Excellent accès à l'autoroute
Excellent warehouse space with immediate highway access.
- Comprend 427 pi² d’espace de bureau dédié
- 3 quais de chargement
- 1 accès plain-pied
- Éclairage d’urgence
| Espace | Taille | Terme | Taux de location | Utilisation de l’espace | État | Disponible |
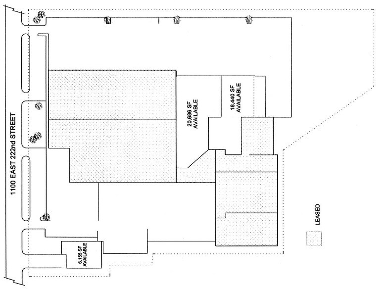
| 1er étage - 10,11, 12 | 18 400 pi² | Négociable | 4,06 $ CAD/pi²/an 0,34 $ CAD/pi²/mois 74 760 $ CAD/an 6 230 $ CAD/mois | Industriel | construction partielle | 30 jours |
| 1er étage - 10,12 | 15 495 pi² | Négociable | 4,06 $ CAD/pi²/an 0,34 $ CAD/pi²/mois 62 957 $ CAD/an 5 246 $ CAD/mois | Flex | construction partielle | 30 jours |
| 1er étage - 13,14,15 | 14 595 pi² | Négociable | Sur demande Sur demande Sur demande Sur demande | Industriel | construction complète | Maintenant |
| 1er étage - 8 & 16 | 34 899 pi² | Négociable | Sur demande Sur demande Sur demande Sur demande | Industriel | construction complète | Maintenant |
1er étage - 10,11, 12
| Taille |
| 18 400 pi² |
| Terme |
| Négociable |
| Taux de location |
| 4,06 $ CAD/pi²/an 0,34 $ CAD/pi²/mois 74 760 $ CAD/an 6 230 $ CAD/mois |
| Utilisation de l’espace |
| Industriel |
| État |
| construction partielle |
| Disponible |
| 30 jours |
1er étage - 10,12
| Taille |
| 15 495 pi² |
| Terme |
| Négociable |
| Taux de location |
| 4,06 $ CAD/pi²/an 0,34 $ CAD/pi²/mois 62 957 $ CAD/an 5 246 $ CAD/mois |
| Utilisation de l’espace |
| Flex |
| État |
| construction partielle |
| Disponible |
| 30 jours |
1er étage - 13,14,15
| Taille |
| 14 595 pi² |
| Terme |
| Négociable |
| Taux de location |
| Sur demande Sur demande Sur demande Sur demande |
| Utilisation de l’espace |
| Industriel |
| État |
| construction complète |
| Disponible |
| Maintenant |
1er étage - 8 & 16
| Taille |
| 34 899 pi² |
| Terme |
| Négociable |
| Taux de location |
| Sur demande Sur demande Sur demande Sur demande |
| Utilisation de l’espace |
| Industriel |
| État |
| construction complète |
| Disponible |
| Maintenant |
1er étage - 10,11, 12
| Taille | 18 400 pi² |
| Terme | Négociable |
| Taux de location | 4,06 $ CAD/pi²/an |
| Utilisation de l’espace | Industriel |
| État | construction partielle |
| Disponible | 30 jours |
- Le taux de location ne comprend pas les services publics, les services de bâtiment ou les dépenses immobilières.
- 1 accès plain-pied
- 2 quais de chargement
1er étage - 10,12
| Taille | 15 495 pi² |
| Terme | Négociable |
| Taux de location | 4,06 $ CAD/pi²/an |
| Utilisation de l’espace | Flex |
| État | construction partielle |
| Disponible | 30 jours |
Warehouse 14,987 SF; Office 507 SF; Two docks, 1 drive in bay; 10'-3'' to 13'-8" clear height.
- Le taux de location ne comprend pas les services publics, les services de bâtiment ou les dépenses immobilières.
- Comprend 507 pi² d’espace de bureau dédié
- Convient pour 39 à 124 personnes
1er étage - 13,14,15
| Taille | 14 595 pi² |
| Terme | Négociable |
| Taux de location | Sur demande |
| Utilisation de l’espace | Industriel |
| État | construction complète |
| Disponible | Maintenant |
12' clear height.
- Comprend 800 pi² d’espace de bureau dédié
- 1 accès plain-pied
- 3 quais de chargement
- Excellent accès à l'autoroute
1er étage - 8 & 16
| Taille | 34 899 pi² |
| Terme | Négociable |
| Taux de location | Sur demande |
| Utilisation de l’espace | Industriel |
| État | construction complète |
| Disponible | Maintenant |
Excellent warehouse space with immediate highway access.
- Comprend 427 pi² d’espace de bureau dédié
- 1 accès plain-pied
- 3 quais de chargement
- Éclairage d’urgence
FAITS SUR L’INSTALLATION ENTREPÔT
SÉLECTIONNER DES LOCATAIRES
- ÉTAGE
- NOM DU LOCATAIRE
- 1ᵉʳ
- Abbey Machine Products Company
- 1ᵉʳ
- Air Ocean International Shipping To Ohio Moving Fr
- 1ᵉʳ
- Microsheen Corp
- 1ᵉʳ
- S & S Inc
Présenté par
Euclid Corridor Industrial Mall | 1100 E 222nd St
Hmm, il semble y avoir eu une erreur lors de l’envoi de votre message. Veuillez réessayer.
Merci! Votre message a été envoyé.
