Se Connecter/S’inscrire
Votre courriel a été envoyé.
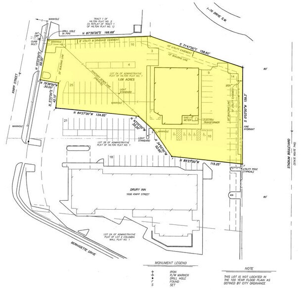
1100 Knipp St
Columbia, MO 65203
Commerce de détail Propriété À louer
·
5 956 pi²


Certaines informations ont été traduites automatiquement.
Faits saillants
- Locataire responsable de l'assurance, des taxes et de l'entretien des locaux dans les aires communes
- Parmi les autres entreprises avoisinantes, mentionnons une station-service, Columbia Mall, Holiday Inn Expo Center et d'autres magasins de détail
- Le locateur accepte d'ajouter un petit patio extérieur
- Beaucoup de places de stationnement
- Excellent dénombrement de la circulation : 10 000 à 19 999-boulevard Stadium, 5 000 à 9 999-promenade Bernadette, 400-999-I-70 promenade
Faits sur la propriété
| Superficie totale disponible | 5 956 pi² | Superficie commerciale brute | 5 956 pi² |
| Type de propriété | Commerce de détail | Année de construction | 1998 |
| Sous-type de propriété | Restaurant |
| Superficie totale disponible | 5 956 pi² |
| Type de propriété | Commerce de détail |
| Sous-type de propriété | Restaurant |
| Superficie commerciale brute | 5 956 pi² |
| Année de construction | 1998 |
À propos de la propriété
Espace prêt pour un restaurant de 6 000 SF situé sur la rue Knipp, à côté de Drury Inn, à la sortie du boulevard Stadium avec une grande visibilité de l'I-70 et du boulevard Stadium.
- Visibilité de l'autoroute
- Restaurant
- Éclairage accentué
- Climatisation
1 de 4
Vidéos
Visite extérieure 3D Matterport
Visite 3D Matterport
Photos
Vue depuis la rue
Rue
Carte
