Votre courriel a été envoyé.
Southview Square 11021 Fuqua St 2 000–19 164 pi² d'espace disponible • Commerce de détail • Houston, TX 77089



Certaines informations ont été traduites automatiquement.
Faits saillants
- Open Plan
- Large Parking Lot
- Heavy Foot Traffic
- Anchor Space
Disponibilité des espaces (5)
Afficher les taux de location en
- Espace
- Taille
- Terme
- Taux de location
- Type de loyer
| Espace | Taille | Terme | Taux de location | Type de loyer | ||
| 1er étage, ste 11005 A - 11007 A | 2 408 pi² | 3 ans | 24,80 $ CAD/pi²/an 2,07 $ CAD/pi²/mois 59 706 $ CAD/an 4 976 $ CAD/mois | Loyer hypernet | ||
| 1er étage, ste 11025 | 2 000 pi² | 3 ans | 24,80 $ CAD/pi²/an 2,07 $ CAD/pi²/mois 49 590 $ CAD/an 4 133 $ CAD/mois | Loyer hypernet | ||
| 1er étage, ste 11035 | 2 000 pi² | 3 ans | 24,80 $ CAD/pi²/an 2,07 $ CAD/pi²/mois 49 590 $ CAD/an 4 133 $ CAD/mois | Loyer hypernet | ||
| 1er étage, ste 11039 | 10 356 pi² | Négociable | Sur demande Sur demande Sur demande Sur demande | À déterminer | ||
| 1er étage, ste 11045 A | 2 400 pi² | 3 ans | 24,80 $ CAD/pi²/an 2,07 $ CAD/pi²/mois 59 508 $ CAD/an 4 959 $ CAD/mois | Loyer hypernet |
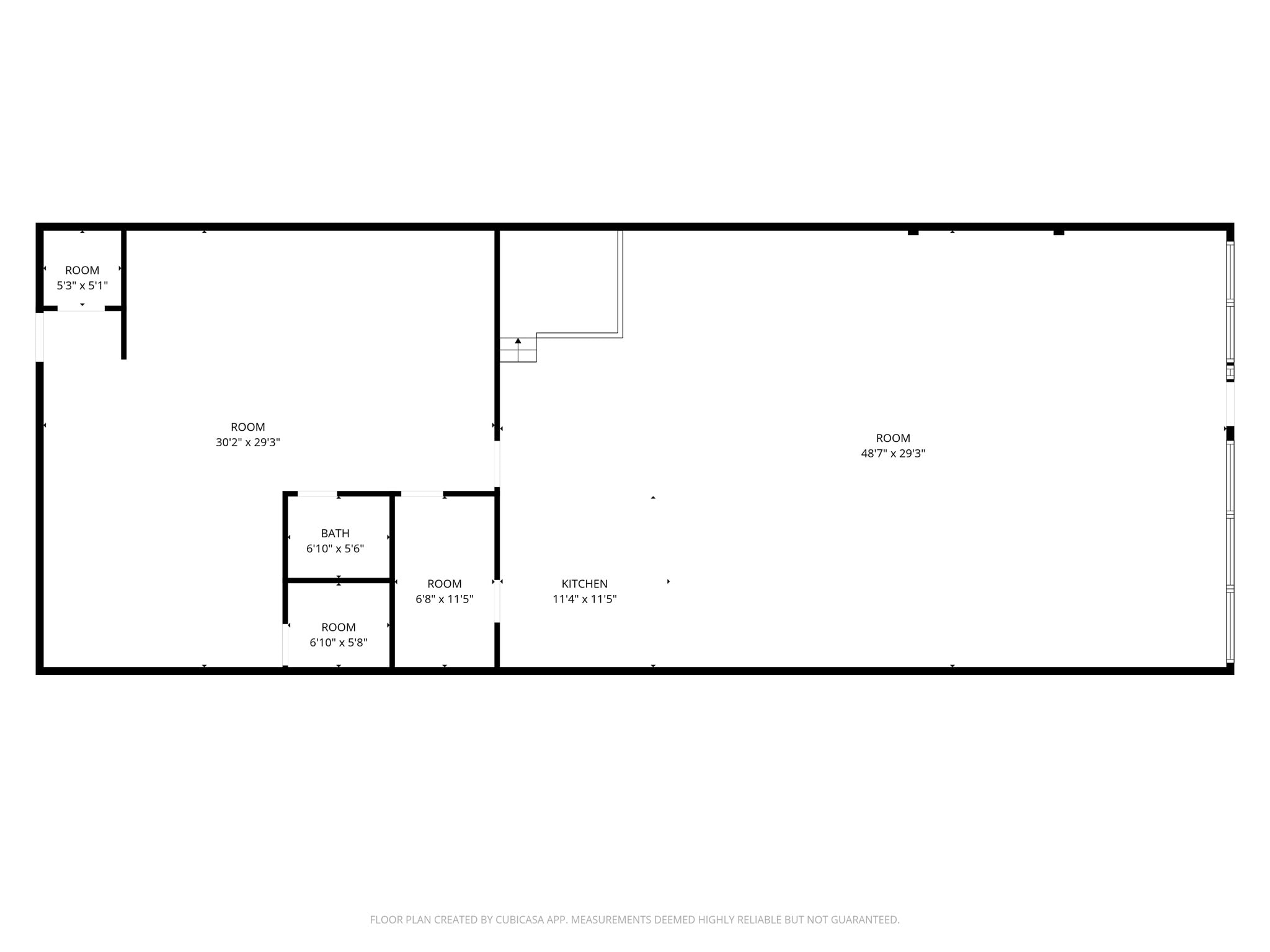
11001-11051 Fuqua St - 1er étage - ste 11005 A - 11007 A
- Le taux de location ne comprend pas les services publics, les services de bâtiment ou les dépenses immobilières.
- Situé en ligne avec d’autres commerces de détail
11001-11051 Fuqua St - 1er étage - ste 11025
A former bar/grill White-box unit Grease trap access
- Le taux de location ne comprend pas les services publics, les services de bâtiment ou les dépenses immobilières.
- Partiellement construit comme Établissement de boissons
11001-11051 Fuqua St - 1er étage - ste 11035
- Le taux de location ne comprend pas les services publics, les services de bâtiment ou les dépenses immobilières.
- Partiellement construit comme Espace de commerce de détail standard
- Situé en ligne avec d’autres commerces de détail
11001-11051 Fuqua St - 1er étage - ste 11039
This 10,356 SF space, formerly occupied by Dollar General, offers a prime opportunity for tenants seeking scale and visibility and an anchor space. Built out for retail use, the layout provides excellent frontage, open sightlines, and flexible interior dimensions ideal for reconfiguration. The space serves as a clean slate for fitness concepts, medical clinics, discount retailers, or showroom-style operations.
- Partiellement construit comme Espace de commerce de détail standard
- Situé en ligne avec d’autres commerces de détail
- Espace nécessitant des rénovations
- Espace pour locataire majeur
- Air central et chauffage
- Salle de bains privée
- Hauts plafonds
- Plafond suspendu
- CVCA disponible après les heures de travail
- Anchor Space
11001-11051 Fuqua St - 1er étage - ste 11045 A
- Le taux de location ne comprend pas les services publics, les services de bâtiment ou les dépenses immobilières.
Types de loyers
Le type et le montant du loyer que le locataire (preneur) est tenu de payer au propriétaire (bailleur) sur la durée du bail sont négociés avant la signature du bail par les deux parties. Le type de loyer varie selon les services fournis. Par exemple, le prix d’un loyer hypernet est habituellement inférieur à celui d’un bail à service complet puisque le locataire est tenu d’assumer des dépenses additionnelles par rapport au loyer de base. Contactez le courtier inscripteur pour tout connaître sur les frais connexes et additionnels associés à chaque type de loyer.
1. Service complet: Un taux de location qui comprend des services standards liés à l’immeuble fournis par le propriétaire dans le cadre d’une location annuelle de base.
2. Loyer supernet: Le locataire paie seulement deux des frais de l’immeuble. Le propriétaire et le locataire déterminent ces frais spécifiques avant la signature du bail.
3. Loyer hypernet: Un bail en vertu duquel le locataire est responsable de tous les frais liés à sa part proportionnelle d’occupation de l’immeuble.
4. Brut modifié: Le loyer brut modifié désigne un type général de taux de location dans lequel le locataire est habituellement responsable de sa part proportionnelle d’un ou de plusieurs frais. C’est le propriétaire qui paie les frais restants. Considérez les structures tarifaires courantes suivantes applicables aux loyers bruts modifiés: 4. Plus les services: Un type de bail brut modifié suivant lequel le locataire est responsable de sa part proportionnelle des coûts des services publics, en plus du loyer. 4. Plus le nettoyage: Un type de bail brut modifié suivant lequel le locataire est responsable de sa part proportionnelle des coûts de nettoyage, en plus du loyer. 4. Plus l'électricité: Un type de bail brut modifié suivant lequel le locataire est responsable de sa part proportionnelle des coûts d’électricité, en plus du loyer. 4. Plus l’électricité et le nettoyage: Un type de bail brut modifié dans lequel le locataire est responsable de sa part proportionnelle des coûts d’électricité et de nettoyage, en plus du loyer. 4. Plus les services publics et le nettoyage: Un type de bail brut modifié dans lequel le locataire est responsable de sa part proportionnelle des coûts des services publics et de nettoyage, en plus du loyer. 4. Bail industriel brut: Un type de bail brut modifié dans lequel le locataire paie un ou plusieurs des frais, en plus du loyer. Le propriétaire et le locataire déterminent ces frais spécifiques avant la signature du bail.
5. L’électricité est à la charge du locataire: Le propriétaire paie pour tous les services et le locataire est responsable de sa propre utilisation de l’éclairage et des prises électriques dans l’espace qu’il occupe.
6. Négociable ou sur demande: Cette option est utilisée lorsque le contact de location ne précise pas le type de loyer ou de service.
7. À déterminer: À déterminer ; utilisé pour les immeubles dont le type de services ou de loyer n’est pas connu, souvent quand l’immeuble n’est pas encore construit.
Plan de site
Sélectionner des locataires à Southview Square
- Locataire
- Description
- Emplacements US
- Portée
- A-Max Auto Insurance
- Autres détaillants
- 254
- Régional
- Amo Health & Therapy
- Soins de santé
- 2
- Local
- Black Friday Deals
- Amélioration du foyer
- 1
- -
- Burger King
- Restauration rapide
- 8 580
- International
- Fuqua Washateria
- Autres services
- 1
- Local
- Pho 21 Resturant
- Restaurant
- 1
- Local
| Locataire | Description | Emplacements US | Portée |
| A-Max Auto Insurance | Autres détaillants | 254 | Régional |
| Amo Health & Therapy | Soins de santé | 2 | Local |
| Black Friday Deals | Amélioration du foyer | 1 | - |
| Burger King | Restauration rapide | 8 580 | International |
| Fuqua Washateria | Autres services | 1 | Local |
| Pho 21 Resturant | Restaurant | 1 | Local |
Faits sur la propriété
À propos de la propriété
The vibrant Houston market surrounding Southview Square offers a dynamic blend of residential and commercial developments, ensuring a steady flow of potential customers for retail and strip center tenants. Nearby attractions such as the Houston Space Center and Space Center Houston attract visitors and locals, contributing to the area's energetic atmosphere. Additionally, the bustling shopping and dining options at Baybrook Mall and Clear Lake Marketplace further enhance the area's appeal. With a strong local economy and a diverse population, this location presents an ideal setting for retailers seeking high visibility and robust foot traffic.
- Restaurant
- Affichage
Principaux détaillants à proximité
Présenté par
Southview Square | 11021 Fuqua St
Hmm, il semble y avoir eu une erreur lors de l’envoi de votre message. Veuillez réessayer.
Merci! Votre message a été envoyé.







