Votre courriel a été envoyé.
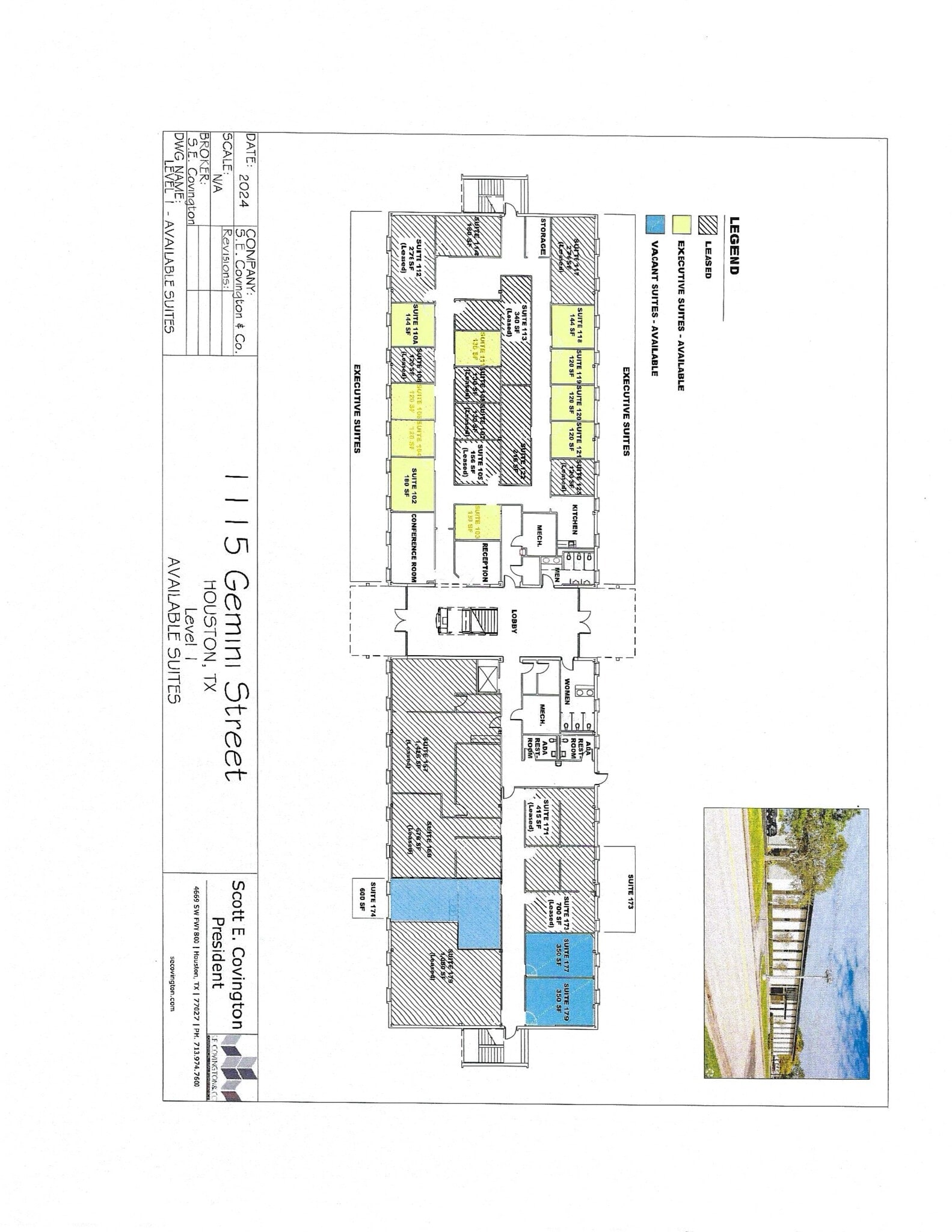
Apollo Building 1115 Gemini St 130 pi² d'espace disponible • Bureau • Houston, TX 77058



Certaines informations ont été traduites automatiquement.
Faits saillants
- Multiple executive suites available
- Conference room available
- Key card access only
Tous les espaces disponibles(1)
Afficher les taux de location en
- Espace
- Taille
- Terme
- Taux de location
- Utilisation de l’espace
- Aménagement
- Disponible
Office | Single tenant | 130 SqFt Building highlights Professional business environment All utility costs included Includes Executive Desk, 1 Chair, 2 Guest Chairs, 1 Artwork. Larger suites may have credenza and/or filing cabinet based on availability Avaya phone at desk with Voice Mail Free Hi-Speed cable connection to Suite and WIFI Free use of conference/meeting rooms with projector, phone and white boards Faxing, Copying and Printing Room Secure Access Control to suite using keycards & combination locks Surveillance system in Common Area and Parking Lot Shared receptionist for mail handling and call answering * Reception/Guest Waiting Area Common kitchen with tea and coffee-making facilities Free parking for tenants and guests Light janitorial services Listing on lobby directory
- Le taux comprend les services publics, les services de bâtiment et les dépenses immobilières.
- Convient pour 1 à 2 personnes
- 1 salle de conférence
- Air central et chauffage
- Connectivité Wi-Fi
- Salle de bains privée
- Système de sécurité
- CVCA disponible après les heures de travail
- Entièrement construit comme Bureau standard
- 10 bureaux privés
- Espace en excellent état
- Aire de réception
- Salle d’impression/Photocopie
- Complètement tapissé
- Lumière naturelle
- Accessible aux fauteuils roulants
| Espace | Taille | Terme | Taux de location | Utilisation de l’espace | Aménagement | Disponible |
| 1er étage, ste 102 | 130 pi² | 1-3 ans | 5,09 $ CAD/pi²/an 0,42 $ CAD/pi²/mois 662,21 $ CAD/an 55,18 $ CAD/mois | Bureau | construction complète | Maintenant |
1er étage, ste 102
| Taille |
| 130 pi² |
| Terme |
| 1-3 ans |
| Taux de location |
| 5,09 $ CAD/pi²/an 0,42 $ CAD/pi²/mois 662,21 $ CAD/an 55,18 $ CAD/mois |
| Utilisation de l’espace |
| Bureau |
| Aménagement |
| construction complète |
| Disponible |
| Maintenant |
1er étage, ste 102
| Taille | 130 pi² |
| Terme | 1-3 ans |
| Taux de location | 5,09 $ CAD/pi²/an |
| Utilisation de l’espace | Bureau |
| Aménagement | construction complète |
| Disponible | Maintenant |
Office | Single tenant | 130 SqFt Building highlights Professional business environment All utility costs included Includes Executive Desk, 1 Chair, 2 Guest Chairs, 1 Artwork. Larger suites may have credenza and/or filing cabinet based on availability Avaya phone at desk with Voice Mail Free Hi-Speed cable connection to Suite and WIFI Free use of conference/meeting rooms with projector, phone and white boards Faxing, Copying and Printing Room Secure Access Control to suite using keycards & combination locks Surveillance system in Common Area and Parking Lot Shared receptionist for mail handling and call answering * Reception/Guest Waiting Area Common kitchen with tea and coffee-making facilities Free parking for tenants and guests Light janitorial services Listing on lobby directory
- Le taux comprend les services publics, les services de bâtiment et les dépenses immobilières.
- Entièrement construit comme Bureau standard
- Convient pour 1 à 2 personnes
- 10 bureaux privés
- 1 salle de conférence
- Espace en excellent état
- Air central et chauffage
- Aire de réception
- Connectivité Wi-Fi
- Salle d’impression/Photocopie
- Salle de bains privée
- Complètement tapissé
- Système de sécurité
- Lumière naturelle
- CVCA disponible après les heures de travail
- Accessible aux fauteuils roulants
Aperçu de la propriété
Office | Single tenant | 130 SqFt-MULTIPLE SUITES AVAILABLE Building highlights Professional business environment All utility costs included Includes Executive Desk, 1 Chair, 2 Guest Chairs, 1 Artwork. Larger suites may have credenza and/or filing cabinet based on availability Avaya phone at desk with Voice Mail Free Hi-Speed cable connection to Suite and WIFI Free use of conference/meeting rooms with projector, phone and white boards Faxing, Copying and Printing Room Secure Access Control to suite using keycards & combination locks Surveillance system in Common Area and Parking Lot Shared receptionist for mail handling and call answering * Reception/Guest Waiting Area Common kitchen with tea and coffee-making facilities Free parking for tenants and guests Light janitorial services Listing on lobby directory
- Gestionnaire d'immeuble sur place
- Affichage
- Espace d'entreposage
Faits sur la propriété
Sélectionner des locataires
- Étage
- Nom du locataire
- Secteur
- 2ᵉ
- Adaptis
- Services professionnels, scientifiques et techniques
- 1ᵉʳ
- Bay Area Habitat For Humanity Houston
- Soins de santé et assistance sociale
- 2ᵉ
- ESyPet
- Information
- 1ᵉʳ
- Freight Folks, LLC
- Transport et entreposage
- 1ᵉʳ
- Gandiva Insights
- Services professionnels, scientifiques et techniques
- 2ᵉ
- Gratia Plena
- Soins de santé et assistance sociale
- 2ᵉ
- His and Her Foto
- Services professionnels, scientifiques et techniques
- 1ᵉʳ
- Mays Partners, P.C.
- Services professionnels, scientifiques et techniques
- 2ᵉ
- Pneucare LLC
- Grossiste
- 1ᵉʳ
- Sprung Instant Structures, Inc.
- Fabrication
Présenté par
Apollo Building | 1115 Gemini St
Hmm, il semble y avoir eu une erreur lors de l’envoi de votre message. Veuillez réessayer.
Merci! Votre message a été envoyé.


