Votre courriel a été envoyé.
Build-to-Suit opportunity - OWNER IS FLEXIBLE 1120 Louisiana Ave 11 375 pi² d'espace disponible • Flex • Sebastian, FL 32958


Certaines informations ont été traduites automatiquement.
Faits saillants
- - Zoned Industrial (IN); flood-safe
- Build-to-suit data center layout based on your specs
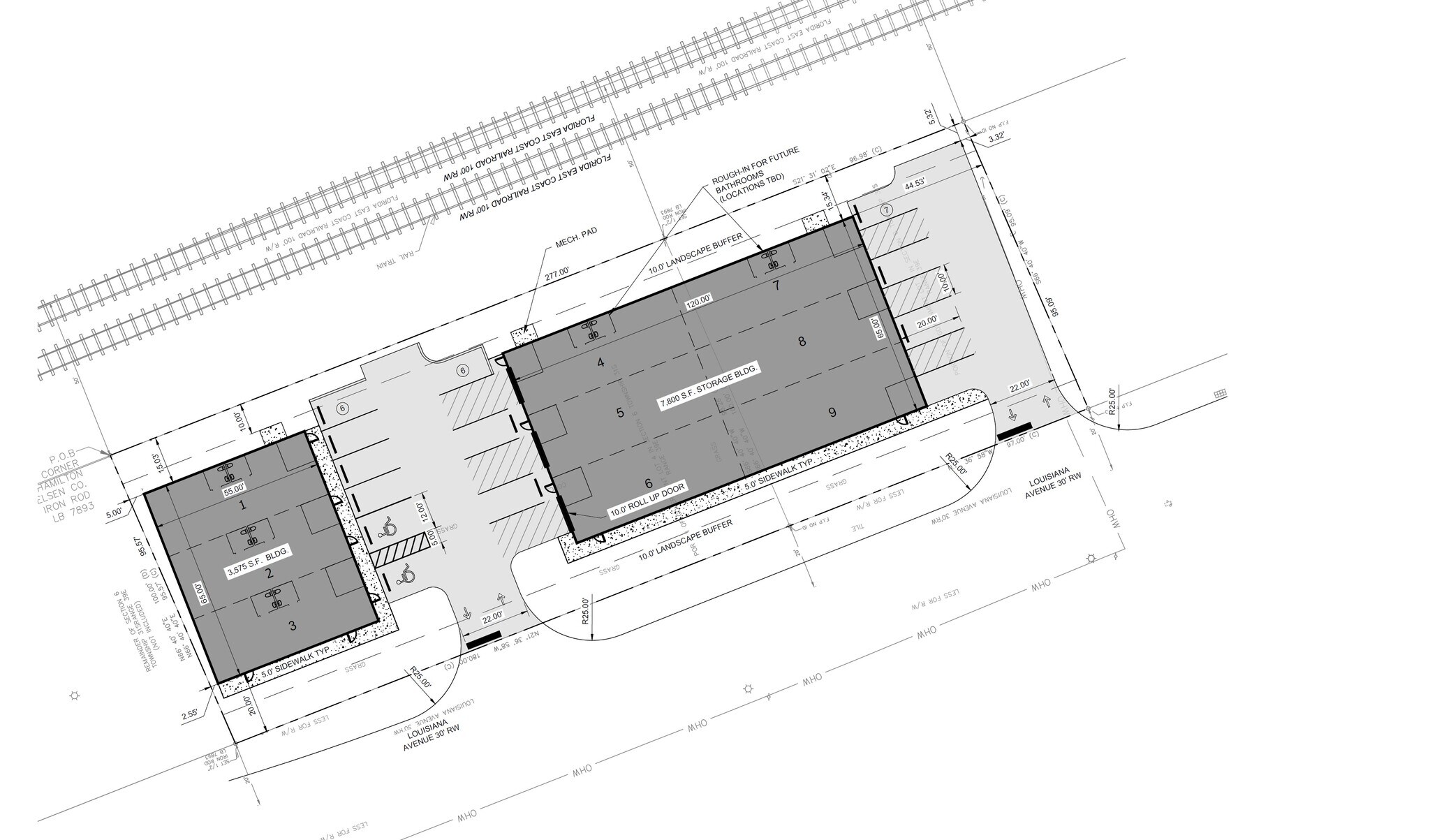
- - Two independent structures: 3,575 sq ft + 7,800 sq ft
Tous les espaces disponibles(1)
Afficher les taux de location en
- Espace
- Taille
- Terme
- Taux de location
- Utilisation de l’espace
- État
- Disponible
Project Overview - 0.67-acre site (29,256 sq ft) - Zoned Industrial (IN); flood-safe FEMA Zone X - Site ready for permitting and tenant-led layout design - Single-phase delivery for maximum efficiency Planned Construction Features - Two independent structures: 3,575 sq ft + 7,800 sq ft - Total buildable area: 11,375 sq ft (potential increase to 14,000 sq ft) - Building height: Up to 30-35 ft - Roll-up doors for easy equipment access - Rough-in plumbing for restrooms (location flexible) - 19 dedicated parking spaces (17 standard + 2 ADA) - Mechanical pad for HVAC, generator, or custom cooling Site Advantages - Elevated land (20–24 ft above sea level) - FEMA Zone X – no flood insurance required - Close to I-95, US-1, and Turnpike access - Close proximity to local Airport - Nearby dark fiber and utility availability - Strategic redundancy location for South Florida metro Ideal Use Cases - Edge colocation operators - Disaster Recovery (DR) / Business Continuity Planning (BCP) - AI / GPU compute farms - Regional MSPs / IT Infrastructure providers Offering Summary - Build-to-suit layout based on your specs - 5–10+ year lease term (flexible) - Single-tenant or dual-tenant delivery options - Design collaboration for power, cooling, and operations - Naming rights and signage available Core Infrastructure we can offer or add 1. Power Infrastructure • N+1 Redundancy: Design power systems with one independent backup unit for every critical system (UPS, HVAC, etc.) • 3-Phase 480V Service: Already feasible; preferred by most data center operators. • Dedicated Transformer Pad: For tenant-specific or dual-feed power setup. • Generator Infrastructure: o Install or prepare pad & conduit for diesel or natural gas generator(s) (Tier II or III rated) o Optional dual generator (2N) layout for premium tenants o Add auto-transfer switch (ATS) for seamless failover ________________________________________ 2. Cooling & Climate Control • N+1 HVAC Zones: Prepare for redundant cooling zones in server hall and UPS/electrical rooms. • Hot/Cold Aisle Containment Support: Provide ceiling grid or mount tracks. • Roof-Load Reinforcement: Structurally support heavy rooftop HVAC (chillers, CRAHs). • Dehumidification Systems. ________________________________________ 3. Network & Fiber • Dual Carrier Entry Paths: Prepare conduits from two sides of building. • Carrier-Neutral Design. • Dark Fiber Access Support: Work with nearby providers to offer last-mile access • 5G/Microwave Rooftop Access: Reinforce roof for potential antennas or microwave gear ________________________________________ 4. Physical Security & Access • Dual-Factor Entry Support: Badge + biometric entry infrastructure ready • Security Room: Separate monitoring/control room at entrance • 24/7 CCTV Infrastructure: o Interior and perimeter camera cabling + mounting points o DVR/NVR-ready rack area • Perimeter Fencing: Install or offer secure fencing, gates, and lighting ________________________________________ Structural Enhancements You Can Offer 5. Facility Layout Features • 11,440 SF usable space (customizable for white space, office, staging) • Three Bay Doors for staging, shipping, and hardware delivery • Roof Height of 35 ft: Can support mezzanines, containment ceilings, or solar • Interior Cage/Partition Support: Tenant can segment space securely ________________________________________ 6. Fire Protection Systems • Pre-Action Sprinkler System: Standard for data centers • Clean Agent System Ready (FM-200 or NOVEC): Can offer as a build-out upgrade • VESDA Smoke Detection: Early detection system for high-reliability needs ________________________________________ Optional Add-Ons or Services 7. Tenant Customization Options • Allow long-term tenant to: o Build cage rooms or clean rooms o Bring own UPS/generators (with guidance) o Use roof for solar or comms equipment o Install additional fiber or redundant HVAC 8. Office & Remote Support Amenities • Offer: o Admin/tech office buildout (Wi-Fi, HVAC, access control) o Break room or kitchenette o Remote hands support (optional staffing or key access) 9. ESG & Sustainability • Offer solar-ready rooftop (can market as ESG-aligned facility) • Rainwater runoff management or bioswales Next Steps We would be glad to provide site plans, conceptual renderings, zoning details, or schedule a walk-through of the property. Please contact us to discuss your infrastructure needs and explore how this project can support your growth in 2025 and beyond.
- Le taux de location ne comprend pas les services publics, les services de bâtiment ou les dépenses immobilières.
- Comprend 1 375 pi² d’espace de bureau dédié
| Espace | Taille | Terme | Taux de location | Utilisation de l’espace | État | Disponible |
| 1er étage - 1 | 11 375 pi² | 5-10 ans | 51,94 $ CAD/pi²/an 4,33 $ CAD/pi²/mois 590 799 $ CAD/an 49 233 $ CAD/mois | Flex | espace cloisonné | Maintenant |
1er étage - 1
| Taille |
| 11 375 pi² |
| Terme |
| 5-10 ans |
| Taux de location |
| 51,94 $ CAD/pi²/an 4,33 $ CAD/pi²/mois 590 799 $ CAD/an 49 233 $ CAD/mois |
| Utilisation de l’espace |
| Flex |
| État |
| espace cloisonné |
| Disponible |
| Maintenant |
1er étage - 1
| Taille | 11 375 pi² |
| Terme | 5-10 ans |
| Taux de location | 51,94 $ CAD/pi²/an |
| Utilisation de l’espace | Flex |
| État | espace cloisonné |
| Disponible | Maintenant |
Project Overview - 0.67-acre site (29,256 sq ft) - Zoned Industrial (IN); flood-safe FEMA Zone X - Site ready for permitting and tenant-led layout design - Single-phase delivery for maximum efficiency Planned Construction Features - Two independent structures: 3,575 sq ft + 7,800 sq ft - Total buildable area: 11,375 sq ft (potential increase to 14,000 sq ft) - Building height: Up to 30-35 ft - Roll-up doors for easy equipment access - Rough-in plumbing for restrooms (location flexible) - 19 dedicated parking spaces (17 standard + 2 ADA) - Mechanical pad for HVAC, generator, or custom cooling Site Advantages - Elevated land (20–24 ft above sea level) - FEMA Zone X – no flood insurance required - Close to I-95, US-1, and Turnpike access - Close proximity to local Airport - Nearby dark fiber and utility availability - Strategic redundancy location for South Florida metro Ideal Use Cases - Edge colocation operators - Disaster Recovery (DR) / Business Continuity Planning (BCP) - AI / GPU compute farms - Regional MSPs / IT Infrastructure providers Offering Summary - Build-to-suit layout based on your specs - 5–10+ year lease term (flexible) - Single-tenant or dual-tenant delivery options - Design collaboration for power, cooling, and operations - Naming rights and signage available Core Infrastructure we can offer or add 1. Power Infrastructure • N+1 Redundancy: Design power systems with one independent backup unit for every critical system (UPS, HVAC, etc.) • 3-Phase 480V Service: Already feasible; preferred by most data center operators. • Dedicated Transformer Pad: For tenant-specific or dual-feed power setup. • Generator Infrastructure: o Install or prepare pad & conduit for diesel or natural gas generator(s) (Tier II or III rated) o Optional dual generator (2N) layout for premium tenants o Add auto-transfer switch (ATS) for seamless failover ________________________________________ 2. Cooling & Climate Control • N+1 HVAC Zones: Prepare for redundant cooling zones in server hall and UPS/electrical rooms. • Hot/Cold Aisle Containment Support: Provide ceiling grid or mount tracks. • Roof-Load Reinforcement: Structurally support heavy rooftop HVAC (chillers, CRAHs). • Dehumidification Systems. ________________________________________ 3. Network & Fiber • Dual Carrier Entry Paths: Prepare conduits from two sides of building. • Carrier-Neutral Design. • Dark Fiber Access Support: Work with nearby providers to offer last-mile access • 5G/Microwave Rooftop Access: Reinforce roof for potential antennas or microwave gear ________________________________________ 4. Physical Security & Access • Dual-Factor Entry Support: Badge + biometric entry infrastructure ready • Security Room: Separate monitoring/control room at entrance • 24/7 CCTV Infrastructure: o Interior and perimeter camera cabling + mounting points o DVR/NVR-ready rack area • Perimeter Fencing: Install or offer secure fencing, gates, and lighting ________________________________________ Structural Enhancements You Can Offer 5. Facility Layout Features • 11,440 SF usable space (customizable for white space, office, staging) • Three Bay Doors for staging, shipping, and hardware delivery • Roof Height of 35 ft: Can support mezzanines, containment ceilings, or solar • Interior Cage/Partition Support: Tenant can segment space securely ________________________________________ 6. Fire Protection Systems • Pre-Action Sprinkler System: Standard for data centers • Clean Agent System Ready (FM-200 or NOVEC): Can offer as a build-out upgrade • VESDA Smoke Detection: Early detection system for high-reliability needs ________________________________________ Optional Add-Ons or Services 7. Tenant Customization Options • Allow long-term tenant to: o Build cage rooms or clean rooms o Bring own UPS/generators (with guidance) o Use roof for solar or comms equipment o Install additional fiber or redundant HVAC 8. Office & Remote Support Amenities • Offer: o Admin/tech office buildout (Wi-Fi, HVAC, access control) o Break room or kitchenette o Remote hands support (optional staffing or key access) 9. ESG & Sustainability • Offer solar-ready rooftop (can market as ESG-aligned facility) • Rainwater runoff management or bioswales Next Steps We would be glad to provide site plans, conceptual renderings, zoning details, or schedule a walk-through of the property. Please contact us to discuss your infrastructure needs and explore how this project can support your growth in 2025 and beyond.
- Le taux de location ne comprend pas les services publics, les services de bâtiment ou les dépenses immobilières.
- Comprend 1 375 pi² d’espace de bureau dédié
À propos de la propriété
**Présentation d'une opportunité unique et hautement flexible de location d'un centre de données sur mesure à Sebastian, Floride.** Nous sommes actuellement en phase de planification et recherchons activement un locataire à long terme pour contribuer à façonner la configuration finale de la propriété afin de répondre au mieux à vos besoins opérationnels. La propriété, située au **1120 Louisiana Avenue**, est zonée industrielle et couvre une superficie totale de **0,67 acre**. Nous disposons actuellement des permis nécessaires pour construire jusqu'à **11 375 pi²** répartis sur deux bâtiments, mais nous sommes ouverts à développer le projet en une structure unique avec une superficie accrue—jusqu'à environ **14 000 pi²**—si vos besoins l'exigent. Veuillez noter qu'une expansion de la structure pourrait entraîner une réduction des espaces de stationnement, que nous pourrons ajuster en fonction de la présence de votre équipe sur le site. Le site est situé dans la **Zone X de la FEMA** (aucune assurance contre les inondations requise), à une élévation de **20 à 24 pieds**, et est déjà planifié avec des dalles mécaniques, des portes roulantes et des installations préalables pour les salles de bain. Une capacité électrique abondante est disponible, avec un surplus d'énergie pour des environnements informatiques à haute densité, et le site bénéficie de l'accès à plusieurs fournisseurs de fibre optique, ce qui en fait un emplacement idéal pour des déploiements en périphérie, des charges de travail IA/GPU ou des nœuds de télécommunications redondants. Nous faisons preuve d'une grande flexibilité dans notre approche et cherchons à établir un partenariat à long terme. Que vous ayez besoin d'une installation autonome sécurisée ou d'une configuration prête pour la colocation avec des espaces de bureau et des utilités, nous sommes prêts à ajuster le design final selon vos spécifications, y compris la distribution électrique, la stratégie de refroidissement, l'aménagement intérieur et le calendrier de livraison. ### Ce projet est idéal pour : - Les opérateurs de colocation en périphérie - Les centres de reprise après sinistre / continuité des affaires - Les fermes de calcul IA/ML - Les MSP, FSI ou opérateurs d'infrastructure Si cette opportunité s'aligne avec votre feuille de route en matière d'infrastructure, je serais ravi de planifier un appel, de partager le plan du site ou de discuter des concepts de conception préliminaires avec votre équipe. N'hésitez pas à me contacter pour toute question ou idée—nous sommes ici pour collaborer. **Cordialement,** Eugene Noska Courriel : e.noska@yahoo.com Téléphone : 954-822-0556 Bureau : 305-918-4750 --- ### **Résumé du projet** - **Superficie** : 0,67 acre (29 256 pi²) - **Zonage** : Industriel (IN) ; zone sécurisée contre les inondations (FEMA Zone X) - **Statut** : Prêt pour les permis et la conception dirigée par le locataire - **Livraison** : En une seule phase pour une efficacité maximale ### **Caractéristiques prévues de la construction** - Deux structures indépendantes : **3 575 pi²** + **7 800 pi²** - Superficie totale constructible : **11 375 pi²** (potentiel d'augmentation à **14 000 pi²**) - Hauteur des bâtiments : Jusqu'à **30–35 pieds** - Portes roulantes pour un accès facile aux équipements - Pré-installation de plomberie pour salles de bain (emplacement flexible) - **19 places de stationnement dédiées** (17 standards + 2 accessibles) - Dalle mécanique pour HVAC, générateur ou refroidissement personnalisé ### **Avantages du site** - Terrain surélevé (**20–24 pieds au-dessus du niveau de la mer**) - Zone FEMA X – aucune assurance contre les inondations requise - Proximité de l'**I-95**, de l'**US-1** et de l'accès au **Turnpike** - À proximité de l'aéroport local - Disponibilité de fibre noire et d'utilités à proximité - Emplacement stratégique pour la redondance dans la région métropolitaine du sud de la Floride ### **Cas d'utilisation idéaux** - Opérateurs de colocation en périphérie - Reprise après sinistre (DR) / Planification de la continuité des affaires (BCP) - Fermes de calcul IA / GPU - Fournisseurs régionaux de services gérés (MSP) / Fournisseurs d'infrastructure TI ### **Résumé de l'offre** - Aménagement sur mesure basé sur vos spécifications - Bail de **5 à 10 ans ou plus** (flexible) - Options de livraison pour locataire unique ou double - Collaboration sur la conception pour l'alimentation, le refroidissement et les opérations - Droits de dénomination et signalisation disponibles
Faits sur la propriété
| Superficie totale disponible | 11 375 pi² | Année de construction | 2027 |
| Type de propriété | Spécialité | État de la construction | En construction |
| Taille du bâtiment | 11 375 pi² |
| Superficie totale disponible | 11 375 pi² |
| Type de propriété | Spécialité |
| Taille du bâtiment | 11 375 pi² |
| Année de construction | 2027 |
| État de la construction | En construction |
Caractéristiques et commodités
- Affichage
- Station de recharge de voiture
- Climatisation
- Internet par fibre optique
- Détecteur de fumée
Présenté par
Build-to-Suit opportunity - OWNER IS FLEXIBLE | 1120 Louisiana Ave
Hmm, il semble y avoir eu une erreur lors de l’envoi de votre message. Veuillez réessayer.
Merci! Votre message a été envoyé.
