Votre courriel a été envoyé.
11201 Susquehanna Trl S Lot • Terrain commercial • 4,3 Acres • 1 034 235 $ CAD • Glen Rock, PA 17327


Certaines informations ont été traduites automatiquement.
FAITS SAILLANTS DE L'INVESTISSEMENT
- Corner Property
- Zoned Industrial
- Land for sale
RÉSUMÉ DE L'ANNONCE
FAITS SUR LA PROPRIÉTÉ
1 LOT DISPONIBLE
Lot
| Prix | 1 034 235 $ CAD | Taille du lot | 4,30 AC |
| Prix par AC | 240 519,77 $ CAD |
| Prix | 1 034 235 $ CAD |
| Prix par AC | 240 519,77 $ CAD |
| Taille du lot | 4,30 AC |
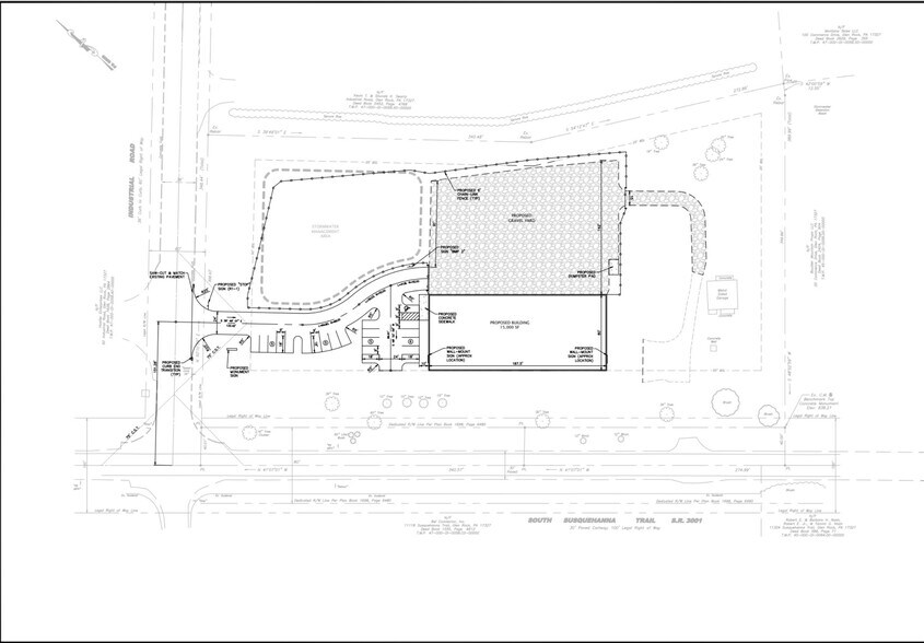
Corner property zoned for industrial use in Southern York County along Susquehanna Trail (7,500 vehicles per day), just minutes from I-83.
DESCRIPTION
Découvrez une propriété d'angle exceptionnelle, zonée pour usage industriel, située dans le sud du comté de York, stratégiquement placée le long du Susquehanna Trail avec un flux de circulation de 7 500 véhicules par jour, à seulement quelques minutes de l'autoroute I-83. Le vendeur a complété avec succès toutes les approbations de développement du terrain pour la vente et l'entretien d'équipements lourds, et les permis NPDES sont en place. Toutes les conditions finales d'approbation ont été réglées et sont prêtes pour l'acheteur. De plus, tous les services publics sont facilement accessibles sur la propriété. Ne manquez pas cette opportunité—contactez Frank Messina pour plus d'informations dès aujourd'hui!
Impôts fonciers
| Numéros de lot | Évaluation des bâtiments | 8 677 $ CAD | |
| Évaluation du terrain | 73 314 $ CAD | Évaluation totale | 81 991 $ CAD |
Impôts fonciers
Présenté par
11201 Susquehanna Trl S
Hmm, il semble y avoir eu une erreur lors de l’envoi de votre message. Veuillez réessayer.
Merci! Votre message a été envoyé.
