Votre courriel a été envoyé.
Certaines informations ont été traduites automatiquement.
Faits sur le parc
| Superficie totale disponible | 15 725 pi² | Type de parc | Parc de bureaux |
| Superficie totale disponible | 15 725 pi² |
| Type de parc | Parc de bureaux |
Tous les espaces disponibles(2)
Afficher les taux de location en
- Espace
- Taille
- Terme
- Taux de location
- Utilisation de l’espace
- État
- Disponible
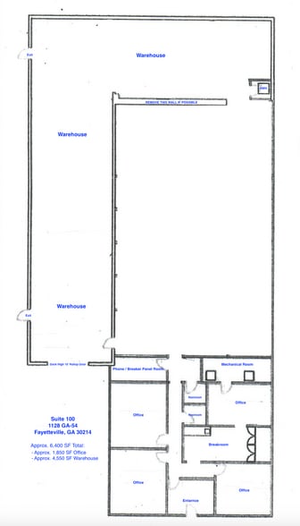
Approx 4,550 SF of warehouse and approx 1,850 SF of office. One dock high roll up door.
- Climatisation centrale
| Espace | Taille | Terme | Taux de location | Utilisation de l’espace | État | Disponible |
| 1er étage - 100 | 6 400 pi² | 3-10 ans | Sur demande Sur demande Sur demande Sur demande | Industriel | construction complète | Maintenant |
1128-1130 Highway 54 W - 1er étage - 100
- Espace
- Taille
- Terme
- Taux de location
- Utilisation de l’espace
- État
- Disponible
Suite 200: • 1 roll up door w/adjacent dock pit w/7'x8' Pentalift Dock Leveler & stand. • approx 2,670 SF of warehouse, approx 1,864 sf of office, & 2 restrooms. • 120/240 volt, 100 amp single phase power. • Tenant responsible for electric & gas. • No OPEX Suite 300: • 1 roll up drive-in door • No office or bathroom, but landlord can add. • 120/240 volt, 100 amp single phase power. • Tenant responsible for electric & gas. • No OPEX
| Espace | Taille | Terme | Taux de location | Utilisation de l’espace | État | Disponible |
| 1er étage - 200/300 | 9 325 pi² | 3-10 ans | Sur demande Sur demande Sur demande Sur demande | Flex | construction complète | Maintenant |
1158 Hwy 54 E - 1er étage - 200/300
1128-1130 Highway 54 W - 1er étage - 100
| Taille | 6 400 pi² |
| Terme | 3-10 ans |
| Taux de location | Sur demande |
| Utilisation de l’espace | Industriel |
| État | construction complète |
| Disponible | Maintenant |
Approx 4,550 SF of warehouse and approx 1,850 SF of office. One dock high roll up door.
- Climatisation centrale
1158 Hwy 54 E - 1er étage - 200/300
| Taille | 9 325 pi² |
| Terme | 3-10 ans |
| Taux de location | Sur demande |
| Utilisation de l’espace | Flex |
| État | construction complète |
| Disponible | Maintenant |
Suite 200: • 1 roll up door w/adjacent dock pit w/7'x8' Pentalift Dock Leveler & stand. • approx 2,670 SF of warehouse, approx 1,864 sf of office, & 2 restrooms. • 120/240 volt, 100 amp single phase power. • Tenant responsible for electric & gas. • No OPEX Suite 300: • 1 roll up drive-in door • No office or bathroom, but landlord can add. • 120/240 volt, 100 amp single phase power. • Tenant responsible for electric & gas. • No OPEX
Plan de site
Sélectionner des locataires à cette propriété
- Étage
- Nom du locataire
- Secteur
- 1ᵉʳ
- Atlantic Tape Company
- Fabrication
- 1ᵉʳ
- Tony's Warehouse
- Transport et entreposage
Présenté par
1128-1130 Highway 54 W | Fayetteville, GA 30214
Hmm, il semble y avoir eu une erreur lors de l’envoi de votre message. Veuillez réessayer.
Merci! Votre message a été envoyé.







