Se Connecter/S’inscrire
Votre courriel a été envoyé.
1129 Thomas Jefferson Rd 6 885 pi² Commerce de détail Immeuble Forest, VA 24551 1 607 212 $ CAD (233,44 $ CAD/pi²)



Certaines informations ont été traduites automatiquement.
Faits saillants de l'investissement
- Excellent Forest, Virginia Location
- Open Floor plan with enginered flooring system
- 2 Buildings
Résumé de l'annonce
Price Reduced to $1,175,000 1179 Thomas Jefferson Road and 1296 Burnbridge Road in Forest offers 2 Commercial Buildings on 1 parcel located in a prime Forest, Va location with ample road frontage on Thomas Jefferson & Burnbridge Road. This is a great central location in a rapidly growing area of Bedford County with close access to Main artery of U.S. Route 221. The main building is currently owner occupied, by Winey Chicks Boutique. The cottage located at the rear of the property is available for lease and was formerly occupied by a massage studio. Buildings offer great income potential for investor, with plenty of upside potential.
Building 1
1179 Thomas Jefferson Road
-78 Acre lot zoned C-2 permitting a wide variety of commercial uses.
-6,885 SF Masonry Building built in 2007.
-Featuring Energy efficient ICF Poured Concrete Construction.
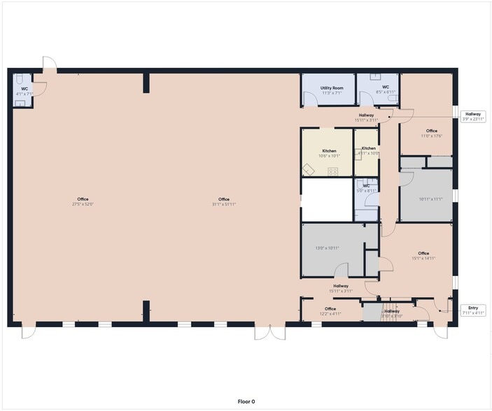
-5,285 SF Min Level with open floor plan plus additional 1600 SF adjacent office.
-5 private offices, conference room, kitchen area, laundry room, with w/d and 1 full and 2 half bath.
-2nd floor mezzanine area contains 1,600 SF of unfinished area with private entrance.
-37 paved parking spaces
-County water and Sewer on site.
Building 2
1296 Burnbridge Road
-Two story Victorian cottage offering a total of 1,830 SF with featuring 5 offices, 1 full bath.
-Central heat and air. Originally built in 1907 and renovated.
-Public water and sewer.
-Excellent visibility from Burnbridge Road with easy access to Route 811.
-Perfect location for area professionals.
Video Tour Link Here: https://tour.giraffe360.com/8b1fe73c2c4743e690617b6a6bcd6e7f/
https://tour.giraffe360.com/8b1fe73c2c4743e690617b6a6bcd6e7f/?lsf=1
Land/Site
The site is approximately 0.779 Acres in size or 33,993 SF. The shape is 169.96 x 350 with 169.96 fronting on Thomas Jefferson Road and is slightly irregular with level topography. The site offers 1,300 Square Yards of asphalt paved parking area. County water and Sewer service both buildings and the property is zoned C-2 general commercial.
Building 1
1179 Thomas Jefferson Road
-78 Acre lot zoned C-2 permitting a wide variety of commercial uses.
-6,885 SF Masonry Building built in 2007.
-Featuring Energy efficient ICF Poured Concrete Construction.
-5,285 SF Min Level with open floor plan plus additional 1600 SF adjacent office.
-5 private offices, conference room, kitchen area, laundry room, with w/d and 1 full and 2 half bath.
-2nd floor mezzanine area contains 1,600 SF of unfinished area with private entrance.
-37 paved parking spaces
-County water and Sewer on site.
Building 2
1296 Burnbridge Road
-Two story Victorian cottage offering a total of 1,830 SF with featuring 5 offices, 1 full bath.
-Central heat and air. Originally built in 1907 and renovated.
-Public water and sewer.
-Excellent visibility from Burnbridge Road with easy access to Route 811.
-Perfect location for area professionals.
Video Tour Link Here: https://tour.giraffe360.com/8b1fe73c2c4743e690617b6a6bcd6e7f/
https://tour.giraffe360.com/8b1fe73c2c4743e690617b6a6bcd6e7f/?lsf=1
Land/Site
The site is approximately 0.779 Acres in size or 33,993 SF. The shape is 169.96 x 350 with 169.96 fronting on Thomas Jefferson Road and is slightly irregular with level topography. The site offers 1,300 Square Yards of asphalt paved parking area. County water and Sewer service both buildings and the property is zoned C-2 general commercial.
Faits sur la propriété
Type de vente
Propriétaire utilisateur
Type de propriété
Taille du bâtiment
6 885 pi²
Classe d’immeuble
B
Année de construction
2007
Prix
1 607 212 $ CAD
Prix par pi²
233,44 $ CAD
Location
Multiples
Hauteur du bâtiment
2 étages
Coefficient d’occupation des sols de l’immeuble
0,20
Taille du lot
0,78 AC
Zonage
C-2, General Commercial - Zone C-2 commerciale générale permettant une grande variété d'utilisations.
Stationnement
37 places (5,37 places par 1 000 pi² loué)
Façade
150’ sur Thomas Jefferson Road
Commodités
- Système de sécurité
- Affichage
- Affichage sur monument
- Climatisation
Assez praticable à pied
40/100
Exceptionnellement facile d’accès en voiture
90/100
Assez praticable en vélo
30/100
Principaux détaillants à proximité
1 de 50
Vidéos
Visite extérieure 3D Matterport
Visite 3D Matterport
Photos
Vue depuis la rue
Rue
Carte
Présenté par
1129 Thomas Jefferson Rd
Vous êtes déjà membre? Connectez-vous
Hmm, il semble y avoir eu une erreur lors de l’envoi de votre message. Veuillez réessayer.
Merci! Votre message a été envoyé.

