Se Connecter/S’inscrire
Votre courriel a été envoyé.
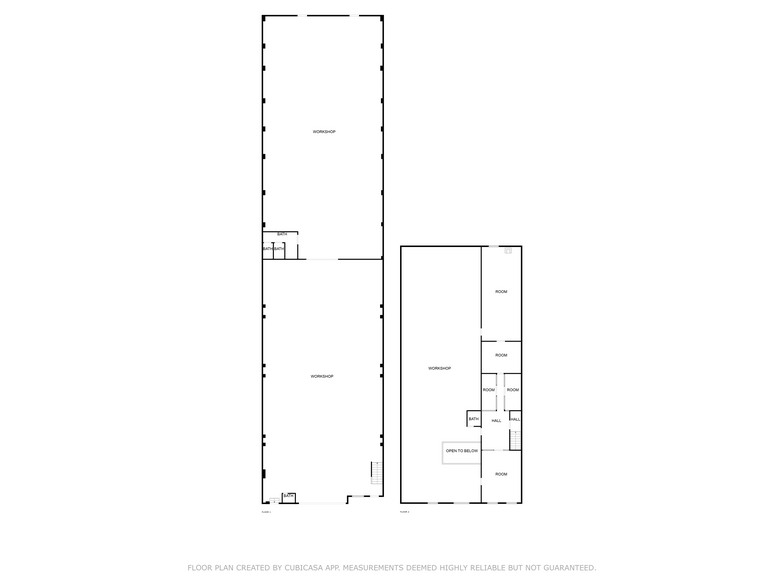
Gowanas Warehouse For Lease 113 8th St 10 000 pi² d'espace disponible • Industriel • Brooklyn, NY 11215



Certaines informations ont été traduites automatiquement.
Caractéristiques
Hauteur libre
15’
Baies d’entrée
1
Tous les espaces disponibles(1)
Afficher les taux de location en
- Espace
- Taille
- Terme
- Taux de location
- Utilisation de l’espace
- État
- Disponible
- 1 accès plain-pied
| Espace | Taille | Terme | Taux de location | Utilisation de l’espace | État | Disponible |
| 1er étage | 10 000 pi² | Négociable | Sur demande Sur demande Sur demande Sur demande | Industriel | construction complète | Maintenant |
1er étage
| Taille |
| 10 000 pi² |
| Terme |
| Négociable |
| Taux de location |
| Sur demande Sur demande Sur demande Sur demande |
| Utilisation de l’espace |
| Industriel |
| État |
| construction complète |
| Disponible |
| Maintenant |
1 de 9
Vidéos
Visite extérieure 3D Matterport
Visite 3D Matterport
Photos
Vue depuis la rue
Rue
Carte
1er étage
| Taille | 10 000 pi² |
| Terme | Négociable |
| Taux de location | Sur demande |
| Utilisation de l’espace | Industriel |
| État | construction complète |
| Disponible | Maintenant |
- 1 accès plain-pied
Aperçu de la propriété
Also available for sale
Faits sur l’installation fabrication
Taille du bâtiment
10 000 pi²
Taille du lot
0,11 AC
Année de construction
1931
Eau
Ville
Chauffage
Gaz
Alimentation électrique
Ampères: 400 Phase: 3
Zonage
M2-1 - Les districts M2 occupent le juste milieu entre les zones industrielles légères et lourdes
1 1
Walk Score®
Un paradis pour un marcheur (96)
Transit Score®
Un paradis pour conducteur (100)
Bike Score®
Un paradis pour un cycliste (91)
1 de 4
Vidéos
Visite extérieure 3D Matterport
Visite 3D Matterport
Photos
Vue depuis la rue
Rue
Carte
1 de 1
Présenté par
Gowanas Warehouse For Lease | 113 8th St
Vous êtes déjà membre? Connectez-vous
Hmm, il semble y avoir eu une erreur lors de l’envoi de votre message. Veuillez réessayer.
Merci! Votre message a été envoyé.
Votre message a été envoyé !
Activez votre compte LoopNet dès maintenant pour suivre les propriétés, recevoir des alertes en temps réel, gagner du temps sur vos demandes futures et bien plus encore.



