Votre courriel a été envoyé.
11325 Pembrooke Sq - Bldg D1 & D2 -Pembrooke Square Medical Center Unités de condo • Bureau/Médical • 1 792-6 838 pi² • À vendre 544 185 $-1 686 251 $ CAD par unité • Waldorf, MD 20603



Certaines informations ont été traduites automatiquement.
Faits saillants de l'investissement
- Situé au coeur de Waldorf
- intersection signalée
- Exterior renovations recently completed. New signage coming soon.
- Près des restaurants et des commerces
- Under new management
Résumé de l'annonce
Place Pembrooke Espace de bureau professionnel de style campus Court trajet en voiture du centre commercial régional St. Charles Town Center Un grand parking autour du campus Entrée de circulation signalisée 8 milles du centre médical régional Charles de l'Université du Maryland 10,4 milles jusqu'au centre hospitalier MedStar Southern Maryland L'un des comtés les plus riches en croissance du Maryland Le comté de Charles allie importance historique et vie moderne de banlieue, ce qui en fait un endroit unique où vivre et travailler
4 Unités disponibles
Unité 113
| Taille de l’unité | 1 792 pi² | Type de vente | Investissement ou propriétaire utilisateur |
| Utilisation du condo | Bureau/Médical | Statut de la vente | Sous contrat |
| Taille de l’unité | 1 792 pi² |
| Utilisation du condo | Bureau/Médical |
| Type de vente | Investissement ou propriétaire utilisateur |
| Statut de la vente | Sous contrat |
Description
Former MRI office, modern design.
Reception, waiting, mri room, dressing room, restroom.
Condo fee $3.75 psf
Unité 114
| Taille de l’unité | 2 037 pi² | Utilisation du condo | Bureau/Médical |
| Prix | 544 185 $ CAD | Type de vente | Investissement ou propriétaire utilisateur |
| Prix par pi² | 267,15 $ CAD | Statut de la vente | Sous contrat |
| Taille de l’unité | 2 037 pi² |
| Prix | 544 185 $ CAD |
| Prix par pi² | 267,15 $ CAD |
| Utilisation du condo | Bureau/Médical |
| Type de vente | Investissement ou propriétaire utilisateur |
| Statut de la vente | Sous contrat |
Description
Ancien bureau de radiologie. Bureau d'accueil, salle d'attente, laboratoire, bureaux.
Unité 115
| Taille de l’unité | 6 838 pi² | Utilisation du condo | Bureau/Médical |
| Prix | 1 686 251 $ CAD | Type de vente | Investissement ou propriétaire utilisateur |
| Prix par pi² | 246,60 $ CAD |
| Taille de l’unité | 6 838 pi² |
| Prix | 1 686 251 $ CAD |
| Prix par pi² | 246,60 $ CAD |
| Utilisation du condo | Bureau/Médical |
| Type de vente | Investissement ou propriétaire utilisateur |
Description
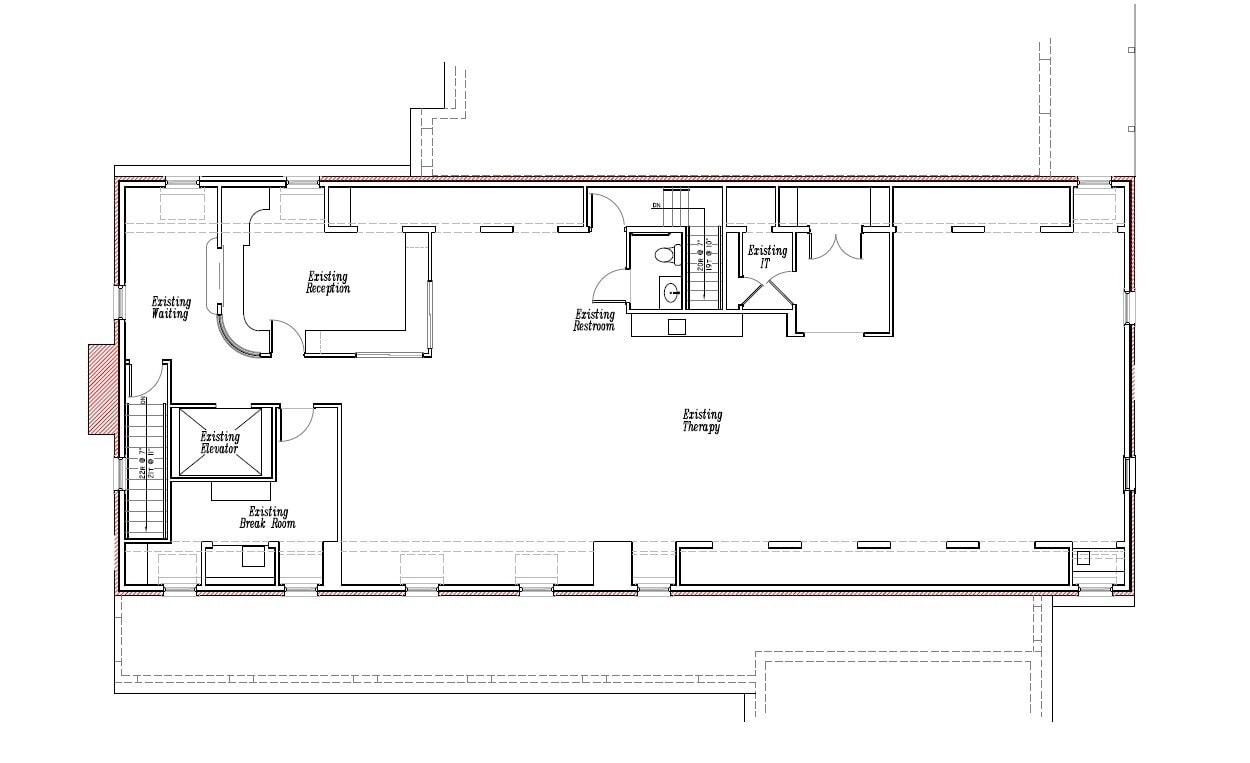
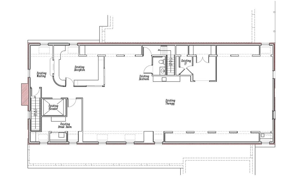
Unité médicale du premier étage. Aire d'attente, réception, 6 salles d'examen, salle de radiographie, chambre sombre, salle des dossiers, 2 toilettes, 2 bureaux. Peut être combiné avec un espace au deuxième étage. Accès par escalier et ascenseur.
2nd floor
IMG_7507
IMG_7509
IMG_7503
IMG_7505
IMG_7504
IMG_0476
IMG_0478
IMG_0483
Unité 116
| Taille de l’unité | 2 401 pi² | Utilisation du condo | Bureau/Médical |
| Prix | 719 250 $ CAD | Type de vente | Investissement ou propriétaire utilisateur |
| Prix par pi² | 299,56 $ CAD | Statut de la vente | Sous contrat |
| Taille de l’unité | 2 401 pi² |
| Prix | 719 250 $ CAD |
| Prix par pi² | 299,56 $ CAD |
| Utilisation du condo | Bureau/Médical |
| Type de vente | Investissement ou propriétaire utilisateur |
| Statut de la vente | Sous contrat |
Description
Ancien espace de radiologie. Bureau, réception, grande pièce ouverte avec haut plafond et deux toilettes.
IMG_0126
IMG_0127
IMG_0125
Faits sur la propriété
| Taille totale du bâtiment | 15 148 pi² | Planchers | 2 |
| Type de propriété | Bureau | Superficie de plancher typique | 7 574 pi² |
| Sous-type de propriété | Médical | Année de construction | 1986 |
| Classe d’immeuble | B | Taille du lot | 7,00 AC |
| Zonage | CB - Entreprises commerciales | ||
| Taille totale du bâtiment | 15 148 pi² |
| Type de propriété | Bureau |
| Sous-type de propriété | Médical |
| Classe d’immeuble | B |
| Planchers | 2 |
| Superficie de plancher typique | 7 574 pi² |
| Année de construction | 1986 |
| Taille du lot | 7,00 AC |
| Zonage | CB - Entreprises commerciales |
Commodités
- Accès 24 heures
- Accès contrôlé
- Affichage
- Réception
- Affichage sur monument
- Climatisation
Présenté par
11325 Pembrooke Sq - Bldg D1 & D2 -Pembrooke Square Medical Center
Hmm, il semble y avoir eu une erreur lors de l’envoi de votre message. Veuillez réessayer.
Merci! Votre message a été envoyé.


