Se Connecter/S’inscrire
Votre courriel a été envoyé.
Certaines informations ont été traduites automatiquement.
Faits saillants de l'investissement
- Part-complete retail-to-residential conversion project
- Close to amenities, transport and major employment hubs
- Full planning permission granted for 6 apartments
Résumé de l'annonce
Lot 502 is available by way of Savills Online Auction 31st March 2026.
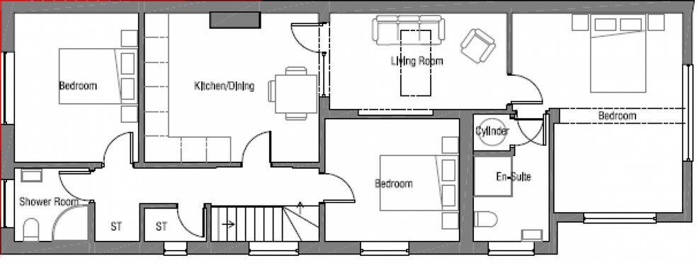
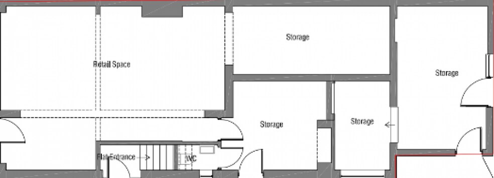
A part-complete retail to residential conversion with full planning permission for six apartments (one three-bedroom unit, three two-bedroom units and two one-bedroom units), including an extension and amenity space to the rear, well located for the shopping and recreational amenities of Didcot - Vacant
A part-complete retail to residential conversion with full planning permission for six apartments (one three-bedroom unit, three two-bedroom units and two one-bedroom units), including an extension and amenity space to the rear, well located for the shopping and recreational amenities of Didcot - Vacant
Faits sur la propriété
Type de vente
Investissement ou propriétaire utilisateur
Condition de vente
Vente à l’encan
Type de propriété
Commerce de détail
Ancienneté
Pleine propriété
Sous-type de propriété
Bien à usage mixte
Taille du bâtiment
1 438 pi²
Classe d’immeuble
B
Année de construction
1905
Prix
652 049 $ CAD
Prix par pi²
453,44 $ CAD
Location
Unique
Hauteur du bâtiment
3 étages
Façade
21’ sur Broadway
Commodités
- Voie de virage obligatoire
- Espace d'entreposage
1 1
Principaux détaillants à proximité
1 de 21
Vidéos
Visite extérieure 3D Matterport
Visite 3D Matterport
Photos
Vue depuis la rue
Rue
Carte
1 de 1
Présenté par
114 Broadway
Vous êtes déjà membre? Connectez-vous
Hmm, il semble y avoir eu une erreur lors de l’envoi de votre message. Veuillez réessayer.
Merci! Votre message a été envoyé.



