Se Connecter/S’inscrire
Votre courriel a été envoyé.
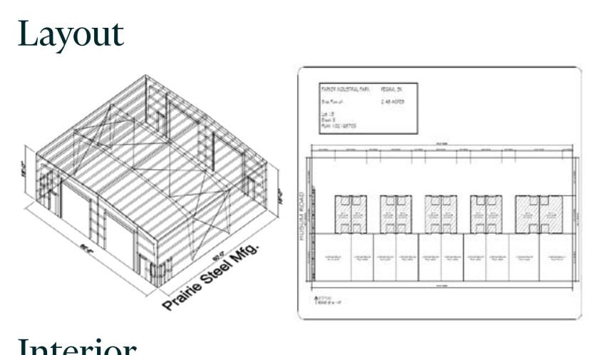
114 Husum Rd 3 000–6 000 pi² d'espace disponible • Industriel • Sherwood No 159, SK S4K 0A4


Certaines informations ont été traduites automatiquement.
Faits saillants
- Boîte à panneaux électriques de 200 ampères.
- Passer par les portes battantes situées à l'avant et à l'arrière du bâtiment.
- Baies nouvellement construites.
Caractéristiques
Baies d’entrée
4
Tous les espaces disponibles(1)
Afficher les taux de location en
- Espace
- Taille
- Terme
- Taux de location
- Utilisation de l’espace
- État
- Disponible
Baie de 3000-6000 pi² à louer. Elle peut être louée en tant qu'unité complète de 6 000 pi² ou divisée en deux unités de 3 000 pi².
- Le taux de location ne comprend pas les services publics, les services de bâtiment ou les dépenses immobilières.
- Salle de bains privée
- Lumière naturelle
- Vidange de plancher
- 2 accès plain-pied
- Entreposage sécurisé
- Unité de chauffage à élingue au gaz.
- Un bureau et une salle de bain
| Espace | Taille | Terme | Taux de location | Utilisation de l’espace | État | Disponible |
| 1er étage | 3 000 à 6 000 pi² | Négociable | 14,00 $ CAD/pi²/an 1,17 $ CAD/pi²/mois 84 000 $ CAD/an 7 000 $ CAD/mois | Industriel | construction complète | Maintenant |
1er étage
| Taille |
| 3 000 à 6 000 pi² |
| Terme |
| Négociable |
| Taux de location |
| 14,00 $ CAD/pi²/an 1,17 $ CAD/pi²/mois 84 000 $ CAD/an 7 000 $ CAD/mois |
| Utilisation de l’espace |
| Industriel |
| État |
| construction complète |
| Disponible |
| Maintenant |
1 de 1
Vidéos
Visite extérieure 3D Matterport
Visite 3D Matterport
Photos
Vue depuis la rue
Rue
Carte
1er étage
| Taille | 3 000 à 6 000 pi² |
| Terme | Négociable |
| Taux de location | 14,00 $ CAD/pi²/an |
| Utilisation de l’espace | Industriel |
| État | construction complète |
| Disponible | Maintenant |
Baie de 3000-6000 pi² à louer. Elle peut être louée en tant qu'unité complète de 6 000 pi² ou divisée en deux unités de 3 000 pi².
- Le taux de location ne comprend pas les services publics, les services de bâtiment ou les dépenses immobilières.
- 2 accès plain-pied
- Salle de bains privée
- Entreposage sécurisé
- Lumière naturelle
- Unité de chauffage à élingue au gaz.
- Vidange de plancher
- Un bureau et une salle de bain
Aperçu de la propriété
Le parc industriel Parker est situé le long du chemin Hsum.
Faits sur l’installation distribution
Taille du bâtiment
6 000 pi²
Taille du lot
0,20 AC
Année de construction
2023
Alimentation électrique
Ampères: 200 Phase: 3
Zonage
Sherwood No. 159
1 1
1 de 3
Vidéos
Visite extérieure 3D Matterport
Visite 3D Matterport
Photos
Vue depuis la rue
Rue
Carte
1 de 1
Présenté par
114 Husum Rd
Vous êtes déjà membre? Connectez-vous
Hmm, il semble y avoir eu une erreur lors de l’envoi de votre message. Veuillez réessayer.
Merci! Votre message a été envoyé.
Votre message a été envoyé !
Activez votre compte LoopNet dès maintenant pour suivre les propriétés, recevoir des alertes en temps réel, gagner du temps sur vos demandes futures et bien plus encore.


