Se Connecter/S’inscrire
Votre courriel a été envoyé.
1146 S Cedar Crest Blvd
Allentown, PA 18103
Lincoln Office Bldg · Médical Propriété À louer
·
2 214 pi²


Certaines informations ont été traduites automatiquement.
Faits saillants
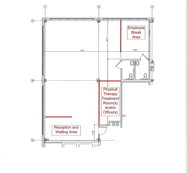
- 2,214 rentable sf available on the first floor
- Property offers great visibility with traffic count of over 19,454 vehicles daily
- Immediate access to I-78/Route 309 and Minutes to Route 22 and Pennsylvania Turnpike
- Three story professional office building on corner of Lincoln Avenue and South Cedar Crest Boulevard in Salisbury Township.
- Within 1/4 mile to Lehigh Valley Health Network Cedar Crest and multiple medical office complexes
- Close to area amenities including restaurants, schools, services and retail establishments
Aperçu de la propriété
Cette propriété de bureau professionnel très visible offre un accès facile à l'I-78/Route 309 et propose une suite de bureaux médicaux bien éclairée au rez-de-chaussée. La suite de bureaux est prête à être personnalisée pour répondre aux besoins de votre entreprise. Idéal pour un physiothérapeute ou un chiropraticien.
- Accès 24 heures
- Ligne d'autobus
- Affichage
Faits sur la propriété
Type de bâtiment
Bureau
Année de construction
1986
Hauteur du bâtiment
3 étages
Taille du bâtiment
17 277 pi²
Classe d’immeuble
B
Superficie de plancher typique
5 759 pi²
Stationnement
50 places de stationnement surface
1 de 11
Vidéos
Visite extérieure 3D Matterport
Visite 3D Matterport
Photos
Vue depuis la rue
Rue
Carte
