Votre courriel a été envoyé.
115 McClung Rd - 2.10AC Commercial Lot High Traffic Athens Lot • Terrain commercial • 3,39 Acres • 1 878 525 $ CAD • Athens, GA 30601



Certaines informations ont été traduites automatiquement.
FAITS SAILLANTS DE L'INVESTISSEMENT
- Prime Location
- High Traffic Volume – The property is located near a major shopping center, which includes a well-known supermarket, ensuring high drive-by visibility
- Strong Demand for Self-Storage
RÉSUMÉ DE L'ANNONCE
Strong Demand for Self-Storage – Current facilities in the market are at over 85% occupancy, indicating a strong demand for storage space.
Growing Residential Market – The area is experiencing significant residential growth, with 2,000 apartment units under development within one mile of the site, creating a steady influx of potential customers.
High Traffic Volume – The property is located near a major shopping center, which includes a well-known supermarket, ensuring high drive-by visibility.
Zoning & Permitting Approved – The site has received zoning approval for self-storage development, significantly reducing regulatory risk and allowing a clear path toward permitting and project execution.
FAITS SUR LA PROPRIÉTÉ
| Prix | 1 878 525 $ CAD | Sous-type de propriété | Terrain commercial |
| Type de vente | Investissement | Utilisation proposée | |
| Nombre de lots | 1 | Taille totale du lot | 3,39 AC |
| Type de propriété | Terrain | ||
| Zonage | C-G | ||
| Prix | 1 878 525 $ CAD |
| Type de vente | Investissement |
| Nombre de lots | 1 |
| Type de propriété | Terrain |
| Sous-type de propriété | Terrain commercial |
| Utilisation proposée | |
| Taille totale du lot | 3,39 AC |
| Zonage | C-G |
1 LOT DISPONIBLE
Lot
| Prix | 1 878 525 $ CAD | Taille du lot | 3,39 AC |
| Prix par AC | 554 137,17 $ CAD |
| Prix | 1 878 525 $ CAD |
| Prix par AC | 554 137,17 $ CAD |
| Taille du lot | 3,39 AC |
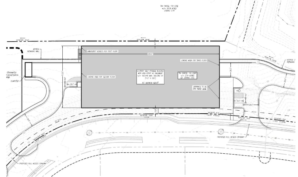
Property spans over 3.39 acres and boasts 100,000+ gross square feet, offering immense potential for development in a high-growth area. With visibility from Hwy 29, the property presents a prime location for maximum exposure and accessibility.
DESCRIPTION
Discover an exceptional investment opportunity at 115 McClung Dr in Athens, GA. This expansive property spans over 3.39 acres and proposed 100,000+ gross square feet, offering immense potential for development in a high-growth area. With visibility from Hwy 29, the property presents a prime location for maximum exposure and accessibility. Furthermore, the confirmed development of over 2,000 units approved for multiple multi-family apartment properties, senior housing and a new single family community within a one-mile radius underscores the burgeoning demand and promising prospects for this investment. Don't miss the chance to capitalize on this substantial property in the thriving Athens area, strategically positioned for lucrative ventures and future growth. For more information, visit www.saulscre.com.
Présenté par
115 McClung Rd - 2.10AC Commercial Lot High Traffic Athens
Hmm, il semble y avoir eu une erreur lors de l’envoi de votre message. Veuillez réessayer.
Merci! Votre message a été envoyé.
