Votre courriel a été envoyé.
24 Hour Fitness - former Kids Club space 11510-11528 Gulf Fwy 1 387 pi² d'espace disponible • Commerce de détail • Houston, TX 77034



Certaines informations ont été traduites automatiquement.
Disponibilité de l’espace (1)
Afficher les taux de location en
- Espace
- Taille
- Terme
- Taux de location
- Type de loyer
| Espace | Taille | Terme | Taux de location | Type de loyer | ||
| 1er étage | 1 387 pi² | Négociable | 22,06 $ CAD/pi²/an 1,84 $ CAD/pi²/mois 30 595 $ CAD/an 2 550 $ CAD/mois | Brut modifié |
1er étage
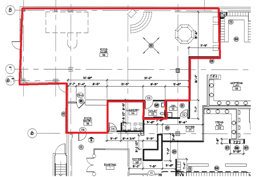
Licensed area is the former Kid's Club space inside existing 24 Hour Fitness. Rent includes common area, taxes, utilities (excluding phone/cable/internet).
- Espace de sous-location disponible auprès du locataire actuel
- Le taux inscrit peut ne pas comprendre certains services publics, les services de bâtiment et les dépenses immobilières.
- Entièrement construit comme Espace de commerce de détail standard
- Situé en ligne avec d’autres commerces de détail
Types de loyers
Le type et le montant du loyer que le locataire (preneur) est tenu de payer au propriétaire (bailleur) sur la durée du bail sont négociés avant la signature du bail par les deux parties. Le type de loyer varie selon les services fournis. Par exemple, le prix d’un loyer hypernet est habituellement inférieur à celui d’un bail à service complet puisque le locataire est tenu d’assumer des dépenses additionnelles par rapport au loyer de base. Contactez le courtier inscripteur pour tout connaître sur les frais connexes et additionnels associés à chaque type de loyer.
1. Service complet: Un taux de location qui comprend des services standards liés à l’immeuble fournis par le propriétaire dans le cadre d’une location annuelle de base.
2. Loyer supernet: Le locataire paie seulement deux des frais de l’immeuble. Le propriétaire et le locataire déterminent ces frais spécifiques avant la signature du bail.
3. Loyer hypernet: Un bail en vertu duquel le locataire est responsable de tous les frais liés à sa part proportionnelle d’occupation de l’immeuble.
4. Brut modifié: Le loyer brut modifié désigne un type général de taux de location dans lequel le locataire est habituellement responsable de sa part proportionnelle d’un ou de plusieurs frais. C’est le propriétaire qui paie les frais restants. Considérez les structures tarifaires courantes suivantes applicables aux loyers bruts modifiés: 4. Plus les services: Un type de bail brut modifié suivant lequel le locataire est responsable de sa part proportionnelle des coûts des services publics, en plus du loyer. 4. Plus le nettoyage: Un type de bail brut modifié suivant lequel le locataire est responsable de sa part proportionnelle des coûts de nettoyage, en plus du loyer. 4. Plus l'électricité: Un type de bail brut modifié suivant lequel le locataire est responsable de sa part proportionnelle des coûts d’électricité, en plus du loyer. 4. Plus l’électricité et le nettoyage: Un type de bail brut modifié dans lequel le locataire est responsable de sa part proportionnelle des coûts d’électricité et de nettoyage, en plus du loyer. 4. Plus les services publics et le nettoyage: Un type de bail brut modifié dans lequel le locataire est responsable de sa part proportionnelle des coûts des services publics et de nettoyage, en plus du loyer. 4. Bail industriel brut: Un type de bail brut modifié dans lequel le locataire paie un ou plusieurs des frais, en plus du loyer. Le propriétaire et le locataire déterminent ces frais spécifiques avant la signature du bail.
5. L’électricité est à la charge du locataire: Le propriétaire paie pour tous les services et le locataire est responsable de sa propre utilisation de l’éclairage et des prises électriques dans l’espace qu’il occupe.
6. Négociable ou sur demande: Cette option est utilisée lorsque le contact de location ne précise pas le type de loyer ou de service.
7. À déterminer: À déterminer ; utilisé pour les immeubles dont le type de services ou de loyer n’est pas connu, souvent quand l’immeuble n’est pas encore construit.
Faits sur la propriété
| Superficie totale disponible | 1 387 pi² | Superficie totale du terrain | 13,34 AC |
| Type de propriété | Commerce de détail | Année de construction | 2005 |
| Sous-type de propriété | Bien à usage mixte | Ratio de stationnement | 10/1 000 pi² |
| Superficie commerciale brute | 45 000 pi² |
| Superficie totale disponible | 1 387 pi² |
| Type de propriété | Commerce de détail |
| Sous-type de propriété | Bien à usage mixte |
| Superficie commerciale brute | 45 000 pi² |
| Superficie totale du terrain | 13,34 AC |
| Année de construction | 2005 |
| Ratio de stationnement | 10/1 000 pi² |
À propos de la propriété
La zone autorisée (sous-location) est une salle à l'intérieur d'un gymnase de conditionnement physique existant et opérationnel 24 heures sur 24. Nous recherchons les utilisations suivantes, notamment : arts martiaux, jiu jitsu brésilien, kickboxing, boxe, autodéfense, physiothérapie, thérapie de réadaptation sportive, services de chiropratique, massage thérapeutique, grappling, goutte à goutte, services consultatifs en perte de poids et programmes connexes, dépistage et tests de diagnostic de santé, produits et accessoires pour le sport, santé et bien-être, vêtements d'entraînement, etc. Envisagera d'autres aspects liés à la santé, à la santé mentale la santé, le mieux-être et d'autres usages complémentaires de conditionnement physique et de sport. CLINIQUES GLP-1 /THS. Remarque : Aucune utilisation qui sert à préparer des aliments et des boissons sur place. Pas de cours de pole dance. Aucune utilisation nécessitant des travaux de construction ou des mises à niveau importantes des services publics. Le loyer comprend l'espace commun, les taxes, les services publics (sauf téléphone/câble/internet).
- Visibilité de l'autoroute
- Enseigne sur pylône
Principaux détaillants à proximité
Présenté par
24 Hour Fitness - former Kids Club space | 11510-11528 Gulf Fwy
Hmm, il semble y avoir eu une erreur lors de l’envoi de votre message. Veuillez réessayer.
Merci! Votre message a été envoyé.



