Votre courriel a été envoyé.
117 E 24th St 4 300 pi² d'espace disponible • Bureau • New York, NY 10010



Certaines informations ont été traduites automatiquement.
Faits saillants
- One block from Madison Square Park.
Tous les espaces disponibles(1)
Afficher les taux de location en
- Espace
- Taille
- Terme
- Taux de location
- Utilisation de l’espace
- État
- Disponible
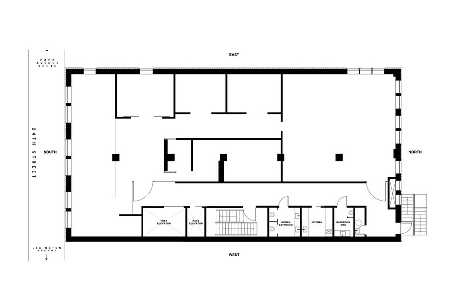
Office / Creative Space / Start Up (Flatiron) 117 East 24th Street, New York, NY 10010 Built in 1920. 4,300 sq ft office available. Full floor fully built luminous office space with11ft 3 inch ceilings and customizable workspaces. Ideal for Design Firm, Branding Agency, or Architectural Firm. – Natural light from large windows facing South, North, and West – Original hardwood floors – Clear and frosted glass walls – Conference room with view of Madison Square Park Clock Tower building – Modern, renovated kitchen and two bathrooms (mens & womens) – Samples, tech, plotter room – Hallway gallery ideal to display work, and art – Keyed elevator to the floor – Access to a large freight elevator opens directly into the space – 24/7 tenant-controlled Air Conditioning. Steam heating throughout the building – On-site building super on duty Monday through Friday, from 9AM to 5PM – Access to transit lines and unparalleled dining choices. – Building designed by Muliken & Moeller architects with beautiful limestone cornices, ornamental brick work and a pediment top. $52 SQ/YR - plus utilities. Negotiable. Lease terms flexible. Space layout modifications possible, depending on lease terms. Showing by appointment only.
- Taux de location inscrit plus part proportionnelle des coûts de la consommation électrique
- Disposition du plan d’étage ouverte en général
- Espace en excellent état
- Aire de réception
- Lumière naturelle
- Entièrement construit comme Bureau de services professionnels
- Plafonds finis: 11’
- Air central et chauffage
- Hauts plafonds
| Espace | Taille | Terme | Taux de location | Utilisation de l’espace | État | Disponible |
| 7e étage | 4 300 pi² | Négociable | 71,11 $ CAD/pi²/an 5,93 $ CAD/pi²/mois 305 780 $ CAD/an 25 482 $ CAD/mois | Bureau | construction complète | Maintenant |
7e étage
| Taille |
| 4 300 pi² |
| Terme |
| Négociable |
| Taux de location |
| 71,11 $ CAD/pi²/an 5,93 $ CAD/pi²/mois 305 780 $ CAD/an 25 482 $ CAD/mois |
| Utilisation de l’espace |
| Bureau |
| État |
| construction complète |
| Disponible |
| Maintenant |
7e étage
| Taille | 4 300 pi² |
| Terme | Négociable |
| Taux de location | 71,11 $ CAD/pi²/an |
| Utilisation de l’espace | Bureau |
| État | construction complète |
| Disponible | Maintenant |
Office / Creative Space / Start Up (Flatiron) 117 East 24th Street, New York, NY 10010 Built in 1920. 4,300 sq ft office available. Full floor fully built luminous office space with11ft 3 inch ceilings and customizable workspaces. Ideal for Design Firm, Branding Agency, or Architectural Firm. – Natural light from large windows facing South, North, and West – Original hardwood floors – Clear and frosted glass walls – Conference room with view of Madison Square Park Clock Tower building – Modern, renovated kitchen and two bathrooms (mens & womens) – Samples, tech, plotter room – Hallway gallery ideal to display work, and art – Keyed elevator to the floor – Access to a large freight elevator opens directly into the space – 24/7 tenant-controlled Air Conditioning. Steam heating throughout the building – On-site building super on duty Monday through Friday, from 9AM to 5PM – Access to transit lines and unparalleled dining choices. – Building designed by Muliken & Moeller architects with beautiful limestone cornices, ornamental brick work and a pediment top. $52 SQ/YR - plus utilities. Negotiable. Lease terms flexible. Space layout modifications possible, depending on lease terms. Showing by appointment only.
- Taux de location inscrit plus part proportionnelle des coûts de la consommation électrique
- Entièrement construit comme Bureau de services professionnels
- Disposition du plan d’étage ouverte en général
- Plafonds finis: 11’
- Espace en excellent état
- Air central et chauffage
- Aire de réception
- Hauts plafonds
- Lumière naturelle
Aperçu de la propriété
Bureau / Espace Créatif / Start-Up (Flatiron) 117 East 24th Street, New York, NY 10010 7e étage Bureau de 4 300 pi² disponible. À un bloc de Madison Square Park. Étage complet, espace de bureau lumineux entièrement aménagé avec plafonds de 11 pieds 3 pouces et espaces de travail personnalisables. Idéal pour une firme de design, une agence de branding ou un cabinet d'architecture. – Lumière naturelle grâce aux grandes fenêtres orientées sud, nord et ouest – Planchers en bois franc d'origine – Murs en verre clair et dépoli – Salle de conférence avec vue sur la tour horloge de Madison Square Park – Cuisine moderne rénovée et deux salles de bain (hommes et femmes) – Salle pour échantillons, technologie et traceur – Galerie dans le couloir idéale pour exposer des œuvres et des projets artistiques – Ascenseur privé avec clé pour accéder à l'étage – Accès à un grand monte-charge qui donne directement dans l'espace – Climatisation contrôlée par le locataire 24/7. Chauffage à vapeur dans tout l'immeuble – Concierge sur place du lundi au vendredi, de 9 h à 17 h – Accès aux lignes de transport et à des options de restauration incomparables Construit en 1920, conçu par les architectes Muliken & Moeller avec de magnifiques corniches en calcaire, des briques ornementales et un fronton au sommet. 52 $/pi²/an - plus services publics. Conditions de bail négociables. Modifications de l'aménagement de l'espace possibles, selon les termes du bail. Visite sur rendez-vous uniquement. Jérôme Bérard 117east24@gmail.com 1.917.657.0405
- Accès 24 heures
- Terrasse sur le toit
Faits sur la propriété
Présenté par
117 E 24th St
Hmm, il semble y avoir eu une erreur lors de l’envoi de votre message. Veuillez réessayer.
Merci! Votre message a été envoyé.



