Se Connecter/S’inscrire
Votre courriel a été envoyé.
117 S 8th St
Tacoma, WA 98402
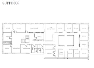
Matador Professional Office · Bureau Propriété À louer
·
5 500 pi²


Certaines informations ont été traduites automatiquement.
Faits sur la propriété
| Superficie totale disponible | 5 500 pi² | Superficie commerciale brute | 10 580 pi² |
| Type de propriété | Commerce de détail | Année de construction | 1918 |
| Sous-type de propriété | Bien à usage mixte |
| Superficie totale disponible | 5 500 pi² |
| Type de propriété | Commerce de détail |
| Sous-type de propriété | Bien à usage mixte |
| Superficie commerciale brute | 10 580 pi² |
| Année de construction | 1918 |
Caractéristiques et commodités
- Ligne d'autobus
1 de 4
Vidéos
Visite extérieure 3D Matterport
Visite 3D Matterport
Photos
Vue depuis la rue
Rue
Carte
