Se Connecter/S’inscrire
Votre courriel a été envoyé.
117 SW 3rd St - New Development Downtown Delray Beach Immeuble de 2 074 pi² • Spécialité • À vendre 1 884 492 $ CAD • Delray Beach, FL 33444



Certaines informations ont été traduites automatiquement.
FAITS SUR LA PROPRIÉTÉ
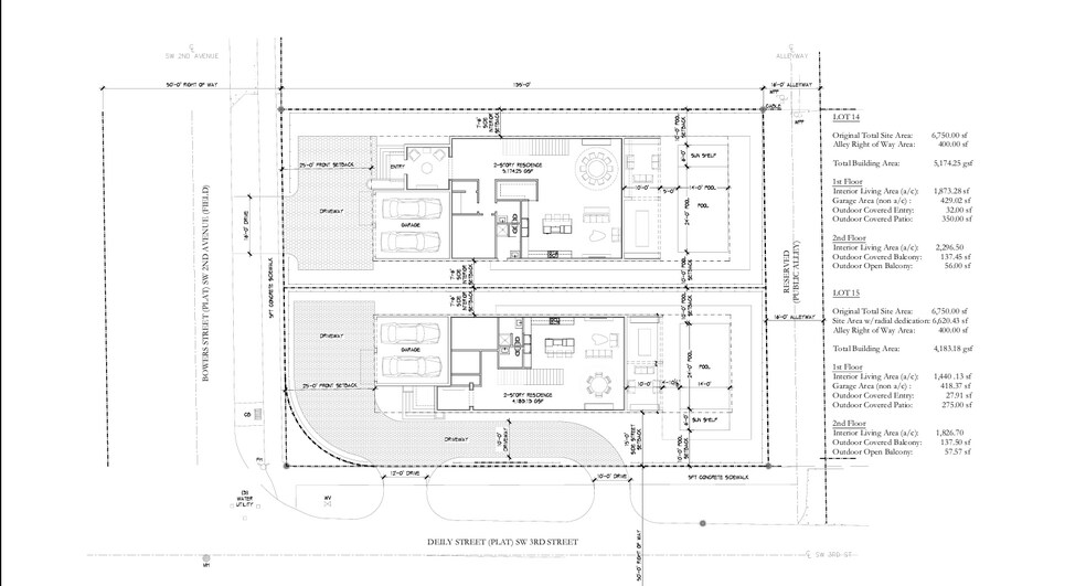
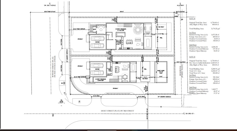
| Prix | 1 884 492 $ CAD | Taille du lot | 0,33 AC |
| Prix par pi² | 131,81 $ CAD | Taille du bâtiment | 14 297 pi² |
| Type de vente | Investissement | Nombre d’étages | 1 |
| Type de propriété | Spécialité | Année de construction/rénovation | 1953/2003 |
| Sous-type de propriété | École | Ratio de stationnement | 0,7/1 000 pi² |
| Classe d’immeuble | C | Zone de développement économique |
Oui
|
| Zonage | R-1-A - Les districts résidentiels unifamiliaux ont été créés pour fournir des zones où se trouve la résidence individuelle traditionnelle unifamiliale. | ||
| Prix | 1 884 492 $ CAD |
| Prix par pi² | 131,81 $ CAD |
| Type de vente | Investissement |
| Type de propriété | Spécialité |
| Sous-type de propriété | École |
| Classe d’immeuble | C |
| Taille du lot | 0,33 AC |
| Taille du bâtiment | 14 297 pi² |
| Nombre d’étages | 1 |
| Année de construction/rénovation | 1953/2003 |
| Ratio de stationnement | 0,7/1 000 pi² |
| Zone de développement économique |
Oui |
| Zonage | R-1-A - Les districts résidentiels unifamiliaux ont été créés pour fournir des zones où se trouve la résidence individuelle traditionnelle unifamiliale. |
1 1
Walk Score®
Très pratique à pied (79)
Impôts fonciers
| Numéro de lot | 12-43-46-17-48-000-0140 | Évaluation des bâtiments | 0 $ CAD |
| Évaluation du terrain | 0 $ CAD | Évaluation totale | 198 869 $ CAD |
Impôts fonciers
Numéro de lot
12-43-46-17-48-000-0140
Évaluation du terrain
0 $ CAD
Évaluation des bâtiments
0 $ CAD
Évaluation totale
198 869 $ CAD
1 de 30
VIDÉOS
VISITE EXTÉRIEURE 3D MATTERPORT
VISITE 3D MATTERPORT
PHOTOS
VUE DEPUIS LA RUE
RUE
CARTE
1 de 1
Présenté par
117 SW 3rd St - New Development Downtown Delray Beach
Vous êtes déjà membre? Connectez-vous
Hmm, il semble y avoir eu une erreur lors de l’envoi de votre message. Veuillez réessayer.
Merci! Votre message a été envoyé.
