Se Connecter/S’inscrire
Votre courriel a été envoyé.
11806 Timber Point Trl 8 400 pi² Industriel Immeuble Mantua, OH 44255 1 223 286 $ CAD (145,63 $ CAD/pi²)



Certaines informations ont été traduites automatiquement.
Faits saillants de l'investissement
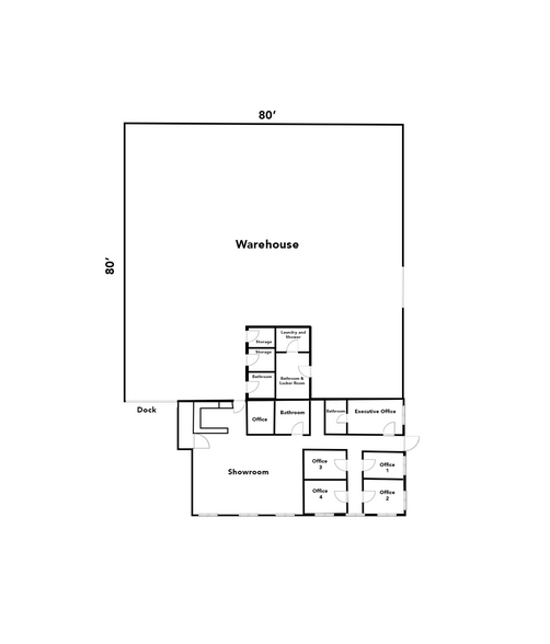
- 6,000 SF clear-span warehouse with 18’ clear height and two 12’×14’ drive-in doors
- 3-Phase power & gas service — ideal for contractors, fabrication, and light manufacturing
- 2,400 SF office / showroom buildout in excellent white-box condition
- Gated & fenced rear yard with well/septic service and ability to connect to city water and sanitary
Résumé de l'annonce
Light-industrial property ideal for owner-users or service-based businesses seeking warehouse functionality with a professional office/showroom presence. The 6,000 SF warehouse features 18-foot clear height and two 12’x14’ drive-in doors, supporting equipment storage, fabrication, and efficient vehicle access. A 2,400 SF office and showroom component offers clean, adaptable space for admin-operations, client meetings, product display or overflow storage. 3-phase power and gas service provide the infrastructure required for industrial users with optional connectivity to municipal water and sewer. The gated and fenced rear yard adds secure outdoor storage capacity on 2.01 acres. The property can be expanded for an additional 30,000 SF.
Call Cole Kroneker to learn more.
Call Cole Kroneker to learn more.
Faits sur la propriété
| Prix | 1 223 286 $ CAD | Nombre d’étages | 1 |
| Prix par pi² | 145,63 $ CAD | Année de construction | 2000 |
| Type de vente | Investissement ou propriétaire utilisateur | Location | Unique |
| Type de propriété | Industriel | Ratio de stationnement | 0,24/1 000 pi² |
| Sous-type de propriété | Entrepôt | Effacer hauteur du plafond | 18’6” |
| Classe d’immeuble | B | Nbre de quais à portes élevées/de chargement | 1 |
| Taille du lot | 2,01 AC | Nbre d’entrées dans les portes/au niveau du sol | 2 |
| Aire du bâtiment louable | 8 400 pi² | ||
| Zonage | Commercial - Industrial - industrie légère, aucun entreposage extérieur des stocks, 20 | ||
| Prix | 1 223 286 $ CAD |
| Prix par pi² | 145,63 $ CAD |
| Type de vente | Investissement ou propriétaire utilisateur |
| Type de propriété | Industriel |
| Sous-type de propriété | Entrepôt |
| Classe d’immeuble | B |
| Taille du lot | 2,01 AC |
| Aire du bâtiment louable | 8 400 pi² |
| Nombre d’étages | 1 |
| Année de construction | 2000 |
| Location | Unique |
| Ratio de stationnement | 0,24/1 000 pi² |
| Effacer hauteur du plafond | 18’6” |
| Nbre de quais à portes élevées/de chargement | 1 |
| Nbre d’entrées dans les portes/au niveau du sol | 2 |
| Zonage | Commercial - Industrial - industrie légère, aucun entreposage extérieur des stocks, 20 |
1 1
Plutôt practicable à pied
20/100
Exceptionnellement facile d'accès en voiture
100/100
Impraticable en vélo
10/100
Impôts fonciers
| Numéro de lot | 23-022-00-00-026-009 | Évaluation des bâtiments | 123 859 $ CAD |
| Évaluation du terrain | 38 421 $ CAD | Évaluation totale | 162 280 $ CAD |
Impôts fonciers
Numéro de lot
23-022-00-00-026-009
Évaluation du terrain
38 421 $ CAD
Évaluation des bâtiments
123 859 $ CAD
Évaluation totale
162 280 $ CAD
1 de 7
Vidéos
Visite extérieure 3D Matterport
Visite 3D Matterport
Photos
Vue depuis la rue
Rue
Carte
1 de 1
Présenté par
11806 Timber Point Trl
Vous êtes déjà membre? Connectez-vous
Hmm, il semble y avoir eu une erreur lors de l’envoi de votre message. Veuillez réessayer.
Merci! Votre message a été envoyé.
