Se Connecter/S’inscrire
Votre courriel a été envoyé.
Certaines informations ont été traduites automatiquement.
Caractéristiques
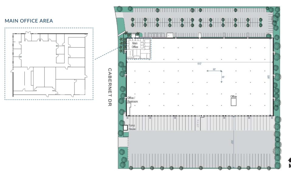
Hauteur libre
30’
Baies d’entrée
2
Portes de quai de chargement extérieures
38
Niveleurs
38
Places de stationnement standard
150
Tous les espaces disponibles(1)
Afficher les taux de location en
- Espace
- Taille
- Terme
- Taux de location
- Utilisation de l’espace
- Aménagement
- Disponible
- Comprend 10 120 pi² d’espace de bureau dédié
| Espace | Taille | Terme | Taux de location | Utilisation de l’espace | Aménagement | Disponible |
| 1er étage | 198 900 pi² | Négociable | Sur demande Sur demande Sur demande Sur demande | Industriel | construction complète | 30 jours |
1er étage
| Taille |
| 198 900 pi² |
| Terme |
| Négociable |
| Taux de location |
| Sur demande Sur demande Sur demande Sur demande |
| Utilisation de l’espace |
| Industriel |
| Aménagement |
| construction complète |
| Disponible |
| 30 jours |
1 de 1
Vidéos
Visite extérieure 3D Matterport
Visite 3D Matterport
Photos
Vue depuis la rue
Rue
Carte
1er étage
| Taille | 198 900 pi² |
| Terme | Négociable |
| Taux de location | Sur demande |
| Utilisation de l’espace | Industriel |
| Aménagement | construction complète |
| Disponible | 30 jours |
- Comprend 10 120 pi² d’espace de bureau dédié
Faits sur l’installation entrepôt
Taille du bâtiment
198 900 pi²
Taille du lot
10,67 AC
Année de construction
1996
Construction
Béton renforcé
Système de gicleur
ESFR
Alimentation électrique
Ampères: 800 Volts: 277-480 Phase: 3
Sélectionner des locataires
- Étage
- Nom du locataire
- Secteur
- 1ᵉʳ
- Home Legend
- Construction
Plutôt praticable à pied
30/100
Exceptionnellement facile d’accès en voiture
100/100
Transports en commun relativement accessibles
40/100
Plutôt praticable en vélo
50/100
1 de 9
Vidéos
Visite extérieure 3D Matterport
Visite 3D Matterport
Photos
Vue depuis la rue
Rue
Carte
Présenté par
11875 Cabernet Dr
Vous êtes déjà membre? Connectez-vous
Hmm, il semble y avoir eu une erreur lors de l’envoi de votre message. Veuillez réessayer.
Merci! Votre message a été envoyé.






