Se Connecter/S’inscrire
Votre courriel a été envoyé.
119-121 The Homend 2 755 pi² Commerce de détail Immeuble Ledbury HR8 1BP 526 113 $ CAD (190,97 $ CAD/pi²)



Certaines informations ont été traduites automatiquement.
Faits saillants de l'investissement
- Prime town centre location with good footfall
- Ground floor sales with prominent display windows
- Guide price: £285,000
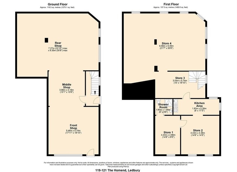
- Retail extending to approximately 2,755 SF
- First floor stores, kitchenette & WC
Résumé de l'annonce
The property is available for sale freehold with vacant possession for £285,000.
Comprising of 2,755 SF arranged over two storeys, there is an open plan ground floor retail space with the first floor offering store room space alongside a small kitchenette and WC facilities. The property benefits from prominent display windows, offering excellent exposure to both pedestrian and vehicle traffic.
Comprising of 2,755 SF arranged over two storeys, there is an open plan ground floor retail space with the first floor offering store room space alongside a small kitchenette and WC facilities. The property benefits from prominent display windows, offering excellent exposure to both pedestrian and vehicle traffic.
Faits sur la propriété
Type de vente
Propriétaire utilisateur
Type de propriété
Commerce de détail
Ancienneté
Pleine propriété
Sous-type de propriété
Taille du bâtiment
2 755 pi²
Classe d’immeuble
C
Année de construction
1950
Prix
526 113 $ CAD
Prix par pi²
190,97 $ CAD
Location
Unique
Hauteur du bâtiment
2 étages
Coefficient d’occupation des sols de l’immeuble
0,79
Taille du lot
0,08 AC
Commodités
- Accès 24 heures
- Affichage
- Cote de rendement énergétique - C
- Espace d'entreposage
- Détecteur de fumée
1 1
Principaux détaillants à proximité
1 de 4
Vidéos
Visite extérieure 3D Matterport
Visite 3D Matterport
Photos
Vue depuis la rue
Rue
Carte
1 de 1
Présenté par
119-121 The Homend
Vous êtes déjà membre? Connectez-vous
Hmm, il semble y avoir eu une erreur lors de l’envoi de votre message. Veuillez réessayer.
Merci! Votre message a été envoyé.
