Votre courriel a été envoyé.
Wesleyan Drive 1193 1193 Wesleyan Dr 800–3 200 pi² d'espace disponible • Commerce de détail • Macon-Bibb, GA 31210



Certaines informations ont été traduites automatiquement.
Faits saillants
- New construction convenience store/gas station
- Excellent visibility intersection
- Strong morning & afternoon traffic counts due to school proximity
- Convenience store anchor
- High household density
- Ideal for quick-stop food/service/retail users
Disponibilité des espaces (4)
Afficher les taux de location en
- Espace
- Taille
- Terme
- Taux de location
- Type de loyer
| Espace | Taille | Terme | Taux de location | Type de loyer | ||
| 1er étage, ste 201 | 800 pi² | Négociable | 34,56 $ CAD/pi²/an 2,88 $ CAD/pi²/mois 27 648 $ CAD/an 2 304 $ CAD/mois | Loyer hypernet | ||
| 1er étage, ste 203 | 800 pi² | Négociable | 34,56 $ CAD/pi²/an 2,88 $ CAD/pi²/mois 27 648 $ CAD/an 2 304 $ CAD/mois | Loyer hypernet | ||
| 1er étage, ste 205 | 800 pi² | Négociable | 34,56 $ CAD/pi²/an 2,88 $ CAD/pi²/mois 27 648 $ CAD/an 2 304 $ CAD/mois | Loyer hypernet | ||
| 1er étage, ste 207 | 800 pi² | Négociable | 34,56 $ CAD/pi²/an 2,88 $ CAD/pi²/mois 27 648 $ CAD/an 2 304 $ CAD/mois | Loyer hypernet |
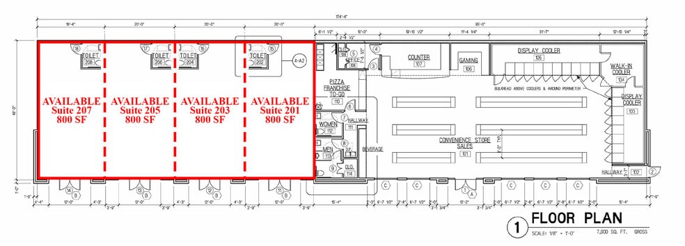
1er étage, ste 201
Inline suite, can be combined with Suites 203 & 205 for maximum contiguous 2,400 SF.
- Le taux de location ne comprend pas les services publics, les services de bâtiment ou les dépenses immobilières.
- Situé en ligne avec d’autres commerces de détail
- Peut être associé à un ou plusieurs espaces supplémentaires pour obtenir jusqu’à 3 200 pi² d’espace adjacent.
1er étage, ste 203
Inline suite, can be combined with Suites 203 & 205 for maximum contiguous 2,400 SF.
- Le taux de location ne comprend pas les services publics, les services de bâtiment ou les dépenses immobilières.
- Situé en ligne avec d’autres commerces de détail
- Peut être associé à un ou plusieurs espaces supplémentaires pour obtenir jusqu’à 3 200 pi² d’espace adjacent.
1er étage, ste 205
Inline suite, can be combined with Suites 201 & 203 for maximum contiguous 2,400 SF.
- Le taux de location ne comprend pas les services publics, les services de bâtiment ou les dépenses immobilières.
- Situé en ligne avec d’autres commerces de détail
- Peut être associé à un ou plusieurs espaces supplémentaires pour obtenir jusqu’à 3 200 pi² d’espace adjacent.
1er étage, ste 207
800 SF endcap suite, can be combined with Suites 201, 203, & 205 for maximum contiguous 3,600 SF.
- Le taux de location ne comprend pas les services publics, les services de bâtiment ou les dépenses immobilières.
- Espace embout très recherché
- Peut être associé à un ou plusieurs espaces supplémentaires pour obtenir jusqu’à 3 200 pi² d’espace adjacent.
Types de loyers
Le type et le montant du loyer que le locataire (preneur) est tenu de payer au propriétaire (bailleur) sur la durée du bail sont négociés avant la signature du bail par les deux parties. Le type de loyer varie selon les services fournis. Par exemple, le prix d’un loyer hypernet est habituellement inférieur à celui d’un bail à service complet puisque le locataire est tenu d’assumer des dépenses additionnelles par rapport au loyer de base. Contactez le courtier inscripteur pour tout connaître sur les frais connexes et additionnels associés à chaque type de loyer.
1. Service complet: Un taux de location qui comprend des services standards liés à l’immeuble fournis par le propriétaire dans le cadre d’une location annuelle de base.
2. Loyer supernet: Le locataire paie seulement deux des frais de l’immeuble. Le propriétaire et le locataire déterminent ces frais spécifiques avant la signature du bail.
3. Loyer hypernet: Un bail en vertu duquel le locataire est responsable de tous les frais liés à sa part proportionnelle d’occupation de l’immeuble.
4. Brut modifié: Le loyer brut modifié désigne un type général de taux de location dans lequel le locataire est habituellement responsable de sa part proportionnelle d’un ou de plusieurs frais. C’est le propriétaire qui paie les frais restants. Considérez les structures tarifaires courantes suivantes applicables aux loyers bruts modifiés: 4. Plus les services: Un type de bail brut modifié suivant lequel le locataire est responsable de sa part proportionnelle des coûts des services publics, en plus du loyer. 4. Plus le nettoyage: Un type de bail brut modifié suivant lequel le locataire est responsable de sa part proportionnelle des coûts de nettoyage, en plus du loyer. 4. Plus l'électricité: Un type de bail brut modifié suivant lequel le locataire est responsable de sa part proportionnelle des coûts d’électricité, en plus du loyer. 4. Plus l’électricité et le nettoyage: Un type de bail brut modifié dans lequel le locataire est responsable de sa part proportionnelle des coûts d’électricité et de nettoyage, en plus du loyer. 4. Plus les services publics et le nettoyage: Un type de bail brut modifié dans lequel le locataire est responsable de sa part proportionnelle des coûts des services publics et de nettoyage, en plus du loyer. 4. Bail industriel brut: Un type de bail brut modifié dans lequel le locataire paie un ou plusieurs des frais, en plus du loyer. Le propriétaire et le locataire déterminent ces frais spécifiques avant la signature du bail.
5. L’électricité est à la charge du locataire: Le propriétaire paie pour tous les services et le locataire est responsable de sa propre utilisation de l’éclairage et des prises électriques dans l’espace qu’il occupe.
6. Négociable ou sur demande: Cette option est utilisée lorsque le contact de location ne précise pas le type de loyer ou de service.
7. À déterminer: À déterminer ; utilisé pour les immeubles dont le type de services ou de loyer n’est pas connu, souvent quand l’immeuble n’est pas encore construit.
Plan de site
Faits sur la propriété
| Superficie totale disponible | 3 200 pi² | Superficie commerciale brute | 7 000 pi² |
| Type de propriété | Commerce de détail | Année de construction | 2026 |
| Superficie totale disponible | 3 200 pi² |
| Type de propriété | Commerce de détail |
| Superficie commerciale brute | 7 000 pi² |
| Année de construction | 2026 |
À propos de la propriété
Four 800 SF suites are available, and can be combined for a maximum contiguous space of up to 3,200 SF. Ideal for coffee/QSR, dessert/ice cream, salon/barber, nail spa, cellular, boutique fitness, medical/urgent service, insurance, specialty retail, and other neighborhood-serving concepts. Retail suites available at a new-construction convenience store/gas station in one of North Macon’s strongest retail corridors. The convenience anchor drives steady traffic, creating an ideal setting for service, food, and retail users that benefit from quick-stop visits & repeat customers. Positioned in North Macon’s primary trade area, site benefits from strong household density and retail traffic patterns with quick access to the area’s major shopping, grocery anchors, & restaurant corridors. Neighbors and nearby businesses include Springdale Elementary School, Northside Prep Learning Center, The Madison Studio - Dance Education, Advanced Dental Arts, Food Depot, Family Dollar, CVS, Advance Auto Parts, OrthoGeorgia, Kroger, Cold Stone Creamery, Culver’s, Panera Bread, IHOP, Chick-fil-A, Starbucks, Dunkin’, Planet Fitness, Urban Air Trampoline Park, and many more retail, shopping, and restaurant establishments.
- Lot de coin
- Intersection avec signalisation
Principaux détaillants à proximité
Présenté par
Wesleyan Drive 1193 | 1193 Wesleyan Dr
Hmm, il semble y avoir eu une erreur lors de l’envoi de votre message. Veuillez réessayer.
Merci! Votre message a été envoyé.

