Se Connecter/S’inscrire
Votre courriel a été envoyé.
Certaines informations ont été traduites automatiquement.
Caractéristiques
Hauteur libre
13’
Baies d’entrée
1
Portes de quai de chargement intérieures
2
Places de stationnement standard
48
Tous les espaces disponibles(1)
Afficher les taux de location en
- Espace
- Taille
- Terme
- Taux de location
- Utilisation de l’espace
- Aménagement
- Disponible
- Le taux inscrit peut ne pas comprendre certains services publics, les services de bâtiment et les dépenses immobilières.
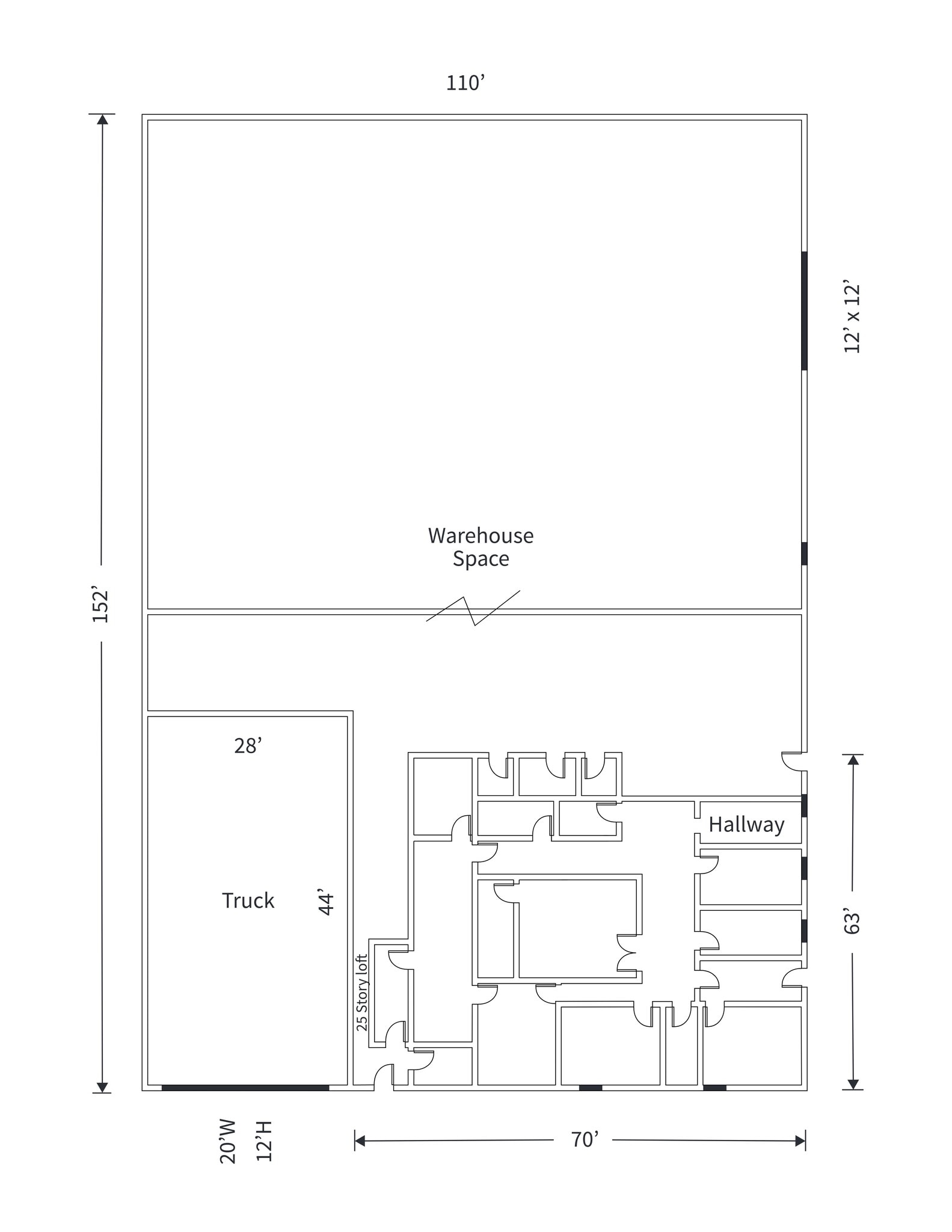
- 1 accès plain-pied
- Salle de bains privée
- Comprend 4 410 pi² d’espace de bureau dédié
- 2 quais de chargement
| Espace | Taille | Terme | Taux de location | Utilisation de l’espace | Aménagement | Disponible |
| 1er étage | 16 720 pi² | 3-5 ans | 21,02 $ CAD/pi²/an 1,75 $ CAD/pi²/mois 351 485 $ CAD/an 29 290 $ CAD/mois | Industriel | construction partielle | Maintenant |
1er étage
| Taille |
| 16 720 pi² |
| Terme |
| 3-5 ans |
| Taux de location |
| 21,02 $ CAD/pi²/an 1,75 $ CAD/pi²/mois 351 485 $ CAD/an 29 290 $ CAD/mois |
| Utilisation de l’espace |
| Industriel |
| Aménagement |
| construction partielle |
| Disponible |
| Maintenant |
1 de 1
Vidéos
Visite extérieure 3D Matterport
Visite 3D Matterport
Photos
Vue depuis la rue
Rue
Carte
1er étage
| Taille | 16 720 pi² |
| Terme | 3-5 ans |
| Taux de location | 21,02 $ CAD/pi²/an |
| Utilisation de l’espace | Industriel |
| Aménagement | construction partielle |
| Disponible | Maintenant |
- Le taux inscrit peut ne pas comprendre certains services publics, les services de bâtiment et les dépenses immobilières.
- Comprend 4 410 pi² d’espace de bureau dédié
- 1 accès plain-pied
- 2 quais de chargement
- Salle de bains privée
Faits sur l’installation entrepôt
Taille du bâtiment
83 842 pi²
Taille du lot
4,00 AC
Année de construction
1979
Construction
Béton renforcé
Système de gicleur
Humide
Éclairage
Fluorescent
Eau
Ville
Égout
Ville
Chauffage
Gaz
Gaz
Naturel
Alimentation électrique
Ampères: 2 000 Volts: 277-480
Zonage
M2, Los Angeles - LA CITY M2 (CET ESPACE EST UN ENTREPOSAGE MORT SEULEMENT, AUCUNE FABRICATION)
Sélectionner des locataires
- Étage
- Nom du locataire
- Secteur
- 1ᵉʳ
- Cesar Soto Moving and Storage
- -
- 1ᵉʳ
- Elegant Fireplace Mantels
- Grossiste
- 1ᵉʳ
- Ethik Brands
- Fabrication
- 1ᵉʳ
- Olympian Marble & Granite
- Grossiste
- 1ᵉʳ
- Viva Video Productions Llc
- Information
1 1
Assez praticable à pied
50/100
Exceptionnellement facile d’accès en voiture
90/100
Transports en commun limités
30/100
Plutôt praticable en vélo
40/100
1 de 16
Vidéos
Visite extérieure 3D Matterport
Visite 3D Matterport
Photos
Vue depuis la rue
Rue
Carte
1 de 1
Présenté par
11949 Borden Ave
Vous êtes déjà membre? Connectez-vous
Hmm, il semble y avoir eu une erreur lors de l’envoi de votre message. Veuillez réessayer.
Merci! Votre message a été envoyé.





