Votre courriel a été envoyé.
12 Park Drive - Park Drive, Uplands, Swansea Lot • Terrain commercial • 0,16 Acres • 465 749 $ CAD • Sketty SA2 0PP



Certaines informations ont été traduites automatiquement.
Faits saillants de l'investissement
- Full planning permission for 2 detached homes
- Close to Swansea University, coastline and local amenities
- High-quality architectural design and materials
Résumé de l'annonce
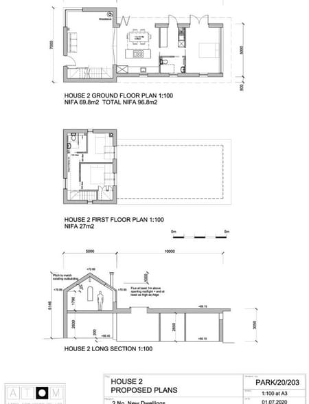
The site benefits from full detailed planning permission (Ref: 2023/1885/S73) for the construction of two contemporary three-bedroom detached dwellings, each designed to provide modern family accommodation with private gardens and off-road parking.
The proposed scheme features high-quality architectural design incorporating Gwryd Blue Pennant Sandstone, natural slate roofing, cedar cladding, smooth render and anthracite aluminium windows, creating an attractive and contemporary finish.
The properties are arranged across two floors and include spacious open-plan living areas, kitchens, multiple bedrooms, and modern bathrooms. Both houses benefit from landscaped rear gardens and private parking.
The development sits in a tucked-away position off Park Drive, backing onto Cwmdonkin Park and enjoying views towards Swansea Bay. The location is within easy reach of Swansea University, the Swansea coastline, excellent local schools and the vibrant cafés, restaurants and shops of the Uplands quarter.
This opportunity is ideally suited to developers or investors seeking a well-located residential scheme in an established and high-demand residential area.
Further information, planning documents and architectural drawings are available upon request or via the Swansea planning portal.
Faits sur la propriété
| Prix | 465 749 $ CAD | Type de propriété | Terrain |
| Type de vente | Investissement | Sous-type de propriété | Terrain commercial |
| Ancienneté | Pleine propriété | Utilisation proposée | Maison unifamiliale |
| Nombre de lots | 1 | Taille totale du lot | 0,16 AC |
| Prix | 465 749 $ CAD |
| Type de vente | Investissement |
| Ancienneté | Pleine propriété |
| Nombre de lots | 1 |
| Type de propriété | Terrain |
| Sous-type de propriété | Terrain commercial |
| Utilisation proposée | Maison unifamiliale |
| Taille totale du lot | 0,16 AC |
1 Lot disponible
Lot
| Prix | 465 749 $ CAD | Taille du lot | 0,16 AC |
| Prix par AC | 2 910 932,86 $ CAD |
| Prix | 465 749 $ CAD |
| Prix par AC | 2 910 932,86 $ CAD |
| Taille du lot | 0,16 AC |
Prime residential development plot with full planning permission for two contemporary three-bedroom detached homes in the highly desirable Uplands area of Swansea, adjacent to Cwmdonkin Park and benefiting from sea views.
Description
Prime residential development opportunity located off Park Drive in the desirable Uplands area of Swansea. The site has full planning consent for two high-specification detached homes arranged over two floors. Each property includes open-plan living accommodation, three bedrooms, modern kitchens and bathrooms, private gardens and off-road parking. Externally the homes will feature a premium materials palette including sandstone, slate roofing, cedar cladding and aluminium glazing. The site benefits from a quiet position adjacent to Cwmdonkin Park while remaining within walking distance of the Uplands district centre, Swansea University and the Swansea coastline. The surrounding area is characterised by attractive residential housing and strong demand for high-quality family homes.
Présenté par
12 Park Drive - Park Drive, Uplands, Swansea
Hmm, il semble y avoir eu une erreur lors de l’envoi de votre message. Veuillez réessayer.
Merci! Votre message a été envoyé.

