Votre courriel a été envoyé.
Certaines informations ont été traduites automatiquement.
Faits saillants
- Le SEUL espace loué actuellement disponible dans cet immeuble de bureaux médicaux moderne
- Nombre de trafic élevé
- Excellent emplacement
Tous les espaces disponibles(4)
Afficher les taux de location en
- Espace
- Taille
- Terme
- Taux de location
- Utilisation de l’espace
- Aménagement
- Disponible
Newly available Suite B in this modern medical Office Building. With just over 1,716 sf of space, the landlord is willing to provide TI allowance with acceptable lease terms and credit. Space currently is set for medical. Has two rest rooms, waiting room, oversized admin workspace, check in check out, storage & supply space. Three exam rooms, private Dr's Office, break room, and a document copy room. Lease will be a triple net lease. 3-5 year term is desired.
- Le taux de location ne comprend pas les services publics, les services de bâtiment ou les dépenses immobilières.
- Plafonds finis: 8’ - 14’
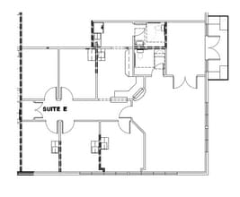
Lots of space at this modern medical Office Building. With just over 1,716 sf of space, the landlord is willing to provide TI allowance with acceptable lease terms and credit. Space currently is configured for medical, it is equipped with two rest rooms, waiting room, check in check out, private Dr's Office, break room, supply closet, 3 exam rooms, and a document copy room. This currently has a neighboring suite also for lease, Suite F, in shell form. Suite E & F have the potential to be leased together that would total 3,065 sf.
- Le taux de location ne comprend pas les services publics, les services de bâtiment ou les dépenses immobilières.
Lots to offer in this modern medical Office Building. This is a 2-space option. Suite E is already finished-out and set up for a medical office. But this is an opportunity to expand the suite into the current Suite F that is shell space ready to finish-out. Combined they are 3,065 sf of space, the Landlord is willing to provide TI allowance with acceptable lease terms and credit. Suite E currently is configured to have two rest rooms, waiting room, check in check out, private Dr's Office, break room, supply closet, 3 exam rooms, and a document copy room.
- Le taux de location ne comprend pas les services publics, les services de bâtiment ou les dépenses immobilières.
This is the only unfinished-shell space currently available in this modern medical Office Building. With just over 1,349 sf of space to make your own. Landlord is willing to provide TI allowance with acceptable lease terms and credit. Lease will be structured as a NNN lease.
- Le taux de location ne comprend pas les services publics, les services de bâtiment ou les dépenses immobilières.
| Espace | Taille | Terme | Taux de location | Utilisation de l’espace | Aménagement | Disponible |
| 1er étage, ste #B | 1 800 pi² | 3 ans | 34,19 $ CAD/pi²/an 2,85 $ CAD/pi²/mois 61 546 $ CAD/an 5 129 $ CAD/mois | Bureau | construction complète | Maintenant |
| 1er étage, ste #E | 1 716 pi² | 3-5 ans | 34,19 $ CAD/pi²/an 2,85 $ CAD/pi²/mois 58 674 $ CAD/an 4 890 $ CAD/mois | Bureau | - | Maintenant |
| 1er étage, ste #E-F | 3 065 pi² | 3-5 ans | 34,19 $ CAD/pi²/an 2,85 $ CAD/pi²/mois 104 800 $ CAD/an 8 733 $ CAD/mois | Bureau/Médical | - | Maintenant |
| 1er étage, ste #F | 1 349 pi² | 3-5 ans | 34,19 $ CAD/pi²/an 2,85 $ CAD/pi²/mois 46 126 $ CAD/an 3 844 $ CAD/mois | Bureau | - | Maintenant |
1er étage, ste #B
| Taille |
| 1 800 pi² |
| Terme |
| 3 ans |
| Taux de location |
| 34,19 $ CAD/pi²/an 2,85 $ CAD/pi²/mois 61 546 $ CAD/an 5 129 $ CAD/mois |
| Utilisation de l’espace |
| Bureau |
| Aménagement |
| construction complète |
| Disponible |
| Maintenant |
1er étage, ste #E
| Taille |
| 1 716 pi² |
| Terme |
| 3-5 ans |
| Taux de location |
| 34,19 $ CAD/pi²/an 2,85 $ CAD/pi²/mois 58 674 $ CAD/an 4 890 $ CAD/mois |
| Utilisation de l’espace |
| Bureau |
| Aménagement |
| - |
| Disponible |
| Maintenant |
1er étage, ste #E-F
| Taille |
| 3 065 pi² |
| Terme |
| 3-5 ans |
| Taux de location |
| 34,19 $ CAD/pi²/an 2,85 $ CAD/pi²/mois 104 800 $ CAD/an 8 733 $ CAD/mois |
| Utilisation de l’espace |
| Bureau/Médical |
| Aménagement |
| - |
| Disponible |
| Maintenant |
1er étage, ste #F
| Taille |
| 1 349 pi² |
| Terme |
| 3-5 ans |
| Taux de location |
| 34,19 $ CAD/pi²/an 2,85 $ CAD/pi²/mois 46 126 $ CAD/an 3 844 $ CAD/mois |
| Utilisation de l’espace |
| Bureau |
| Aménagement |
| - |
| Disponible |
| Maintenant |
1er étage, ste #B
| Taille | 1 800 pi² |
| Terme | 3 ans |
| Taux de location | 34,19 $ CAD/pi²/an |
| Utilisation de l’espace | Bureau |
| Aménagement | construction complète |
| Disponible | Maintenant |
Newly available Suite B in this modern medical Office Building. With just over 1,716 sf of space, the landlord is willing to provide TI allowance with acceptable lease terms and credit. Space currently is set for medical. Has two rest rooms, waiting room, oversized admin workspace, check in check out, storage & supply space. Three exam rooms, private Dr's Office, break room, and a document copy room. Lease will be a triple net lease. 3-5 year term is desired.
- Le taux de location ne comprend pas les services publics, les services de bâtiment ou les dépenses immobilières.
- Plafonds finis: 8’ - 14’
1er étage, ste #E
| Taille | 1 716 pi² |
| Terme | 3-5 ans |
| Taux de location | 34,19 $ CAD/pi²/an |
| Utilisation de l’espace | Bureau |
| Aménagement | - |
| Disponible | Maintenant |
Lots of space at this modern medical Office Building. With just over 1,716 sf of space, the landlord is willing to provide TI allowance with acceptable lease terms and credit. Space currently is configured for medical, it is equipped with two rest rooms, waiting room, check in check out, private Dr's Office, break room, supply closet, 3 exam rooms, and a document copy room. This currently has a neighboring suite also for lease, Suite F, in shell form. Suite E & F have the potential to be leased together that would total 3,065 sf.
- Le taux de location ne comprend pas les services publics, les services de bâtiment ou les dépenses immobilières.
1er étage, ste #E-F
| Taille | 3 065 pi² |
| Terme | 3-5 ans |
| Taux de location | 34,19 $ CAD/pi²/an |
| Utilisation de l’espace | Bureau/Médical |
| Aménagement | - |
| Disponible | Maintenant |
Lots to offer in this modern medical Office Building. This is a 2-space option. Suite E is already finished-out and set up for a medical office. But this is an opportunity to expand the suite into the current Suite F that is shell space ready to finish-out. Combined they are 3,065 sf of space, the Landlord is willing to provide TI allowance with acceptable lease terms and credit. Suite E currently is configured to have two rest rooms, waiting room, check in check out, private Dr's Office, break room, supply closet, 3 exam rooms, and a document copy room.
- Le taux de location ne comprend pas les services publics, les services de bâtiment ou les dépenses immobilières.
1er étage, ste #F
| Taille | 1 349 pi² |
| Terme | 3-5 ans |
| Taux de location | 34,19 $ CAD/pi²/an |
| Utilisation de l’espace | Bureau |
| Aménagement | - |
| Disponible | Maintenant |
This is the only unfinished-shell space currently available in this modern medical Office Building. With just over 1,349 sf of space to make your own. Landlord is willing to provide TI allowance with acceptable lease terms and credit. Lease will be structured as a NNN lease.
- Le taux de location ne comprend pas les services publics, les services de bâtiment ou les dépenses immobilières.
Aperçu de la propriété
Il s'agit du seul espace loué actuellement disponible dans cet immeuble de bureaux médicaux moderne. Avec un peu plus de 1 700 pieds 2 d'espace, le locateur est prêt à accorder une allocation TI avec des conditions de location et un crédit acceptables. L'espace est actuellement configuré pour avoir deux salles de repos, une salle d'attente, un bureau d'enregistrement, un bureau de Dr privé, une salle de repos, un placard à fournitures, 3 salles d'examen, un poste d'infirmière et une salle de photocopie de documents.
Faits sur la propriété
Présenté par
Avalon Medical Park II | 1200 Crawford Ave
Hmm, il semble y avoir eu une erreur lors de l’envoi de votre message. Veuillez réessayer.
Merci! Votre message a été envoyé.












