Votre courriel a été envoyé.
Certaines informations ont été traduites automatiquement.
Tous les espaces disponibles(5)
Afficher les taux de location en
- Espace
- Taille
- Terme
- Taux de location
- Utilisation de l’espace
- Aménagement
- Disponible
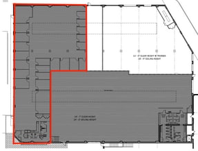
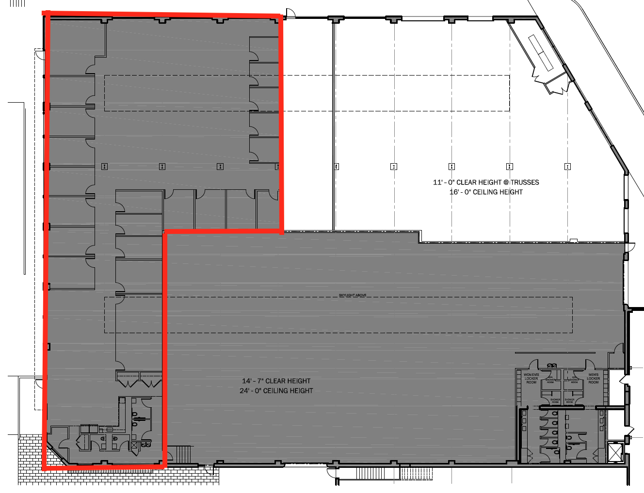
Integrated flex space with 25 ft ceiling height, oversized drive-in door, wide column bays, and locker rooms with showers. Skylights bring in tons of light throughout a space that could be home to a number of different uses. On-site amenities include parking and a coffee shop.
- Le taux inscrit peut ne pas comprendre certains services publics, les services de bâtiment et les dépenses immobilières.
Newly built out beautiful and furnished space with glass offices, bow truss ceilings, skylights, river views. Parking and a riverwalk are right outside the front door. Tons of light throughout, perfect mix of office and open space.
- Le taux inscrit peut ne pas comprendre certains services publics, les services de bâtiment et les dépenses immobilières.
- Convient pour 21 à 65 personnes
- 2 salles de conférence
- Espace de trophée haut de gamme
- Condition des spécification
- Entièrement meublé
- Disposition du plan d’étage ouverte en général
- 20 bureaux privés
- Plafonds finis: 11’ - 16’
- Peut être associé à un ou plusieurs espaces supplémentaires pour obtenir jusqu’à 31 291 pi² d’espace adjacent.
- Stationnement sur place
Super cool small, (1500 sf), urban flex space with operable garage door, skylights, and a single glass office. Dedicated parking within feet of entry with guest parking spots available too.
- Le taux inscrit peut ne pas comprendre certains services publics, les services de bâtiment et les dépenses immobilières.
- Disposition du plan d’étage ouverte en général
- Peut être associé à un ou plusieurs espaces supplémentaires pour obtenir jusqu’à 31 291 pi² d’espace adjacent.
- Comprend 1 519 pi² d’espace de bureau dédié
- Partiellement construit comme Bureau standard
- Convient pour 4 à 13 personnes
- Air central et chauffage
- Le taux inscrit peut ne pas comprendre certains services publics, les services de bâtiment et les dépenses immobilières.
- Peut être associé à un ou plusieurs espaces supplémentaires pour obtenir jusqu’à 31 291 pi² d’espace adjacent.
- Convient pour 22 à 70 personnes
Beautiful, furnished modern creative office. Previously built out and occupied by the the building's developer. Glass offices and conference rooms, upgraded kitchen, customized furniture, and a private rooftop deck. On-Site parking included.
- Le taux inscrit peut ne pas comprendre certains services publics, les services de bâtiment et les dépenses immobilières.
- 19 bureaux privés
- Espace de trophée haut de gamme
- Peut être associé à un ou plusieurs espaces supplémentaires pour obtenir jusqu’à 31 291 pi² d’espace adjacent.
- Salle d’impression/Photocopie
- Salle de bains privée
- Lumière naturelle
- Fully Furnished
- Convient pour 33 à 105 personnes
- Salles de conférence
- Clé en main
- Aire de réception
- Balcon
- Hauts plafonds
- On-Site Parking
- Private Roof Deck
| Espace | Taille | Terme | Taux de location | Utilisation de l’espace | Aménagement | Disponible |
| 1er étage - 100A | 11 588 pi² | Négociable | 47,95 $ CAD/pi²/an 4,00 $ CAD/pi²/mois 555 645 $ CAD/an 46 304 $ CAD/mois | Flex | - | 2026-05-01 |
| 1er étage, ste 100C | 8 015 pi² | Négociable | 52,06 $ CAD/pi²/an 4,34 $ CAD/pi²/mois 417 261 $ CAD/an 34 772 $ CAD/mois | Bureau | selon spécifications | Maintenant |
| 1er étage, ste 100N | 1 519 pi² | Négociable | 52,06 $ CAD/pi²/an 4,34 $ CAD/pi²/mois 79 079 $ CAD/an 6 590 $ CAD/mois | Bureau | construction partielle | Maintenant |
| 1er étage, ste 100W | 8 696 pi² | Négociable | 52,06 $ CAD/pi²/an 4,34 $ CAD/pi²/mois 452 714 $ CAD/an 37 726 $ CAD/mois | Bureau | - | 60 jours |
| 2e étage, ste 200 | 13 061 pi² | Négociable | 54,80 $ CAD/pi²/an 4,57 $ CAD/pi²/mois 715 743 $ CAD/an 59 645 $ CAD/mois | Bureau | construction complète | 60 jours |
1er étage - 100A
| Taille |
| 11 588 pi² |
| Terme |
| Négociable |
| Taux de location |
| 47,95 $ CAD/pi²/an 4,00 $ CAD/pi²/mois 555 645 $ CAD/an 46 304 $ CAD/mois |
| Utilisation de l’espace |
| Flex |
| Aménagement |
| - |
| Disponible |
| 2026-05-01 |
1er étage, ste 100C
| Taille |
| 8 015 pi² |
| Terme |
| Négociable |
| Taux de location |
| 52,06 $ CAD/pi²/an 4,34 $ CAD/pi²/mois 417 261 $ CAD/an 34 772 $ CAD/mois |
| Utilisation de l’espace |
| Bureau |
| Aménagement |
| selon spécifications |
| Disponible |
| Maintenant |
1er étage, ste 100N
| Taille |
| 1 519 pi² |
| Terme |
| Négociable |
| Taux de location |
| 52,06 $ CAD/pi²/an 4,34 $ CAD/pi²/mois 79 079 $ CAD/an 6 590 $ CAD/mois |
| Utilisation de l’espace |
| Bureau |
| Aménagement |
| construction partielle |
| Disponible |
| Maintenant |
1er étage, ste 100W
| Taille |
| 8 696 pi² |
| Terme |
| Négociable |
| Taux de location |
| 52,06 $ CAD/pi²/an 4,34 $ CAD/pi²/mois 452 714 $ CAD/an 37 726 $ CAD/mois |
| Utilisation de l’espace |
| Bureau |
| Aménagement |
| - |
| Disponible |
| 60 jours |
2e étage, ste 200
| Taille |
| 13 061 pi² |
| Terme |
| Négociable |
| Taux de location |
| 54,80 $ CAD/pi²/an 4,57 $ CAD/pi²/mois 715 743 $ CAD/an 59 645 $ CAD/mois |
| Utilisation de l’espace |
| Bureau |
| Aménagement |
| construction complète |
| Disponible |
| 60 jours |
1er étage - 100A
| Taille | 11 588 pi² |
| Terme | Négociable |
| Taux de location | 47,95 $ CAD/pi²/an |
| Utilisation de l’espace | Flex |
| Aménagement | - |
| Disponible | 2026-05-01 |
Integrated flex space with 25 ft ceiling height, oversized drive-in door, wide column bays, and locker rooms with showers. Skylights bring in tons of light throughout a space that could be home to a number of different uses. On-site amenities include parking and a coffee shop.
- Le taux inscrit peut ne pas comprendre certains services publics, les services de bâtiment et les dépenses immobilières.
1er étage, ste 100C
| Taille | 8 015 pi² |
| Terme | Négociable |
| Taux de location | 52,06 $ CAD/pi²/an |
| Utilisation de l’espace | Bureau |
| Aménagement | selon spécifications |
| Disponible | Maintenant |
Newly built out beautiful and furnished space with glass offices, bow truss ceilings, skylights, river views. Parking and a riverwalk are right outside the front door. Tons of light throughout, perfect mix of office and open space.
- Le taux inscrit peut ne pas comprendre certains services publics, les services de bâtiment et les dépenses immobilières.
- Disposition du plan d’étage ouverte en général
- Convient pour 21 à 65 personnes
- 20 bureaux privés
- 2 salles de conférence
- Plafonds finis: 11’ - 16’
- Espace de trophée haut de gamme
- Peut être associé à un ou plusieurs espaces supplémentaires pour obtenir jusqu’à 31 291 pi² d’espace adjacent.
- Condition des spécification
- Stationnement sur place
- Entièrement meublé
1er étage, ste 100N
| Taille | 1 519 pi² |
| Terme | Négociable |
| Taux de location | 52,06 $ CAD/pi²/an |
| Utilisation de l’espace | Bureau |
| Aménagement | construction partielle |
| Disponible | Maintenant |
Super cool small, (1500 sf), urban flex space with operable garage door, skylights, and a single glass office. Dedicated parking within feet of entry with guest parking spots available too.
- Le taux inscrit peut ne pas comprendre certains services publics, les services de bâtiment et les dépenses immobilières.
- Partiellement construit comme Bureau standard
- Disposition du plan d’étage ouverte en général
- Convient pour 4 à 13 personnes
- Peut être associé à un ou plusieurs espaces supplémentaires pour obtenir jusqu’à 31 291 pi² d’espace adjacent.
- Air central et chauffage
- Comprend 1 519 pi² d’espace de bureau dédié
1er étage, ste 100W
| Taille | 8 696 pi² |
| Terme | Négociable |
| Taux de location | 52,06 $ CAD/pi²/an |
| Utilisation de l’espace | Bureau |
| Aménagement | - |
| Disponible | 60 jours |
- Le taux inscrit peut ne pas comprendre certains services publics, les services de bâtiment et les dépenses immobilières.
- Convient pour 22 à 70 personnes
- Peut être associé à un ou plusieurs espaces supplémentaires pour obtenir jusqu’à 31 291 pi² d’espace adjacent.
2e étage, ste 200
| Taille | 13 061 pi² |
| Terme | Négociable |
| Taux de location | 54,80 $ CAD/pi²/an |
| Utilisation de l’espace | Bureau |
| Aménagement | construction complète |
| Disponible | 60 jours |
Beautiful, furnished modern creative office. Previously built out and occupied by the the building's developer. Glass offices and conference rooms, upgraded kitchen, customized furniture, and a private rooftop deck. On-Site parking included.
- Le taux inscrit peut ne pas comprendre certains services publics, les services de bâtiment et les dépenses immobilières.
- Convient pour 33 à 105 personnes
- 19 bureaux privés
- Salles de conférence
- Espace de trophée haut de gamme
- Clé en main
- Peut être associé à un ou plusieurs espaces supplémentaires pour obtenir jusqu’à 31 291 pi² d’espace adjacent.
- Aire de réception
- Salle d’impression/Photocopie
- Balcon
- Salle de bains privée
- Hauts plafonds
- Lumière naturelle
- On-Site Parking
- Fully Furnished
- Private Roof Deck
Aperçu de la propriété
1200 North Branch est un projet de création de 55 000 pi2 hautement amélioré sur un site de 3,5 acres sur la branche nord de la Rivière Chicago. La propriété est située sur l'île Goose, à Chicago, à l'intersection des rues North Branch et Division, adjacentes au pont de la rue Division, le long du front de la rivière Chicago.
- Restaurant
- Affichage
- Puits de lumière
- Accessible aux fauteuils roulants
- Bureaux partitionnés
- Climatisation
- Détecteur de fumée
Faits sur la propriété
Sélectionner des locataires
- Étage
- Nom du locataire
- Secteur
- 1ᵉʳ
- Azumo
- Fabrication
- 1ᵉʳ
- Circle Logistics
- Transport et entreposage
- 1ᵉʳ
- Passion House Coffee
- Hébergement et services alimentaires
Présenté par
1200 N Branch St
Hmm, il semble y avoir eu une erreur lors de l’envoi de votre message. Veuillez réessayer.
Merci! Votre message a été envoyé.


















