Se Connecter/S’inscrire
Votre courriel a été envoyé.
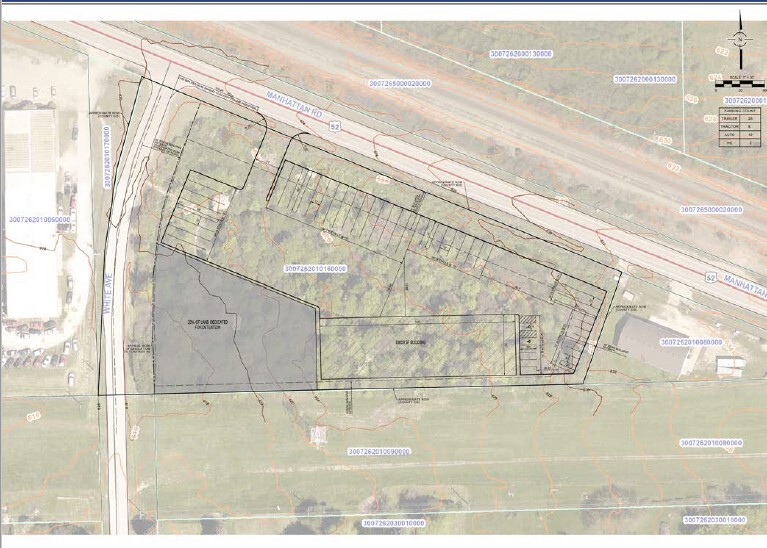
1209 Manhattan Rd - Joliet 3.37 Acres, Zoned I-2 Lot • Terrain industriel • 3,37 Acres • 1 202 014 $ CAD • Joliet, IL 60433

Certaines informations ont été traduites automatiquement.
Faits sur la propriété
1 Lot disponible
Lot
| Prix | 1 202 014 $ CAD | Taille du lot | 3,37 AC |
| Prix par AC | 356 680,62 $ CAD |
| Prix | 1 202 014 $ CAD |
| Prix par AC | 356 680,62 $ CAD |
| Taille du lot | 3,37 AC |
• 3.37 Acres • Zoned I-2 • Unincorporated Will County • Direct Frontage on US Route 52 • Minutes to Joliet and Elwood Intermodal • Direct Access to Full Interchanges at Briggs/I-80 and Rte 53/I-80 • Limited product type in the market
Description
• 3.37 Acres • Zoned I-2 • Unincorporated Will County • Direct Frontage on US Route 52 • Minutes to Joliet and Elwood Intermodal • Direct Access to Full Interchanges at Briggs/I-80 and Rte 53/I-80
1 1
Plutôt practicable à pied
20/100
Exceptionnellement facile d'accès en voiture
100/100
Assez praticable en vélo
30/100
1 de 2
Vidéos
Visite extérieure 3D Matterport
Visite 3D Matterport
Photos
Vue depuis la rue
Rue
Carte
1 de 1
Présenté par
1209 Manhattan Rd - Joliet 3.37 Acres, Zoned I-2
Vous êtes déjà membre? Connectez-vous
Hmm, il semble y avoir eu une erreur lors de l’envoi de votre message. Veuillez réessayer.
Merci! Votre message a été envoyé.
