Se Connecter/S’inscrire
Votre courriel a été envoyé.
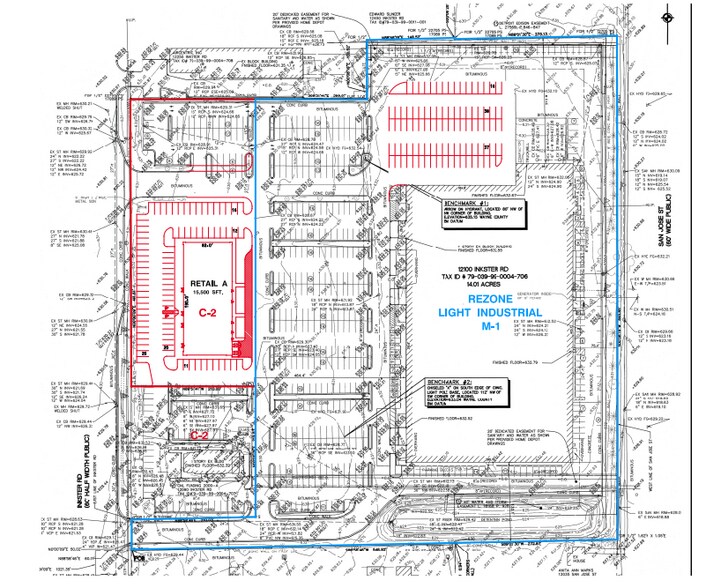
Proposed Outlots - Redford 12100 Inkster Rd Terrain à louer de 1,85 acres • Terrain commercial • Redford Township, MI 48239



Certaines informations ont été traduites automatiquement.
Faits saillants
- Possibilité de BTS
LOT Disponible
Afficher les taux de location en
| Taux de location |
|
Taille du lot | 1,85 AC |
| Durée du bail | Négociable |
| Taux de location | |
| Durée du bail | Négociable |
| Taille du lot | 1,85 AC |
1.85 acre outparcel located on the east side of Inkster Road between I-96 and Plymouth Roads. Zoned C2 permitting medical, office and retail. 318,997 people within a 5 mile radius. Can build up to 15,000 SF. The site sees over 33,000 VPD (Placer AI traffic data).
Aperçu de la propriété
Parcelle de 1,85 acre
Faits sur la propriété
Assez practicable à pied
50/100
Exceptionnellement facile d'accès en voiture
100/100
Transports en commun limités
30/100
Moyennement praticable en vélo
60/100
1 de 4
Vidéos
Visite extérieure 3D Matterport
Visite 3D Matterport
Photos
Vue depuis la rue
Rue
Carte
Présenté par
Proposed Outlots - Redford | 12100 Inkster Rd
Vous êtes déjà membre? Connectez-vous
Hmm, il semble y avoir eu une erreur lors de l’envoi de votre message. Veuillez réessayer.
Merci! Votre message a été envoyé.

