Votre courriel a été envoyé.
12117 BENNINGTON AVE 12117 Bennington Ave 3 415–84 106 pi² d'espace disponible • Cleveland, OH 44135



Certaines informations ont été traduites automatiquement.
Caractéristiques
Tous les espaces disponibles(4)
Afficher les taux de location en
- Espace
- Taille
- Terme
- Taux de location
- Utilisation de l’espace
- Aménagement
- Disponible
This property offers 84,106 SF of divisible space, including 5,281 SF of office area, with clear heights ranging from 15' to 18.5'. Four (4) 9'x10' docks and three (3) drive-in doors measuring 12'x14', 13'x13', and 14'x14'. Lighting includes LED and fluorescent. The building is equipped with an OHD gas/Co-Ray Vac heating system, 800A/480V/3-phase power, and a 3-ton crane. Lease rate: $5.15/SF NNN with estimated NNN costs of $0.50/SF. Below-market operating expenses.
- Le taux de location ne comprend pas les services publics, les services de bâtiment ou les dépenses immobilières.
- 2 accès plain-pied
- Comprend 2 850 pi² d’espace de bureau dédié
- Peut être associé à un ou plusieurs espaces supplémentaires pour obtenir jusqu’à 84 106 pi² d’espace adjacent.
This property offers 84,106 SF of divisible space, including 5,281 SF of office area, with clear heights ranging from 15' to 18.5'. Four (4) 9'x10' docks and three (3) drive-in doors measuring 12'x14', 13'x13', and 14'x14'. Lighting includes LED and fluorescent. The building is equipped with an OHD gas/Co-Ray Vac heating system, 800A/480V/3-phase power, and a 3-ton crane. Lease rate: $5.15/SF NNN with estimated NNN costs of $0.50/SF. Below-market operating expenses.
- Le taux de location ne comprend pas les services publics, les services de bâtiment ou les dépenses immobilières.
- 1 quai de chargement
- Peut être associé à un ou plusieurs espaces supplémentaires pour obtenir jusqu’à 84 106 pi² d’espace adjacent.
This property offers 84,106 SF of divisible space, including 5,281 SF of office area, with clear heights ranging from 15' to 18.5'. Four (4) 9'x10' docks and three (3) drive-in doors measuring 12'x14', 13'x13', and 14'x14'. Lighting includes LED and fluorescent. The building is equipped with an OHD gas/Co-Ray Vac heating system, 800A/480V/3-phase power, and a 3-ton crane. Lease rate: $5.15/SF NNN with estimated NNN costs of $0.50/SF. Below-market operating expenses.
- Le taux de location ne comprend pas les services publics, les services de bâtiment ou les dépenses immobilières.
- Peut être associé à un ou plusieurs espaces supplémentaires pour obtenir jusqu’à 84 106 pi² d’espace adjacent.
- 1 accès plain-pied
- 3 quais de chargement
This property offers 84,106 SF of divisible space, including 5,281 SF of office area, with clear heights ranging from 15' to 18.5'. Four (4) 9'x10' docks and three (3) drive-in doors measuring 12'x14', 13'x13', and 14'x14'. Lighting includes LED and fluorescent. The building is equipped with an OHD gas/Co-Ray Vac heating system, 800A/480V/3-phase power, and a 3-ton crane. Lease rate: $5.15/SF NNN with estimated NNN costs of $0.50/SF. Below-market operating expenses.
- Le taux de location ne comprend pas les services publics, les services de bâtiment ou les dépenses immobilières.
- Peut être associé à un ou plusieurs espaces supplémentaires pour obtenir jusqu’à 84 106 pi² d’espace adjacent.
| Espace | Taille | Terme | Taux de location | Utilisation de l’espace | Aménagement | Disponible |
| 1er étage - 1 | 49 116 pi² | Négociable | 7,04 $ CAD/pi²/an 0,59 $ CAD/pi²/mois 345 931 $ CAD/an 28 828 $ CAD/mois | Industriel | - | Maintenant |
| 1er étage - 2 | 11 425 pi² | Négociable | 7,04 $ CAD/pi²/an 0,59 $ CAD/pi²/mois 80 468 $ CAD/an 6 706 $ CAD/mois | Industriel | - | Maintenant |
| 1er étage - 5 | 20 150 pi² | Négociable | 7,04 $ CAD/pi²/an 0,59 $ CAD/pi²/mois 141 919 $ CAD/an 11 827 $ CAD/mois | Industriel | - | Maintenant |
| 2e étage | 3 415 pi² | Négociable | 7,04 $ CAD/pi²/an 0,59 $ CAD/pi²/mois 24 052 $ CAD/an 2 004 $ CAD/mois | Bureau | - | Maintenant |
1er étage - 1
| Taille |
| 49 116 pi² |
| Terme |
| Négociable |
| Taux de location |
| 7,04 $ CAD/pi²/an 0,59 $ CAD/pi²/mois 345 931 $ CAD/an 28 828 $ CAD/mois |
| Utilisation de l’espace |
| Industriel |
| Aménagement |
| - |
| Disponible |
| Maintenant |
1er étage - 2
| Taille |
| 11 425 pi² |
| Terme |
| Négociable |
| Taux de location |
| 7,04 $ CAD/pi²/an 0,59 $ CAD/pi²/mois 80 468 $ CAD/an 6 706 $ CAD/mois |
| Utilisation de l’espace |
| Industriel |
| Aménagement |
| - |
| Disponible |
| Maintenant |
1er étage - 5
| Taille |
| 20 150 pi² |
| Terme |
| Négociable |
| Taux de location |
| 7,04 $ CAD/pi²/an 0,59 $ CAD/pi²/mois 141 919 $ CAD/an 11 827 $ CAD/mois |
| Utilisation de l’espace |
| Industriel |
| Aménagement |
| - |
| Disponible |
| Maintenant |
2e étage
| Taille |
| 3 415 pi² |
| Terme |
| Négociable |
| Taux de location |
| 7,04 $ CAD/pi²/an 0,59 $ CAD/pi²/mois 24 052 $ CAD/an 2 004 $ CAD/mois |
| Utilisation de l’espace |
| Bureau |
| Aménagement |
| - |
| Disponible |
| Maintenant |
1er étage - 1
| Taille | 49 116 pi² |
| Terme | Négociable |
| Taux de location | 7,04 $ CAD/pi²/an |
| Utilisation de l’espace | Industriel |
| Aménagement | - |
| Disponible | Maintenant |
This property offers 84,106 SF of divisible space, including 5,281 SF of office area, with clear heights ranging from 15' to 18.5'. Four (4) 9'x10' docks and three (3) drive-in doors measuring 12'x14', 13'x13', and 14'x14'. Lighting includes LED and fluorescent. The building is equipped with an OHD gas/Co-Ray Vac heating system, 800A/480V/3-phase power, and a 3-ton crane. Lease rate: $5.15/SF NNN with estimated NNN costs of $0.50/SF. Below-market operating expenses.
- Le taux de location ne comprend pas les services publics, les services de bâtiment ou les dépenses immobilières.
- Comprend 2 850 pi² d’espace de bureau dédié
- 2 accès plain-pied
- Peut être associé à un ou plusieurs espaces supplémentaires pour obtenir jusqu’à 84 106 pi² d’espace adjacent.
1er étage - 2
| Taille | 11 425 pi² |
| Terme | Négociable |
| Taux de location | 7,04 $ CAD/pi²/an |
| Utilisation de l’espace | Industriel |
| Aménagement | - |
| Disponible | Maintenant |
This property offers 84,106 SF of divisible space, including 5,281 SF of office area, with clear heights ranging from 15' to 18.5'. Four (4) 9'x10' docks and three (3) drive-in doors measuring 12'x14', 13'x13', and 14'x14'. Lighting includes LED and fluorescent. The building is equipped with an OHD gas/Co-Ray Vac heating system, 800A/480V/3-phase power, and a 3-ton crane. Lease rate: $5.15/SF NNN with estimated NNN costs of $0.50/SF. Below-market operating expenses.
- Le taux de location ne comprend pas les services publics, les services de bâtiment ou les dépenses immobilières.
- Peut être associé à un ou plusieurs espaces supplémentaires pour obtenir jusqu’à 84 106 pi² d’espace adjacent.
- 1 quai de chargement
1er étage - 5
| Taille | 20 150 pi² |
| Terme | Négociable |
| Taux de location | 7,04 $ CAD/pi²/an |
| Utilisation de l’espace | Industriel |
| Aménagement | - |
| Disponible | Maintenant |
This property offers 84,106 SF of divisible space, including 5,281 SF of office area, with clear heights ranging from 15' to 18.5'. Four (4) 9'x10' docks and three (3) drive-in doors measuring 12'x14', 13'x13', and 14'x14'. Lighting includes LED and fluorescent. The building is equipped with an OHD gas/Co-Ray Vac heating system, 800A/480V/3-phase power, and a 3-ton crane. Lease rate: $5.15/SF NNN with estimated NNN costs of $0.50/SF. Below-market operating expenses.
- Le taux de location ne comprend pas les services publics, les services de bâtiment ou les dépenses immobilières.
- 1 accès plain-pied
- Peut être associé à un ou plusieurs espaces supplémentaires pour obtenir jusqu’à 84 106 pi² d’espace adjacent.
- 3 quais de chargement
2e étage
| Taille | 3 415 pi² |
| Terme | Négociable |
| Taux de location | 7,04 $ CAD/pi²/an |
| Utilisation de l’espace | Bureau |
| Aménagement | - |
| Disponible | Maintenant |
This property offers 84,106 SF of divisible space, including 5,281 SF of office area, with clear heights ranging from 15' to 18.5'. Four (4) 9'x10' docks and three (3) drive-in doors measuring 12'x14', 13'x13', and 14'x14'. Lighting includes LED and fluorescent. The building is equipped with an OHD gas/Co-Ray Vac heating system, 800A/480V/3-phase power, and a 3-ton crane. Lease rate: $5.15/SF NNN with estimated NNN costs of $0.50/SF. Below-market operating expenses.
- Le taux de location ne comprend pas les services publics, les services de bâtiment ou les dépenses immobilières.
- Peut être associé à un ou plusieurs espaces supplémentaires pour obtenir jusqu’à 84 106 pi² d’espace adjacent.
Aperçu de la propriété
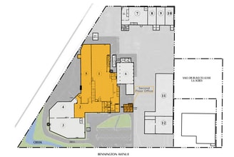
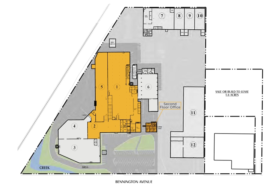
Le 12117 Bennington Avenue est situé sur 12,3 acres dans le sud-ouest du comté de Cuyahoga. Le complexe total comprend trois structures. Le bâtiment manufacturier disponible totalise 127 278 pi2, avec de multiples agrandissements en 1946, 1947, 1952, 1970 et 1980. La propriété offre 15'-34' clair, 4 quais, 2 portes d'entraînement disponibles, puissance lourde avec conduit d'autobus, distribution, compagnies aériennes. Le bâtiment est desservi par un (1) transformateur de 500 kVA et un (1) transformateur monté sur tampon de 2000 KVA et deux autres alimentations distinctes (400A 480V 3P et 200A 220V 3P). À l'heure actuelle, trois unités sont disponibles. L'unité 3 totalise 13 866 SF avec (2) deux quais. L'unité 4 totalise 13 415 SF avec (1) un quai. L'unité 6 totalise 15 850 pi2, dont 1 500 pi2 de bureau et 14 350 pi2 d'espace d'entreposage, 2) quais et 1) un lecteur dans la porte. À l'extérieur de la 130e rue Ouest. Cette propriété est située au centre et offre un accès facile aux principales interétats-unis, aux transports en commun et à une main-d'œuvre qualifiée.
Faits sur l’installation fabrication
Présenté par
12117 BENNINGTON AVE | 12117 Bennington Ave
Hmm, il semble y avoir eu une erreur lors de l’envoi de votre message. Veuillez réessayer.
Merci! Votre message a été envoyé.


