Votre courriel a été envoyé.
Certaines informations ont été traduites automatiquement.
TOUS LES ESPACES DISPONIBLES(1)
Afficher les taux de location en
- ESPACE
- TAILLE
- TERME
- TAUX DE LOCATION
- UTILISATION DE L’ESPACE
- ÉTAT
- DISPONIBLE
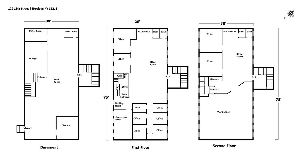
Flex space for lease 18th Street Brooklyn, many uses possible: Office, manufacturing, industrial, distribution, storage, workshop, etc. Space is divisible, three story building 8,550 sqft total, 2,850 sqft per floor (Dimensions: 38'x75' each level), M1-2D zoning. Features include: Full sprinkler system, conference rooms, multiple offices, restrooms on each level, high ceilings, surveillance system, hvac system throughout and plenty of natural light. The entire building can be leased or each level leased individually or partially. All proposals welcome. Great location two blocks to Prospect avenue R train and all major streets/highways.
- Espace en excellent état
- Bureaux partitionnés
- Salle d’impression/Photocopie
- Vidéosurveillance
- Salles de conférence
- Air central et chauffage
- Salle de bains privée
- Système de sécurité
- Hauts plafonds
| Espace | Taille | Terme | Taux de location | Utilisation de l’espace | État | Disponible |
| 1er étage | 1 000 à 8 300 pi² | Négociable | Sur demande Sur demande Sur demande Sur demande | Flex | construction complète | Maintenant |
1er étage
| Taille |
| 1 000 à 8 300 pi² |
| Terme |
| Négociable |
| Taux de location |
| Sur demande Sur demande Sur demande Sur demande |
| Utilisation de l’espace |
| Flex |
| État |
| construction complète |
| Disponible |
| Maintenant |
1er étage
| Taille | 1 000 à 8 300 pi² |
| Terme | Négociable |
| Taux de location | Sur demande |
| Utilisation de l’espace | Flex |
| État | construction complète |
| Disponible | Maintenant |
Flex space for lease 18th Street Brooklyn, many uses possible: Office, manufacturing, industrial, distribution, storage, workshop, etc. Space is divisible, three story building 8,550 sqft total, 2,850 sqft per floor (Dimensions: 38'x75' each level), M1-2D zoning. Features include: Full sprinkler system, conference rooms, multiple offices, restrooms on each level, high ceilings, surveillance system, hvac system throughout and plenty of natural light. The entire building can be leased or each level leased individually or partially. All proposals welcome. Great location two blocks to Prospect avenue R train and all major streets/highways.
- Espace en excellent état
- Air central et chauffage
- Bureaux partitionnés
- Salle de bains privée
- Salle d’impression/Photocopie
- Système de sécurité
- Vidéosurveillance
- Hauts plafonds
- Salles de conférence
APERÇU DE LA PROPRIÉTÉ
Flex space for lease 18th Street Brooklyn, many uses possible: Office, manufacturing, industrial, distribution, storage, workshop, etc. Space is divisible, three story building 8,550 sqft total, 2,850 sqft per floor (Dimensions: 38'x75' each level), M1-2D zoning. Features include: Full sprinkler system, conference rooms, multiple offices, restrooms on each level, high ceilings, surveillance system, hvac system throughout and plenty of natural light. The entire building can be leased or each level leased individually or partially. All proposals welcome. Great location two blocks to Prospect avenue R train and all major streets/highways.
FAITS SUR L’INSTALLATION ENTREPÔT
SÉLECTIONNER DES LOCATAIRES
- NOM DU LOCATAIRE
- SECTEUR
- Suneris Inc
- Services professionnels, scientifiques et techniques
Présenté par
122-126 18th St
Hmm, il semble y avoir eu une erreur lors de l’envoi de votre message. Veuillez réessayer.
Merci! Votre message a été envoyé.






