Votre courriel a été envoyé.
Certaines informations ont été traduites automatiquement.
LOT Disponible
Afficher les taux de location en
| Taux de location |
|
Taille du lot | 0,18 AC |
| Durée du bail | Négociable |
| Taux de location | |
| Durée du bail | Négociable |
| Taille du lot | 0,18 AC |
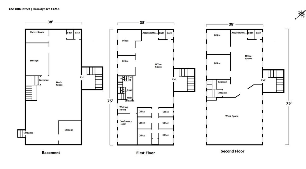
Park Slope/Gowanus Section of Brooklyn, New York 11215 VACANT LOT (8,200 sqft) + 3-STORY BUILDING (8,550 sqft) + BILLBOARD on 3rd Ave/18th Street Brooklyn - Corner Vacant Lot situated on a main street/3rd Avenue. High traffic/busy street. Zoned M1-2D. Lot is visible from the highway(I-278) Brooklyn Queens/Gowanus Expressway (BQE). Two blocks to the Prospect Ave 'R' subway/train station. Building and vacant lot are divisible. Building details: Flex space, many uses possible: Office, educational, manufacturing, creative, art space, industrial, distribution, storage, workshop, etc. Space is divisible, three story building 8,550 sqft total, 2,850 sqft per floor (Dimensions: 38'x75' each level), M1-2D zoning. Features include: Full sprinkler system, conference rooms, multiple offices, restrooms on each level, high ceilings, surveillance system, hvac system throughout and plenty of natural light. The entire building can be leased or each level leased individually. Additionally billboard on property can be possibly be used to advertise your business. Billboard has wide reach, with great visibility. Vacant Lot details, many uses possible: Car Wash, Tool Rental, Truck or Heavy Equipment Rental, Hotel, Industrial, Manufacturing, Car Dealership, Community Facility, Entertainment. All proposals considered. Great location two blocks to Prospect avenue R train and all major streets/highways. Neighbors Include: Kamco Building Supply, Home Depot, Harbor Freight Tools, Jetro, Restaurant Depot, Lowes, Autozone, Numerous Collision & Autoglass Shops, Clean Rite Laundromat, Sunset Industrial Park, Bush Terminal, Industry City, Fedex.
Aperçu de la propriété
Park Slope/Gowanus Section of Brooklyn, New York 11215 VACANT LOT (8,200 sqft) + 3-STORY BUILDING (8,550 sqft) + BILLBOARD on 3rd Ave/18th Street Brooklyn - Corner Vacant Lot situated on a main street/3rd Avenue. High traffic/busy street. Zoned M1-2D. Lot is visible from the highway(I-278) Brooklyn Queens/Gowanus Expressway (BQE). Two blocks to the Prospect Ave 'R' subway/train station. Building and vacant lot are divisible. Building details: Flex space, many uses possible: Office, educational, manufacturing, creative, art space, industrial, distribution, storage, workshop, etc. Space is divisible, three story building 8,550 sqft total, 2,850 sqft per floor (Dimensions: 38'x75' each level), M1-2D zoning. Features include: Full sprinkler system, conference rooms, multiple offices, restrooms on each level, high ceilings, surveillance system, hvac system throughout and plenty of natural light. The entire building can be leased or each level leased individually. Additionally billboard on property can be possibly be used to advertise your business. Billboard has wide reach, with great visibility. Vacant Lot details, many uses possible: Car Wash, Tool Rental, Truck or Heavy Equipment Rental, Hotel, Industrial, Manufacturing, Car Dealership, Community Facility, Entertainment. All proposals considered. Great location two blocks to Prospect avenue R train and all major streets/highways. Neighbors Include: Kamco Building Supply, Home Depot, Harbor Freight Tools, Jetro, Restaurant Depot, Lowes, Autozone, Numerous Collision & Autoglass Shops, Clean Rite Laundromat, Sunset Industrial Park, Bush Terminal, Industry City, Fedex.
Faits sur la propriété
| Superficie totale disponible | 0,18 AC | Sous-type de propriété | Terrain commercial |
| Type de propriété | Terrain |
| Superficie totale disponible | 0,18 AC |
| Type de propriété | Terrain |
| Sous-type de propriété | Terrain commercial |
Présenté par
122 18th St
Hmm, il semble y avoir eu une erreur lors de l’envoi de votre message. Veuillez réessayer.
Merci! Votre message a été envoyé.



