Se Connecter/S’inscrire
Votre courriel a été envoyé.
122 Sun Pac Blvd 13 908 pi² 100% Loué Industriel Immeuble Brampton, ON L6S 5Z8 7 100 000 $ CAD (510,50 $ CAD/pi²)



Certaines informations ont été traduites automatiquement.
FAITS SAILLANTS DE L'INVESTISSEMENT
- La propriété est bien située dans une zone industrielle au nord-est de Brampton.
- La zone d'entrepôt est climatisée.
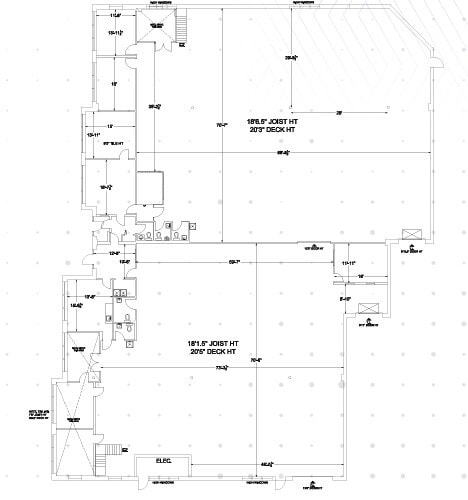
- Bâtiment autonome bien entretenu avec potentiel de division en deux unités distinctes.
- Rapports d'évaluation de l'état du bâtiment et d'évaluation environnementale de phase 1 disponibles
RÉSUMÉ DE L'ANNONCE
La propriété est idéalement située dans une zone industrielle au nord-est de Brampton. L'emplacement offre un excellent accès au réseau autoroutier principal via les autoroutes 407 et 427, facilitant les trajets pour les bassins de main-d'œuvre provenant de l'ouest, de l'est et du nord de la région du Grand Toronto (GTA). Bâtiment autonome bien entretenu avec possibilité de diviser en deux unités distinctes. La zone d'entrepôt est climatisée. Rapports d'évaluation de l'état du bâtiment et d'évaluation environnementale de phase 1 disponibles.
FAITS SUR LA PROPRIÉTÉ
| Prix | 7 100 000 $ CAD | Aire du bâtiment louable | 13 908 pi² |
| Prix par pi² | 510,50 $ CAD | Nombre d’étages | 1 |
| Type de vente | Investissement ou propriétaire utilisateur | Année de construction | 1990 |
| Type de propriété | Industriel | Ratio de stationnement | 1,08/1 000 pi² |
| Sous-type de propriété | Entrepôt | Effacer hauteur du plafond | 18’ |
| Classe d’immeuble | C | Nbre de quais à portes élevées/de chargement | 2 |
| Taille du lot | 0,98 AC | Nbre d’entrées dans les portes/au niveau du sol | 1 |
| Zonage | M3 - 1561 | ||
| Prix | 7 100 000 $ CAD |
| Prix par pi² | 510,50 $ CAD |
| Type de vente | Investissement ou propriétaire utilisateur |
| Type de propriété | Industriel |
| Sous-type de propriété | Entrepôt |
| Classe d’immeuble | C |
| Taille du lot | 0,98 AC |
| Aire du bâtiment louable | 13 908 pi² |
| Nombre d’étages | 1 |
| Année de construction | 1990 |
| Ratio de stationnement | 1,08/1 000 pi² |
| Effacer hauteur du plafond | 18’ |
| Nbre de quais à portes élevées/de chargement | 2 |
| Nbre d’entrées dans les portes/au niveau du sol | 1 |
| Zonage | M3 - 1561 |
COMMODITÉS
- Affichage
SERVICES PUBLICS
- Eau - Ville
1 1
1 de 4
VIDÉOS
VISITE EXTÉRIEURE 3D MATTERPORT
VISITE 3D MATTERPORT
PHOTOS
VUE DEPUIS LA RUE
RUE
CARTE
1 de 1
Présenté par
122 Sun Pac Blvd
Vous êtes déjà membre? Connectez-vous
Hmm, il semble y avoir eu une erreur lors de l’envoi de votre message. Veuillez réessayer.
Merci! Votre message a été envoyé.
