Votre courriel a été envoyé.
Certaines informations ont été traduites automatiquement.
Faits saillants
- Puissance lourde - 2 000 ampères, salles de données avec 180 tonnes de refroidisseurs et unités CRAH en place, 9 fournisseurs de fibre optique, stationnement lourd
- Reliable power with redundancy from multiple substations.
- 9+ Fiber providers available in the building.
- Suite 160: Heavy power - dedicated 2,000 amps, 450KW Cummins Generator, data hall with 180 tons of cooling and CRAH units in place.
- Heavy parking available. Collins has a DART bus stop located onsite and is a 5 Min walk to the DART Arapaho Center Station.
Tous les espaces disponibles(3)
Afficher les taux de location en
- Espace
- Taille
- Terme
- Taux de location
- Utilisation de l’espace
- Aménagement
- Disponible
Office space for lease featuring many amenities and parking for tenants.
- Le taux de location ne comprend pas les services publics, les services de bâtiment ou les dépenses immobilières.
- Disposition du plan d’étage ouverte en général
- Bureaux partitionnés
- Plafonds finis: 15’ - 26’
- Clé en main
- Climatisation centrale
- Salle d’impression/Photocopie
- Hauts plafonds
- Éclairage encastré
- CVCA disponible après les heures de travail
- Atrium
- Accessible aux fauteuils roulants
- Entièrement construit comme Espace de recherche et développement
- Convient pour 157 à 500 personnes
- Salles de conférence
- Espace de trophée haut de gamme
- Peut être associé à un ou plusieurs espaces supplémentaires pour obtenir jusqu’à 115 002 pi² d’espace adjacent.
- Aire de réception
- Salle de bains privée
- Plafond exposé
- Lumière naturelle
- Éclairage accentué
- Plan ouvert
Office space for lease featuring many amenities and parking for tenants.
- Le taux de location ne comprend pas les services publics, les services de bâtiment ou les dépenses immobilières.
- Disposition du plan d’étage ouverte en général
- Bureaux partitionnés
- Plafonds finis: 15’ - 26’
- Clé en main
- Climatisation centrale
- Salle d’impression/Photocopie
- Hauts plafonds
- Éclairage encastré
- CVCA disponible après les heures de travail
- Atrium
- Accessible aux fauteuils roulants
- Entièrement construit comme Espace de recherche et développement
- Convient pour 39 à 125 personnes
- Salles de conférence
- Espace de trophée haut de gamme
- Peut être associé à un ou plusieurs espaces supplémentaires pour obtenir jusqu’à 115 002 pi² d’espace adjacent.
- Aire de réception
- Salle de bains privée
- Plafond exposé
- Lumière naturelle
- Éclairage accentué
- Plan ouvert
Virtual Tour: https://canvas360tours.com/1225Alma/ Power: - 2,000 Amp Main Switch - 450KW Cummins Generator - 800 Amp Transfer Switch - 100 Amp Transfer Switch - 180 KVA UPS - 6 Starline Bus 100 Amp (208/120V each)
- Le taux de location ne comprend pas les services publics, les services de bâtiment ou les dépenses immobilières.
- Peut être associé à un ou plusieurs espaces supplémentaires pour obtenir jusqu’à 115 002 pi² d’espace adjacent.
- Convient pour 93 à 296 personnes
- 1 369 139 résidents dans un rayon de 10 milles
- À 0,26 milles de North Central Expressway
- Espace de trophée haut de gamme
- Disposition du plan d’étage ouverte en général
- Plafonds finis: 10’ - 26’
- 2 555 entreprises dans un rayon de 1 mille
| Espace | Taille | Terme | Taux de location | Utilisation de l’espace | Aménagement | Disponible |
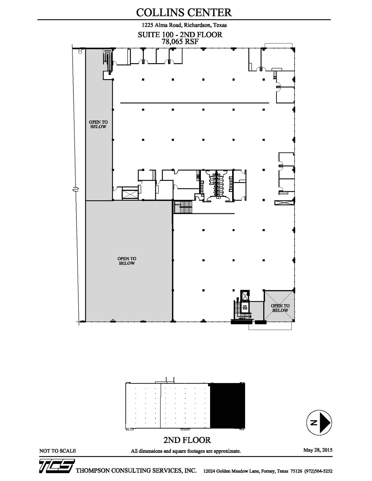
| 1er étage, ste 100 | 62 500 pi² | Négociable | Sur demande Sur demande Sur demande Sur demande | Bureau | construction complète | Maintenant |
| 1er étage, ste 155 | 15 565 pi² | Négociable | Sur demande Sur demande Sur demande Sur demande | Bureau | construction complète | Maintenant |
| 1er étage - 160 | 36 937 pi² | Négociable | Sur demande Sur demande Sur demande Sur demande | Flex | construction complète | 2026-06-01 |
1er étage, ste 100
| Taille |
| 62 500 pi² |
| Terme |
| Négociable |
| Taux de location |
| Sur demande Sur demande Sur demande Sur demande |
| Utilisation de l’espace |
| Bureau |
| Aménagement |
| construction complète |
| Disponible |
| Maintenant |
1er étage, ste 155
| Taille |
| 15 565 pi² |
| Terme |
| Négociable |
| Taux de location |
| Sur demande Sur demande Sur demande Sur demande |
| Utilisation de l’espace |
| Bureau |
| Aménagement |
| construction complète |
| Disponible |
| Maintenant |
1er étage - 160
| Taille |
| 36 937 pi² |
| Terme |
| Négociable |
| Taux de location |
| Sur demande Sur demande Sur demande Sur demande |
| Utilisation de l’espace |
| Flex |
| Aménagement |
| construction complète |
| Disponible |
| 2026-06-01 |
1er étage, ste 100
| Taille | 62 500 pi² |
| Terme | Négociable |
| Taux de location | Sur demande |
| Utilisation de l’espace | Bureau |
| Aménagement | construction complète |
| Disponible | Maintenant |
Office space for lease featuring many amenities and parking for tenants.
- Le taux de location ne comprend pas les services publics, les services de bâtiment ou les dépenses immobilières.
- Entièrement construit comme Espace de recherche et développement
- Disposition du plan d’étage ouverte en général
- Convient pour 157 à 500 personnes
- Bureaux partitionnés
- Salles de conférence
- Plafonds finis: 15’ - 26’
- Espace de trophée haut de gamme
- Clé en main
- Peut être associé à un ou plusieurs espaces supplémentaires pour obtenir jusqu’à 115 002 pi² d’espace adjacent.
- Climatisation centrale
- Aire de réception
- Salle d’impression/Photocopie
- Salle de bains privée
- Hauts plafonds
- Plafond exposé
- Éclairage encastré
- Lumière naturelle
- CVCA disponible après les heures de travail
- Éclairage accentué
- Atrium
- Plan ouvert
- Accessible aux fauteuils roulants
1er étage, ste 155
| Taille | 15 565 pi² |
| Terme | Négociable |
| Taux de location | Sur demande |
| Utilisation de l’espace | Bureau |
| Aménagement | construction complète |
| Disponible | Maintenant |
Office space for lease featuring many amenities and parking for tenants.
- Le taux de location ne comprend pas les services publics, les services de bâtiment ou les dépenses immobilières.
- Entièrement construit comme Espace de recherche et développement
- Disposition du plan d’étage ouverte en général
- Convient pour 39 à 125 personnes
- Bureaux partitionnés
- Salles de conférence
- Plafonds finis: 15’ - 26’
- Espace de trophée haut de gamme
- Clé en main
- Peut être associé à un ou plusieurs espaces supplémentaires pour obtenir jusqu’à 115 002 pi² d’espace adjacent.
- Climatisation centrale
- Aire de réception
- Salle d’impression/Photocopie
- Salle de bains privée
- Hauts plafonds
- Plafond exposé
- Éclairage encastré
- Lumière naturelle
- CVCA disponible après les heures de travail
- Éclairage accentué
- Atrium
- Plan ouvert
- Accessible aux fauteuils roulants
1er étage - 160
| Taille | 36 937 pi² |
| Terme | Négociable |
| Taux de location | Sur demande |
| Utilisation de l’espace | Flex |
| Aménagement | construction complète |
| Disponible | 2026-06-01 |
Virtual Tour: https://canvas360tours.com/1225Alma/ Power: - 2,000 Amp Main Switch - 450KW Cummins Generator - 800 Amp Transfer Switch - 100 Amp Transfer Switch - 180 KVA UPS - 6 Starline Bus 100 Amp (208/120V each)
- Le taux de location ne comprend pas les services publics, les services de bâtiment ou les dépenses immobilières.
- Espace de trophée haut de gamme
- Peut être associé à un ou plusieurs espaces supplémentaires pour obtenir jusqu’à 115 002 pi² d’espace adjacent.
- Disposition du plan d’étage ouverte en général
- Convient pour 93 à 296 personnes
- Plafonds finis: 10’ - 26’
- 1 369 139 résidents dans un rayon de 10 milles
- 2 555 entreprises dans un rayon de 1 mille
- À 0,26 milles de North Central Expressway
Aperçu de la propriété
Visite 3D : https://canvas360tours.com/1225Alma/
- Accès 24 heures
- Bio-tech/Laboratoire
- Accès contrôlé
- Système de sécurité
- Affichage
- Accessible aux fauteuils roulants
- Réception
- Sièges extérieurs
- Climatisation
- Internet par fibre optique
- Détecteur de fumée
- Alimentation de secours/Génératrices auxiliaires
Faits sur la propriété
Sélectionner des locataires
- Étage
- Nom du locataire
- Secteur
- 1ᵉʳ
- Infinera
- Information
Présenté par
Collins Center | 1225 Alma Rd
Hmm, il semble y avoir eu une erreur lors de l’envoi de votre message. Veuillez réessayer.
Merci! Votre message a été envoyé.













