Se Connecter/S’inscrire
Votre courriel a été envoyé.
1226 Heights Blvd 3 777 pi² 100% Loué Bureau Immeuble Houston, TX 77008 2 275 697 $ CAD (602,51 $ CAD/pi²)



Certaines informations ont été traduites automatiquement.
FAITS SAILLANTS DE L'INVESTISSEMENT
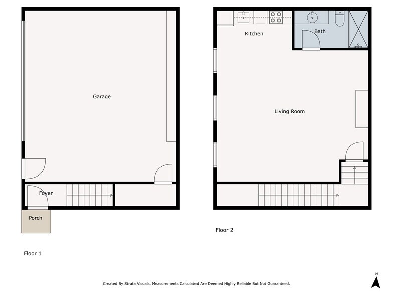
- Spectacular 4 bed/4.5 bath home + garage apartment over an oversized 2 car garage. 7,500 sf lot! (per HCAD) Fenced yard with extra driveway parking.
RÉSUMÉ DE L'ANNONCE
Front Property (house) is 3,777 sf. Garage Apartment is an additional 690 sf for a total of 4,467 sf.
FAITS SUR LA PROPRIÉTÉ Sous contrat
Type de vente
Investissement ou propriétaire utilisateur
Type de propriété
Taille du bâtiment
3 777 pi²
Classe d’immeuble
B
Année de construction
2013
Prix
2 275 697 $ CAD
Prix par pi²
602,51 $ CAD
Pourcentage loué
100%
Hauteur du bâtiment
2 étages
Superficie de plancher typique
1 889 pi²
Coefficient d’occupation des sols de l’immeuble
0,50
Taille du lot
0,17 AC
COMMODITÉS
- Accès 24 heures
- Accès contrôlé
- Système de sécurité
- Réception
- Espace d'entreposage
- Sièges extérieurs
- Climatisation
- Détecteur de fumée
1 1
Walk Score®
Très pratique à pied (86)
1 de 44
VIDÉOS
VISITE EXTÉRIEURE 3D MATTERPORT
VISITE 3D MATTERPORT
PHOTOS
VUE DEPUIS LA RUE
RUE
CARTE
1 de 1
Présenté par
1226 Heights Blvd
Vous êtes déjà membre? Connectez-vous
Hmm, il semble y avoir eu une erreur lors de l’envoi de votre message. Veuillez réessayer.
Merci! Votre message a été envoyé.
