Votre courriel a été envoyé.
1245 - 1265 S Military Trl - The Commons Deerfield Beach, FL 33442 500–26 789 pi² d'espace disponible



Certaines informations ont été traduites automatiquement.
Faits saillants du parc
- Appeler pour obtenir le meilleur tarif et les incitatifs. Le CAM comprend les services de conciergerie, les installations électriques et le locateur responsable de l'entretien, des réparations et du remplacement des systèmes de CVC
- Des suites adaptées aux besoins des locataires sont disponibles pour répondre aux besoins des locataires - Zonées pour les services médicaux
- Idéalement situé à 1/2 mile à l'ouest de la I-95, accès direct à l'autoroute Sawgrass et à l'autoroute à péage
- Immeuble complet de 12 356 p2 disponible plus 6 178 p2 plancher complet contigu pour 19 054 p2
- À distance de marche des restaurants, Publix, Walgreens et autres établissements de vente au détail
Faits sur le parc
Tous les espaces disponibles(7)
Afficher les taux de location en
- Espace
- Taille
- Terme
- Taux de location
- Utilisation de l’espace
- État
- Disponible
Large reception area, training room, perimeter window offices, kitchenette and private bathrooms OR build to suit for 2,000 to 3,500 sf.
- Le taux de location ne comprend pas les services publics, les services de bâtiment ou les dépenses immobilières.
- Disposition du plan d’étage ouverte en général
- Peut être associé à un ou plusieurs espaces supplémentaires pour obtenir jusqu’à 12 356 pi² d’espace adjacent.
- Salle de bains privée
- Short Term Leases Available
- Adjacent to Publix Walgreens Anchored Center
- Partiellement construit comme Bureau standard
- Convient pour 9 à 50 personnes
- Aire de réception
- Lumière naturelle
- Full Floor or Subdivide
- Ample Surface Parking
Fully built out perimeter window offices, executive size and standard size with conference room, kitchenette, private bathrooms and open area for work stations. Please provide your build out requirements and Landlord will deliver Build To Suit Newly Delivered Suites! This 6,178 sf floor is contiguous with the second floor of adjacent building connected by a covered terrace that can also be fully enclosed.
- Le taux de location ne comprend pas les services publics, les services de bâtiment ou les dépenses immobilières.
- Disposition du plan d’étage ouverte en général
- Salles de conférence
- Lumière naturelle
- Partiellement construit comme Bureau standard
- Convient pour 5 à 50 personnes
- Peut être associé à un ou plusieurs espaces supplémentaires pour obtenir jusqu’à 12 356 pi² d’espace adjacent.
| Espace | Taille | Terme | Taux de location | Utilisation de l’espace | État | Disponible |
| 1er étage, ste 100 | 3 500 à 6 178 pi² | 1-3 ans | 28,37 $ CAD/pi²/an 2,36 $ CAD/pi²/mois 175 270 $ CAD/an 14 606 $ CAD/mois | Bureau/Médical | construction partielle | Maintenant |
| 2e étage, ste 200 | 2 000 à 6 178 pi² | 1-3 ans | 28,37 $ CAD/pi²/an 2,36 $ CAD/pi²/mois 175 270 $ CAD/an 14 606 $ CAD/mois | Bureau/Médical | construction partielle | Maintenant |
1245 S Military Trl - 1er étage - ste 100
1245 S Military Trl - 2e étage - ste 200
- Espace
- Taille
- Terme
- Taux de location
- Utilisation de l’espace
- État
- Disponible
Full First Floor fully built out, turnkey in excellent condition! Eight perimeter window offices, conference room, kitchen area and open area for work stations.
- Le taux de location ne comprend pas les services publics, les services de bâtiment ou les dépenses immobilières.
- Flexible Lease Terms
- Fully Turnkey Space in Excellent Condition
- Convient pour 14 à 44 personnes
- Lots of Natural Light and First Floor Easy Access
Nicely built out office suite with 3 private offices, open area for work stations and breakroom area with counter sink and built-in cabinetry. Juliet balconies and corner unit with lots of windows for natural light. Available for immediate occupancy
- Le taux de location ne comprend pas les services publics, les services de bâtiment ou les dépenses immobilières.
- Disposition du plan d’étage ouverte en général
- 3 bureaux privés
- Balcon
- Hauts plafonds
- Excellent aménagement avec bureaux privés et espace ouvert
- Accès 24/7
- Entièrement construit comme Bureau standard
- Convient pour 4 à 12 personnes
- Espace en excellent état
- Espace en coin
- Deuxième étage avec balcon Juliette
- Salle de repos du comptoir de l'évier
Ideal open suite, 500 sf, window line, turnkey, short-term leases welcomed. Plenty of parking, adjacent to Publix & Walgreens retail center with multiple quick service restaurants.
- Le taux de location ne comprend pas les services publics, les services de bâtiment ou les dépenses immobilières.
- Disposition du plan d’étage ouverte en général
- 3 bureaux privés
- Balcon
- Hauts plafonds
- Great layout with private offices and open area
- 24/7 access
- Entièrement construit comme Bureau standard
- Convient pour 2 à 4 personnes
- Espace en excellent état
- Espace en coin
- Second Floor with Juliet Balconies
- Sink Counter Break Room Area
| Espace | Taille | Terme | Taux de location | Utilisation de l’espace | État | Disponible |
| 1er étage, ste 100 | 5 485 pi² | Négociable | 28,37 $ CAD/pi²/an 2,36 $ CAD/pi²/mois 155 610 $ CAD/an 12 967 $ CAD/mois | Bureau | - | 2026-04-01 |
| 2e étage, ste 210 | 1 384 pi² | 1-3 ans | 28,37 $ CAD/pi²/an 2,36 $ CAD/pi²/mois 39 264 $ CAD/an 3 272 $ CAD/mois | Bureau | construction complète | Maintenant |
| 2e étage, ste 215 | 500 pi² | 1-3 ans | 28,37 $ CAD/pi²/an 2,36 $ CAD/pi²/mois 14 185 $ CAD/an 1 182 $ CAD/mois | Bureau | construction complète | Maintenant |
1255 S Military Trl - 1er étage - ste 100
1255 S Military Trl - 2e étage - ste 210
1255 S Military Trl - 2e étage - ste 215
- Espace
- Taille
- Terme
- Taux de location
- Utilisation de l’espace
- État
- Disponible
First Floor Office Suite with immediate private access off of parking lot. Corner Unit with lot of windows for natural light, new carpet, paint and open area with counter with sink break area.
- Le taux de location ne comprend pas les services publics, les services de bâtiment ou les dépenses immobilières.
- Disposition du plan d’étage ouverte en général
- 3 bureaux privés
- Espace en excellent état
- Espace en coin
- Plan ouvert
- Separate Private Entrance and Common Area Entrance
- First Floor Easy Access
- Partiellement construit comme Centre d’appels
- Convient pour 3 à 8 personnes
- Plafonds finis: 8’6”
- Complètement tapissé
- Lumière naturelle
- Quick Access to All Highways
- Nearby Publix & Walgreens Anchored Retail Center
Full Floor with 10 perimeter window offices, full size conference room, eat-in kitchen, lots of open area for workstations. This 6,178 sf floor is contiguous with the second floor of adjacent building connected by a covered terrace that can also be fully enclosed.
- Le taux de location ne comprend pas les services publics, les services de bâtiment ou les dépenses immobilières.
- Convient pour 16 à 50 personnes
- Espace en excellent état
- Accès rapide à toutes les autoroutes
- Publix & Walgreens Anchored Retail Center à proximité
- Disposition du plan d’étage ouverte en général
- Plafonds finis: 8’6”
- Lumière naturelle
- Étage complet avec espace pour l'expansion
| Espace | Taille | Terme | Taux de location | Utilisation de l’espace | État | Disponible |
| 1er étage, ste 150 | 886 pi² | 1-3 ans | 28,37 $ CAD/pi²/an 2,36 $ CAD/pi²/mois 25 136 $ CAD/an 2 095 $ CAD/mois | Bureau/Médical | construction partielle | Maintenant |
| 2e étage, ste 200 | 6 178 pi² | 1-3 ans | 28,37 $ CAD/pi²/an 2,36 $ CAD/pi²/mois 175 270 $ CAD/an 14 606 $ CAD/mois | Bureau/Médical | construction partielle | Maintenant |
1265 S Military Trl - 1er étage - ste 150
1265 S Military Trl - 2e étage - ste 200
1245 S Military Trl - 1er étage - ste 100
| Taille | 3 500 à 6 178 pi² |
| Terme | 1-3 ans |
| Taux de location | 28,37 $ CAD/pi²/an |
| Utilisation de l’espace | Bureau/Médical |
| État | construction partielle |
| Disponible | Maintenant |
Large reception area, training room, perimeter window offices, kitchenette and private bathrooms OR build to suit for 2,000 to 3,500 sf.
- Le taux de location ne comprend pas les services publics, les services de bâtiment ou les dépenses immobilières.
- Partiellement construit comme Bureau standard
- Disposition du plan d’étage ouverte en général
- Convient pour 9 à 50 personnes
- Peut être associé à un ou plusieurs espaces supplémentaires pour obtenir jusqu’à 12 356 pi² d’espace adjacent.
- Aire de réception
- Salle de bains privée
- Lumière naturelle
- Short Term Leases Available
- Full Floor or Subdivide
- Adjacent to Publix Walgreens Anchored Center
- Ample Surface Parking
1245 S Military Trl - 2e étage - ste 200
| Taille | 2 000 à 6 178 pi² |
| Terme | 1-3 ans |
| Taux de location | 28,37 $ CAD/pi²/an |
| Utilisation de l’espace | Bureau/Médical |
| État | construction partielle |
| Disponible | Maintenant |
Fully built out perimeter window offices, executive size and standard size with conference room, kitchenette, private bathrooms and open area for work stations. Please provide your build out requirements and Landlord will deliver Build To Suit Newly Delivered Suites! This 6,178 sf floor is contiguous with the second floor of adjacent building connected by a covered terrace that can also be fully enclosed.
- Le taux de location ne comprend pas les services publics, les services de bâtiment ou les dépenses immobilières.
- Partiellement construit comme Bureau standard
- Disposition du plan d’étage ouverte en général
- Convient pour 5 à 50 personnes
- Salles de conférence
- Peut être associé à un ou plusieurs espaces supplémentaires pour obtenir jusqu’à 12 356 pi² d’espace adjacent.
- Lumière naturelle
1255 S Military Trl - 1er étage - ste 100
| Taille | 5 485 pi² |
| Terme | Négociable |
| Taux de location | 28,37 $ CAD/pi²/an |
| Utilisation de l’espace | Bureau |
| État | - |
| Disponible | 2026-04-01 |
Full First Floor fully built out, turnkey in excellent condition! Eight perimeter window offices, conference room, kitchen area and open area for work stations.
- Le taux de location ne comprend pas les services publics, les services de bâtiment ou les dépenses immobilières.
- Convient pour 14 à 44 personnes
- Flexible Lease Terms
- Lots of Natural Light and First Floor Easy Access
- Fully Turnkey Space in Excellent Condition
1255 S Military Trl - 2e étage - ste 210
| Taille | 1 384 pi² |
| Terme | 1-3 ans |
| Taux de location | 28,37 $ CAD/pi²/an |
| Utilisation de l’espace | Bureau |
| État | construction complète |
| Disponible | Maintenant |
Nicely built out office suite with 3 private offices, open area for work stations and breakroom area with counter sink and built-in cabinetry. Juliet balconies and corner unit with lots of windows for natural light. Available for immediate occupancy
- Le taux de location ne comprend pas les services publics, les services de bâtiment ou les dépenses immobilières.
- Entièrement construit comme Bureau standard
- Disposition du plan d’étage ouverte en général
- Convient pour 4 à 12 personnes
- 3 bureaux privés
- Espace en excellent état
- Balcon
- Espace en coin
- Hauts plafonds
- Deuxième étage avec balcon Juliette
- Excellent aménagement avec bureaux privés et espace ouvert
- Salle de repos du comptoir de l'évier
- Accès 24/7
1255 S Military Trl - 2e étage - ste 215
| Taille | 500 pi² |
| Terme | 1-3 ans |
| Taux de location | 28,37 $ CAD/pi²/an |
| Utilisation de l’espace | Bureau |
| État | construction complète |
| Disponible | Maintenant |
Ideal open suite, 500 sf, window line, turnkey, short-term leases welcomed. Plenty of parking, adjacent to Publix & Walgreens retail center with multiple quick service restaurants.
- Le taux de location ne comprend pas les services publics, les services de bâtiment ou les dépenses immobilières.
- Entièrement construit comme Bureau standard
- Disposition du plan d’étage ouverte en général
- Convient pour 2 à 4 personnes
- 3 bureaux privés
- Espace en excellent état
- Balcon
- Espace en coin
- Hauts plafonds
- Second Floor with Juliet Balconies
- Great layout with private offices and open area
- Sink Counter Break Room Area
- 24/7 access
1265 S Military Trl - 1er étage - ste 150
| Taille | 886 pi² |
| Terme | 1-3 ans |
| Taux de location | 28,37 $ CAD/pi²/an |
| Utilisation de l’espace | Bureau/Médical |
| État | construction partielle |
| Disponible | Maintenant |
First Floor Office Suite with immediate private access off of parking lot. Corner Unit with lot of windows for natural light, new carpet, paint and open area with counter with sink break area.
- Le taux de location ne comprend pas les services publics, les services de bâtiment ou les dépenses immobilières.
- Partiellement construit comme Centre d’appels
- Disposition du plan d’étage ouverte en général
- Convient pour 3 à 8 personnes
- 3 bureaux privés
- Plafonds finis: 8’6”
- Espace en excellent état
- Complètement tapissé
- Espace en coin
- Lumière naturelle
- Plan ouvert
- Quick Access to All Highways
- Separate Private Entrance and Common Area Entrance
- Nearby Publix & Walgreens Anchored Retail Center
- First Floor Easy Access
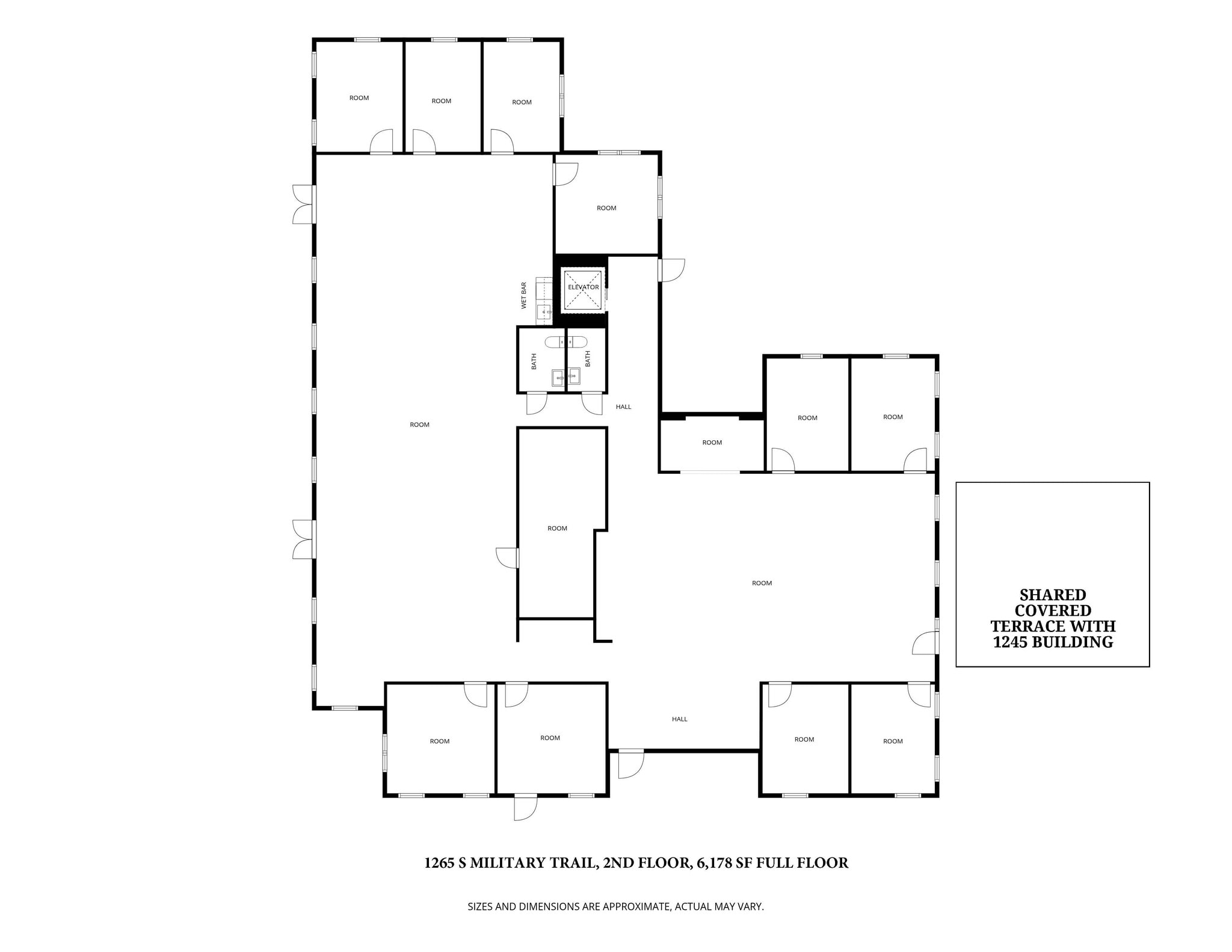
1265 S Military Trl - 2e étage - ste 200
| Taille | 6 178 pi² |
| Terme | 1-3 ans |
| Taux de location | 28,37 $ CAD/pi²/an |
| Utilisation de l’espace | Bureau/Médical |
| État | construction partielle |
| Disponible | Maintenant |
Full Floor with 10 perimeter window offices, full size conference room, eat-in kitchen, lots of open area for workstations. This 6,178 sf floor is contiguous with the second floor of adjacent building connected by a covered terrace that can also be fully enclosed.
- Le taux de location ne comprend pas les services publics, les services de bâtiment ou les dépenses immobilières.
- Disposition du plan d’étage ouverte en général
- Convient pour 16 à 50 personnes
- Plafonds finis: 8’6”
- Espace en excellent état
- Lumière naturelle
- Accès rapide à toutes les autoroutes
- Étage complet avec espace pour l'expansion
- Publix & Walgreens Anchored Retail Center à proximité
Aperçu du parc
Complexe de trois bâtiments avec cour merveilleusement paysagée. Beaucoup de stationnement, Publicx à proximité, magasins de détail, restaurants, restauration rapide et à quelques minutes de toutes les autoroutes principales. Plafond de 100 % sur les dépenses de CAM qui comprennent les frais d'électricité locataire, de conciergerie en suite, d'entretien, de réparation et de remplacement de CVC.
- Accès 24 heures
- Cour
- CVCA contrôlé par le locataire
- Balcon
Présenté par
1245 - 1265 S Military Trl - The Commons | Deerfield Beach, FL 33442
Hmm, il semble y avoir eu une erreur lors de l’envoi de votre message. Veuillez réessayer.
Merci! Votre message a été envoyé.







