Votre courriel a été envoyé.
Certaines informations ont été traduites automatiquement.
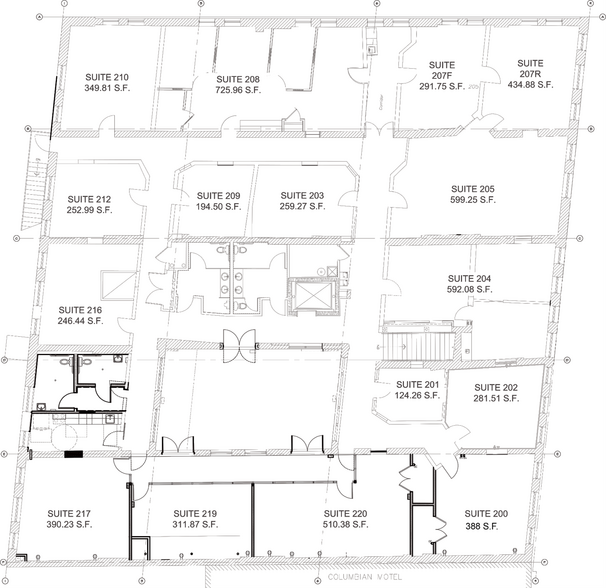
Disponibilité des espaces (6)
Afficher les taux de location en
- Espace
- Taille
- Terme
- Taux de location
- Type de loyer
| Espace | Taille | Terme | Taux de location | Type de loyer | ||
| 2e étage, ste 202 | 281 pi² | 3-5 ans | 31,25 $ CAD/pi²/an 2,60 $ CAD/pi²/mois 8 782 $ CAD/an 731,81 $ CAD/mois | Brut modifié | ||
| 2e étage, ste 203 | 259 pi² | 3-5 ans | 31,25 $ CAD/pi²/an 2,60 $ CAD/pi²/mois 8 094 $ CAD/an 674,52 $ CAD/mois | Brut modifié | ||
| 2e étage, ste 216 | 246 pi² | 3-5 ans | 29,89 $ CAD/pi²/an 2,49 $ CAD/pi²/mois 7 354 $ CAD/an 612,81 $ CAD/mois | Brut modifié | ||
| 2e étage, ste 219 | 312 pi² | 3-5 ans | 31,25 $ CAD/pi²/an 2,60 $ CAD/pi²/mois 9 751 $ CAD/an 812,54 $ CAD/mois | Brut modifié | ||
| 2e étage, ste 220 | 510 pi² | 3-5 ans | 31,25 $ CAD/pi²/an 2,60 $ CAD/pi²/mois 15 938 $ CAD/an 1 328 $ CAD/mois | Brut modifié | ||
| 2e étage, ste Suite 200 | 388 pi² | 3-5 ans | 31,25 $ CAD/pi²/an 2,60 $ CAD/pi²/mois 12 126 $ CAD/an 1 010 $ CAD/mois | Brut modifié |
2e étage, ste 202
Private office suite available in a character-rich historic building in downtown Trinidad. Highlights include exposed brick walls, hardwood floors, high ceilings, and abundant natural light. Ideal for professional or creative office use.
- Le taux inscrit peut ne pas comprendre certains services publics, les services de bâtiment et les dépenses immobilières.
- Entièrement construit comme Bureau standard
- Disposition du plan d’étage ouverte
- Convient pour 1 à 3 personnes
- 1 bureau privé
- Espace en excellent état
2e étage, ste 203
Private office suite featuring exposed brick, hardwood floors, high ceilings, and ample lighting. Ideal for professional or creative office use.
- Le taux inscrit peut ne pas comprendre certains services publics, les services de bâtiment et les dépenses immobilières.
- Disposition du plan d’étage ouverte
- Convient pour 1 à 3 personnes
- 1 bureau privé
- Espace en excellent état
2e étage, ste 216
Private office suite featuring exposed brick, high ceilings, updated flooring, and in-suite water with a sink and shower. Well suited for wellness, therapy, beauty, or professional office use.
- Le taux inscrit peut ne pas comprendre certains services publics, les services de bâtiment et les dépenses immobilières.
- Entièrement construit comme Bureau standard
- Disposition du plan d’étage ouverte
- Convient pour 1 à 2 personnes
- 1 bureau privé
- Espace en excellent état
2e étage, ste 219
Conference-style suite featuring exposed brick, hardwood floors, high ceilings, and ample lighting, ideal for meetings, collaboration, or professional use.
- Le taux inscrit peut ne pas comprendre certains services publics, les services de bâtiment et les dépenses immobilières.
- Entièrement construit comme Bureau standard
- Disposition du plan d’étage ouverte
- Convient pour 1 à 3 personnes
- Espace en excellent état
2e étage, ste 220
Office or meeting suite offering historic character, including exposed brick walls, polished hardwood floors, and tall ceilings.
- Le taux inscrit peut ne pas comprendre certains services publics, les services de bâtiment et les dépenses immobilières.
- Entièrement construit comme Bureau standard
- Disposition du plan d’étage ouverte
- Convient pour 2 à 5 personnes
- Espace en excellent état
2e étage, ste Suite 200
Private office suite available in a character-rich historic building in downtown Trinidad. Highlights include exposed brick walls, hardwood floors, high ceilings, and abundant natural light. Ideal for professional or creative office use.
- Le taux inscrit peut ne pas comprendre certains services publics, les services de bâtiment et les dépenses immobilières.
- Entièrement construit comme Bureau standard
- Disposition du plan d’étage ouverte
- Convient pour 1 à 3 personnes
- 1 bureau privé
- Espace en excellent état
Types de loyers
Le type et le montant du loyer que le locataire (preneur) est tenu de payer au propriétaire (bailleur) sur la durée du bail sont négociés avant la signature du bail par les deux parties. Le type de loyer varie selon les services fournis. Par exemple, le prix d’un loyer hypernet est habituellement inférieur à celui d’un bail à service complet puisque le locataire est tenu d’assumer des dépenses additionnelles par rapport au loyer de base. Contactez le courtier inscripteur pour tout connaître sur les frais connexes et additionnels associés à chaque type de loyer.
1. Service complet: Un taux de location qui comprend des services standards liés à l’immeuble fournis par le propriétaire dans le cadre d’une location annuelle de base.
2. Loyer supernet: Le locataire paie seulement deux des frais de l’immeuble. Le propriétaire et le locataire déterminent ces frais spécifiques avant la signature du bail.
3. Loyer hypernet: Un bail en vertu duquel le locataire est responsable de tous les frais liés à sa part proportionnelle d’occupation de l’immeuble.
4. Brut modifié: Le loyer brut modifié désigne un type général de taux de location dans lequel le locataire est habituellement responsable de sa part proportionnelle d’un ou de plusieurs frais. C’est le propriétaire qui paie les frais restants. Considérez les structures tarifaires courantes suivantes applicables aux loyers bruts modifiés: 4. Plus les services: Un type de bail brut modifié suivant lequel le locataire est responsable de sa part proportionnelle des coûts des services publics, en plus du loyer. 4. Plus le nettoyage: Un type de bail brut modifié suivant lequel le locataire est responsable de sa part proportionnelle des coûts de nettoyage, en plus du loyer. 4. Plus l'électricité: Un type de bail brut modifié suivant lequel le locataire est responsable de sa part proportionnelle des coûts d’électricité, en plus du loyer. 4. Plus l’électricité et le nettoyage: Un type de bail brut modifié dans lequel le locataire est responsable de sa part proportionnelle des coûts d’électricité et de nettoyage, en plus du loyer. 4. Plus les services publics et le nettoyage: Un type de bail brut modifié dans lequel le locataire est responsable de sa part proportionnelle des coûts des services publics et de nettoyage, en plus du loyer. 4. Bail industriel brut: Un type de bail brut modifié dans lequel le locataire paie un ou plusieurs des frais, en plus du loyer. Le propriétaire et le locataire déterminent ces frais spécifiques avant la signature du bail.
5. L’électricité est à la charge du locataire: Le propriétaire paie pour tous les services et le locataire est responsable de sa propre utilisation de l’éclairage et des prises électriques dans l’espace qu’il occupe.
6. Négociable ou sur demande: Cette option est utilisée lorsque le contact de location ne précise pas le type de loyer ou de service.
7. À déterminer: À déterminer ; utilisé pour les immeubles dont le type de services ou de loyer n’est pas connu, souvent quand l’immeuble n’est pas encore construit.
Sélectionner des locataires à 125-137 N Commercial St, Trinidad, CO 81082
- Locataire
- Description
- Emplacements US
- Portée
- 5 Star Bank
- Banque
- 5
- Local
| Locataire | Description | Emplacements US | Portée |
| 5 Star Bank | Banque | 5 | Local |
Faits sur la propriété
| Superficie totale disponible | 1 996 pi² | Superficie commerciale brute | 21 466 pi² |
| Type de propriété | Commerce de détail | Année de construction/rénovation | 1889/2017 |
| Sous-type de propriété | Banque |
| Superficie totale disponible | 1 996 pi² |
| Type de propriété | Commerce de détail |
| Sous-type de propriété | Banque |
| Superficie commerciale brute | 21 466 pi² |
| Année de construction/rénovation | 1889/2017 |
À propos de la propriété
Multiple office suites available for lease in a restored historic downtown Trinidad building. Suites offer exposed brick, high ceilings, hardwood and updated flooring, and natural light, with select units featuring in-suite water and shower access. Flexible layouts suitable for office, meeting, conference, or wellness use. Lease rates $19–$24/SF.
- Installations de conférences
- Affichage
- Accessible aux fauteuils roulants
Principaux détaillants à proximité
Présenté par
125-137 N Commercial St
Hmm, il semble y avoir eu une erreur lors de l’envoi de votre message. Veuillez réessayer.
Merci! Votre message a été envoyé.





















