Se Connecter/S’inscrire
Votre courriel a été envoyé.
125 S Weiler Rd
Arlington Heights, IL 60005
Industriel Propriété À vendre


Certaines informations ont été traduites automatiquement.
FAITS SAILLANTS DE L'INVESTISSEMENT
- 800 AMPS 480 VOLTS
- 22 PARKING SPOTS
- 1 INTERIOR DOCK
- 13-16'’ CLEAR HEIGHT
- 1 EXTERIOR DOCK
- 1 DRIVE-IN DOOR
RÉSUMÉ DE L'ANNONCE
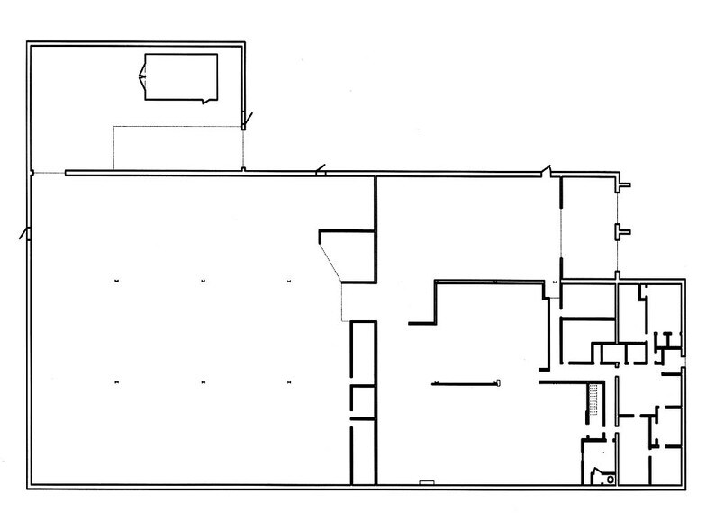
125 Weiler Rd is a 26,750 SF building that features 1 exterior dock, 1 interior dock, 1 drive-in door and 13’-16’ clear height. This hard-to-find sized building in the market for sale has heavy power, 22 parking spots, and close proximity to I-90.
FAITS SUR LA PROPRIÉTÉ
| Type de vente | Investissement | Année de construction | 1975 |
| Type de propriété | Industriel | Location | Unique |
| Sous-type de propriété | Entrepôt | Ratio de stationnement | 0,82/1 000 pi² |
| Classe d’immeuble | C | Effacer hauteur du plafond | 16’ |
| Taille du lot | 1,03 AC | Nbre de quais à portes élevées/de chargement | 2 |
| Aire du bâtiment louable | 26 750 pi² | Nbre d’entrées dans les portes/au niveau du sol | 1 |
| Nombre d’étages | 1 | ||
| Zonage | I-2,ArlingtonHeights | ||
| Type de vente | Investissement |
| Type de propriété | Industriel |
| Sous-type de propriété | Entrepôt |
| Classe d’immeuble | C |
| Taille du lot | 1,03 AC |
| Aire du bâtiment louable | 26 750 pi² |
| Nombre d’étages | 1 |
| Année de construction | 1975 |
| Location | Unique |
| Ratio de stationnement | 0,82/1 000 pi² |
| Effacer hauteur du plafond | 16’ |
| Nbre de quais à portes élevées/de chargement | 2 |
| Nbre d’entrées dans les portes/au niveau du sol | 1 |
| Zonage | I-2,ArlingtonHeights |
SERVICES PUBLICS
- Eau - Puits
- Chauffage - Gaz
Impôts fonciers
| Numéro de lot | 08-26-204-008-0000 | Évaluation des bâtiments | 351 413 $ CAD |
| Évaluation du terrain | 125 397 $ CAD | Évaluation totale | 476 810 $ CAD |
Impôts fonciers
Numéro de lot
08-26-204-008-0000
Évaluation du terrain
125 397 $ CAD
Évaluation des bâtiments
351 413 $ CAD
Évaluation totale
476 810 $ CAD
1 de 7
VIDÉOS
VISITE EXTÉRIEURE 3D MATTERPORT
VISITE 3D MATTERPORT
PHOTOS
VUE DEPUIS LA RUE
RUE
CARTE
